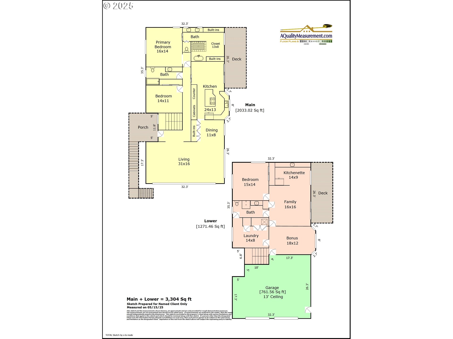
1700 NW SALTZMAN RD

Portland, 97229

  • 3 Bed

  • 3 Bath

  • 3304 SqFt

  • 117 DOM

  • Built: 1988

  • Status: Active

$809,000

Price cut: $30.5K (10-30-2025)

X

1700 NW SALTZMAN RD

Portland 97229

$809000

Price cut: $30.5K (10-30-2025)

  • 3 Bed

  • 3 Bath

  • 3304 SqFt

  • 117 DOM

  • Built: 1988

  • Status: Active

    Open House

Krishna Regupathy

Principal Broker

(503) 893-8874

Meet you at the Open House. Imagine this scenario an amazing spacious amid-century styled vibe w/modern open floor plan w/high end features and finishes. Cool refreshed kitchen w/chef's gourmet granite Island cooking opens to deck for outdoor cooking. Located in the heart of Cedar Mills-Bethany neighborhoods welcome to this well curated light & bright home that invites natures green living into your home w/serene tree views for every window. On the garden level a newly refreshed kitchenette opens to bonus room & deck that provides the options and opportunity for multi-generational living or successful Airbnb for a short or long term rental potential for vacations/weddings/graduations/wine country tours. Living on the main level features vaulted living & dining room w/lounge room w/built-in cabinets. The kitchen offers breakfast bar & eating space, garden window for herbs w/stainless steel appliances. The primary bedroom is spacious featuring a deluxe spa style bathroom w/freestanding soak tub, walk-in shower + spectacular walk-in dressing room w/lots & lots of organized closets for storage. The home has a private drive & motor court w/landscaping w/flowering trees & plants. Even room for an outdoor hot tub, organic garden or chicken coop. All nestled on leveled fenced .30 acre lot w/ADU potential or there are lots of options to add additional outdoor features. The custom dream garage is 761 sq. ft. featuring a custom car lift for a 3rd car bay. Additionally custom tool or sport storage cabinets w/workbench, plus a hoist adds to your many options. Bonus exterior parking up to 6+ cars. The oversize laundry room is spacious and features newer washer/dryer, built-in + w/walk-in closet for storage. The home is located in unincorporated Washington county minutes to Nike + Columbia Sports + High Tech, Medical Center campuses. Great schools, parks, shopping nearby and a cycling paradise. Note: furniture & art available upon request for purchase or negotiable with an offer.

Download our Mobile app

Similar Properties

Download our Mobile app

Open Sat, Nov 22nd, 12PM to 2PM

$789,000

  • 5 Bed

  • 2.5 Bath

  • 3150 SqFt

  • 0 DOM

  • 8635 NW ASH ST, Portland, 97229
Open Sun, Nov 23rd, 1PM to 3PM

$1,249,000

  • 6 Bed

  • 5 Bath

  • 4375 SqFt

  • 90 DOM

  • 15765 NW RIDGELINE ST, Portland, 97229

$1,495,000

  • 5 Bed

  • 3.5 Bath

  • 3124 SqFt

  • 5 DOM

  • 11504 NW DAMASCUS ST, Portland, 97229

$975,000

  • 4 Bed

  • 2.5 Bath

  • 3020 SqFt

  • 7 DOM

  • 2525 NW 141ST PL, Portland, 97229