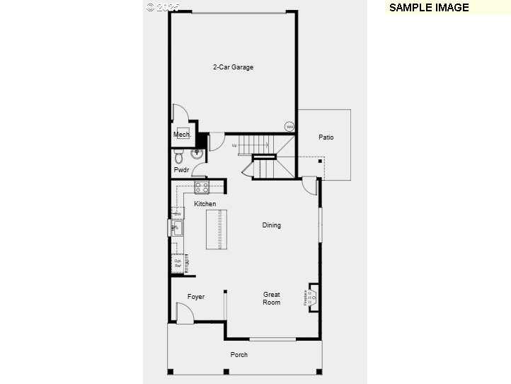
What's Special: Greenbelt View | Covered Patio | Fireplace | Gray Cabinets. New Construction - Ready Now! Built by America's Most Trusted Homebuilder. Welcome to the Keystone at 16647 SW Noosa Court in South River Terrace! Charming and modern, this home is designed for the way you live. Step inside from the welcoming front porch to an open-concept layout that feels bright and connected. The great room with a cozy fireplace flows into the dining area and a gourmet kitchen perfect for everyday meals or special gatherings. A powder room, two-car garage, and back patio complete the main level. Upstairs, you’ll find three secondary bedrooms, a full bath, and a convenient laundry room. The primary suite is a true retreat with a walk-in closet and a spa-like bath featuring dual sinks, a soaking tub, and a spacious shower. At South River Terrace, enjoy parks, play areas, scenic trails, and more. Future amenities will include picnic spots and open green spaces throughout this thoughtfully planned community. Additional highlights include: a tub in the primary bathroom, and a gas fireplace. MLS#680258665
Listing Provided Courtesy of Brian Flatt, Cascadian South Corp.
General Information
680258665
SingleFamilyResidence
170
DOM
4
3049.2 SqFt
2.5
1875
2025
Washington
R2228000
Art Rutkin
Twality 5/10
Tualatin
Residential
SingleFamilyResidence
SOUTH RIVER TERRACE NO.2, LOT 115, ACRES 0.07
Listing Provided Courtesy of Brian Flatt, Cascadian South Corp.
Krishna Realty data last checked: Apr 06, 2026 17:29 | Listing last modified Apr 01, 2026 16:53,
Source:
Download our Mobile app
Residence Information
1138
737
0
1875
builder
1875
1/Gas
4
2
1
2.5
Composition
2, Attached
Stories2
2
2025
No
CementSiding
Slab
MaintenanceGrounds, M
Features and Utilities
FreeStandingRefrigerator, GasAppliances, Island, Quartz
What's Special: Greenbelt View | Covered Patio | Fireplace | Gray Cabinets. New Construction - Ready Now! Built by America's Most Trusted Homebuilder. Welcome to the Keystone at 16647 SW Noosa Court in South River Terrace! Charming and modern, this home is designed for the way you live. Step inside from the welcoming front porch to an open-concept layout that feels bright and connected. The great room with a cozy fireplace flows into the dining area and a gourmet kitchen perfect for everyday meals or special gatherings. A powder room, two-car garage, and back patio complete the main level. Upstairs, you’ll find three secondary bedrooms, a full bath, and a convenient laundry room. The primary suite is a true retreat with a walk-in closet and a spa-like bath featuring dual sinks, a soaking tub, and a spacious shower. At South River Terrace, enjoy parks, play areas, scenic trails, and more. Future amenities will include picnic spots and open green spaces throughout this thoughtfully planned community. Additional highlights include: a tub in the primary bathroom, and a gas fireplace. MLS#680258665