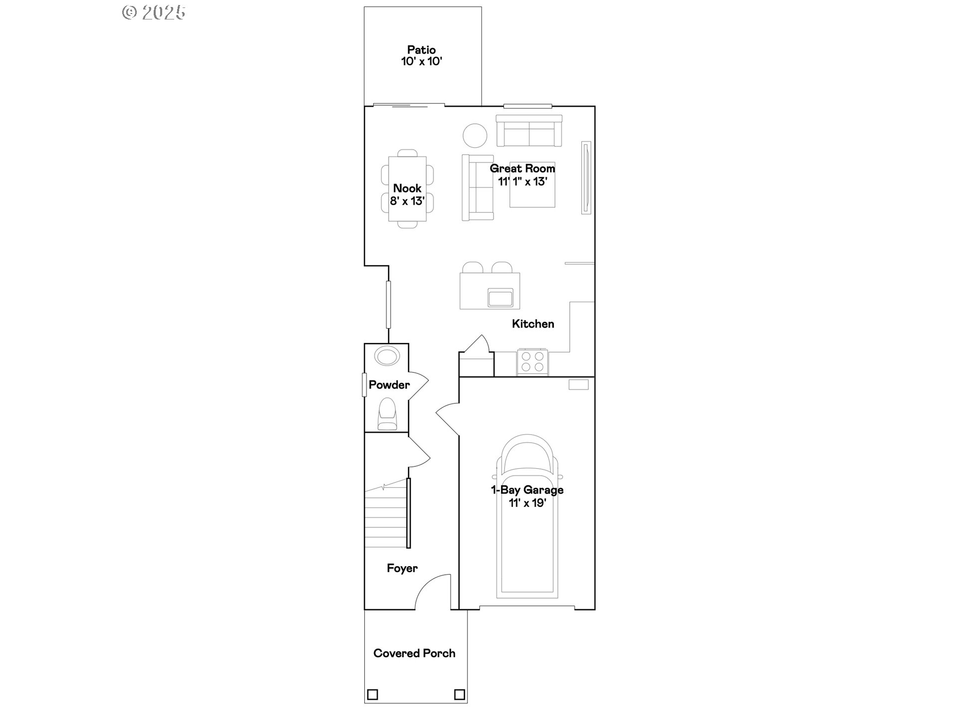
This new construction duplex is part of South River Terrace, a connected community offering excellent schools, freeway access, and proximity to shops, dining, golf, and onsite parks, playgrounds, and sport courts. The plan features a low-maintenance layout with the kitchen flowing into the great room and dining area, plus sliding doors to a patio that extends living outdoors to the fenced and landscaped yard. Upstairs are three bedrooms, including a spacious primary suite with a private bath and walk-in closet, while the top floor includes a versatile bonus room ideal for a media room, office, or play area. Interior finishes include quartz countertops, LVP flooring, and modern details throughout. This home also includes central air conditioning, a refrigerator, washer and dryer, and blinds—all at no extra cost! Located on homesite 15, this home is expected to be complete in April 2026. Rendering is artist conception only. Photos are of a similar home, features and finishes will vary.
Listing Provided Courtesy of John Van Hogen, Lennar Sales Corp
General Information
138592297
Attached
17
DOM
3
2.5
1686
2026
Washington
New Construction
Art Rutkin
Twality 5/10
Tualatin
Residential
Attached
South River Terrace homesite 15
Listing Provided Courtesy of John Van Hogen, Lennar Sales Corp
Krishna Realty data last checked: Apr 22, 2026 19:34 | Listing last modified Apr 18, 2026 11:56,
Source:
Download our Mobile app
Residence Information
211
853
622
1686
Builder
1064
3
2
1
2.5
Composition
1, Attached
Townhouse,TriLevel
Driveway
3
2026
No
CementSiding
CrawlSpace
CrawlSpace
ConcretePerimeter
DoublePaneWindows,Vi
Commons, ExteriorMain
Features and Utilities
Dishwasher, FreeStandingGasRange, FreeStandingRange, FreeStandingRefrigerator, GasAppliances, Island, Micr
This new construction duplex is part of South River Terrace, a connected community offering excellent schools, freeway access, and proximity to shops, dining, golf, and onsite parks, playgrounds, and sport courts. The plan features a low-maintenance layout with the kitchen flowing into the great room and dining area, plus sliding doors to a patio that extends living outdoors to the fenced and landscaped yard. Upstairs are three bedrooms, including a spacious primary suite with a private bath and walk-in closet, while the top floor includes a versatile bonus room ideal for a media room, office, or play area. Interior finishes include quartz countertops, LVP flooring, and modern details throughout. This home also includes central air conditioning, a refrigerator, washer and dryer, and blinds—all at no extra cost! Located on homesite 15, this home is expected to be complete in April 2026. Rendering is artist conception only. Photos are of a similar home, features and finishes will vary.