Portland, 97229
5 Bed
3.5 Bath
3230 SqFt
2 DOM
Built: 2026
$970,000
$970000
5 Bed
3.5 Bath
3230 SqFt
2 DOM
Built: 2026
Principal Broker
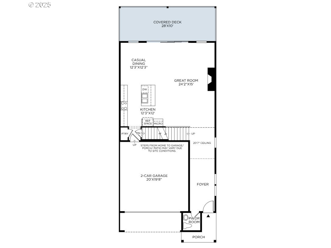
(503) 893-8874NEW YEAR, NEW HOME PROMO ENDS 1/4 - RATE BUY DOWN AVAILABLE! One of the largest sites in the community with incredible views. Greenspace backing with large, usable yard - Quick Move in Orford Basement Craftsman. Estimated completion Spring '26 Listed price includes finalized design package, some changes may be possible due to construction phase. Main level has 12' stacking slider which leads out to the HUGE covered deck that stretches across the back of the home with open, sweeping views of the protected greenspace and seasonal creek. Large open living area on main and 4 beds upstairs with loft, full bed and bath in basement. Central kitchen features stunning views, KitchenAid appliances including fridge, shaker style - stained Maple cabinets with soft close doors and drawers, contrasting white island, plus a trash/recycling pull out. Bathrooms feature matte black upgraded Kohler fixtures. Living room has fireplace with stained mantle and upgraded tile. Backyard landscaping, AC and EV charger included. Primary bathroom suite features free-standing tub, dual sinks Distinguished by its desirable location & top-rated schools. Photos & Matterport/Video are of same plan in community. Home is under construction.
Listing Provided Courtesy of Sarah Lutz, Toll Brothers Real Estate Inc
400144353
SingleFamilyResidence
2 DOM
5
6098.4 SqFt
3.5
3230
2026
Washington
R2226791
Sato 8/10
Stoller 8/10
Westview 6/10
Residential
SingleFamilyResidence
HOSFORD FARMS TERRA, LOT 102, ACRES 0.14
Listing Provided Courtesy of Sarah Lutz, Toll Brothers Real Estate Inc
Krishna Realty data last checked: Dec 23, 2025 07:25 | Listing last modified Dec 22, 2025 15:26,
Source:
Download our Mobile app
1400
1011
819
3230
PLANS
2411
1/Gas
5
3
1
3.5
Composition
2, Attached
Craftsman
Driveway,OnStreet
3
2026
No
CarChargingStationReady,DoublePaneWindows,ForcedAir95Plus,InsulationandCeilingInsulation,SolarReady,
CementSiding, LapSiding, ShingleSiding, Stone
CrawlSpace,Daylight,Finished
CrawlSpace,Daylight,
ConcretePerimeter
DoublePaneWindows,Vi
Commons, Insurance
Deck, Fireplace, SlidingDoors
BuiltinOven, BuiltinRange, Dishwasher, Disposal, ENERGYSTARQualifiedAppliances, GasAppliances, Island, Micr
EngineeredHardwood, GarageDoorOpener, HighCeilings, Laundry, LoVOCMaterial, Quartz, TileFloor, VaultedCeili
Porch, Yard
GarageonMain
CentralAir
Gas, Tankless
ForcedAir95Plus
PublicSewer
Gas, Tankless
Gas
4075.36
1
63 / Month
Cash,Conventional,VALoan
12-21-2025
No
No
2
2
Cash,Conventional,VALoan
$970,000
$970,000
Dec 22, 2025 15:26
Listing courtesy of Toll Brothers Real Estate Inc.
The content relating to real estate for sale on this site comes in part from the IDX program of the RMLS of Portland, Oregon.
Real Estate listings held by brokerage firms other than this firm are marked with the RMLS logo, and
detailed information about these properties include the name of the listing's broker.
Listing content is copyright © 2019 RMLS of Portland, Oregon.
All information provided is deemed reliable but is not guaranteed and should be independently verified.
Krishna Realty data last checked: Dec 23, 2025 07:25 | Listing last modified Dec 22, 2025 15:26.
Some properties which appear for sale on this web site may subsequently have sold or may no longer be available.
Principal Broker
(503) 893-8874NEW YEAR, NEW HOME PROMO ENDS 1/4 - RATE BUY DOWN AVAILABLE! One of the largest sites in the community with incredible views. Greenspace backing with large, usable yard - Quick Move in Orford Basement Craftsman. Estimated completion Spring '26 Listed price includes finalized design package, some changes may be possible due to construction phase. Main level has 12' stacking slider which leads out to the HUGE covered deck that stretches across the back of the home with open, sweeping views of the protected greenspace and seasonal creek. Large open living area on main and 4 beds upstairs with loft, full bed and bath in basement. Central kitchen features stunning views, KitchenAid appliances including fridge, shaker style - stained Maple cabinets with soft close doors and drawers, contrasting white island, plus a trash/recycling pull out. Bathrooms feature matte black upgraded Kohler fixtures. Living room has fireplace with stained mantle and upgraded tile. Backyard landscaping, AC and EV charger included. Primary bathroom suite features free-standing tub, dual sinks Distinguished by its desirable location & top-rated schools. Photos & Matterport/Video are of same plan in community. Home is under construction.
Download our Mobile app