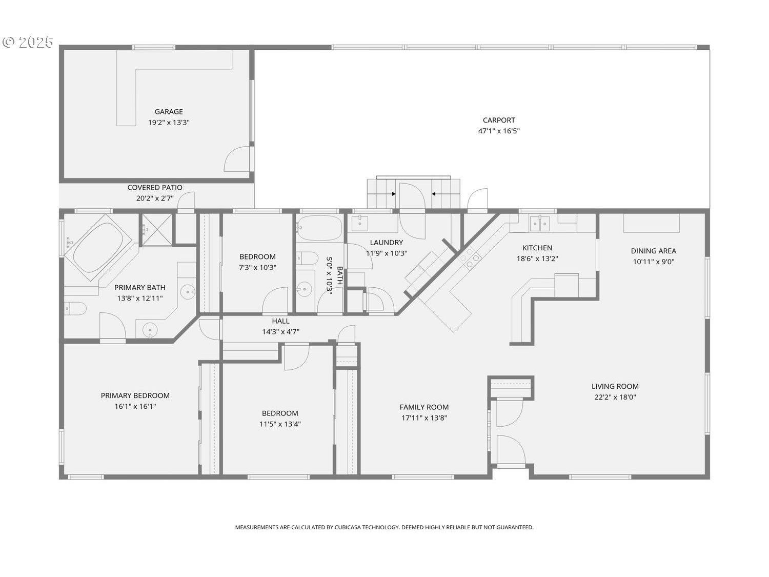
Wonderfully maintained HOMESTEAD 55+ COMMUNITY! Discover comfort, space, and convenience in this beautifully maintained triple-wide manufactured home located in a well-kept park on the peaceful perimeter of town. Residents enjoy a welcoming community meeting room and attractive, well-tended grounds. Inside, the home offers an exceptional layout designed for both gathering and everyday living. The spacious kitchen features an eating bar and flows seamlessly into the vaulted family room, highlighted by a bright skylight. On the opposite side of the kitchen, you’ll find a formal living and dining room, both generously sized, with an additional skylight bringing in natural light. With three bedrooms, the floor plan is both functional and flexible. The primary suite, set privately at the back of the home, includes dual closets and an ensuite bath with double sinks, a soaking tub, and a separate shower. A standout feature is the detached garage/shop equipped with an automatic door and its own sub-panel—ideal for storage, hobbies, or projects. The extra-long carport at the front provides extended covered parking and outdoor versatility. A great opportunity for comfortable living with room to spread out—don’t miss this one!
Listing Provided Courtesy of Kim Carty, Soldera Properties, Inc
General Information
670761586
ManufacturedHomeinPark
91
DOM
3
2
1782
1990
Washington
M2011489
Fern Hill 4/10
Neil Armstrong 2/10
Forest Grove 6/10
Residential
ManufacturedHomeinPark
HOMESTEAD, THE, MS SERIAL 17705940AB, HOME ID: 261674, PERSONAL M
Listing Provided Courtesy of Kim Carty, Soldera Properties, Inc
Krishna Realty data last checked: Feb 22, 2026 00:30 | Listing last modified Feb 18, 2026 15:34,
Source:
Wonderfully maintained HOMESTEAD 55+ COMMUNITY! Discover comfort, space, and convenience in this beautifully maintained triple-wide manufactured home located in a well-kept park on the peaceful perimeter of town. Residents enjoy a welcoming community meeting room and attractive, well-tended grounds. Inside, the home offers an exceptional layout designed for both gathering and everyday living. The spacious kitchen features an eating bar and flows seamlessly into the vaulted family room, highlighted by a bright skylight. On the opposite side of the kitchen, you’ll find a formal living and dining room, both generously sized, with an additional skylight bringing in natural light. With three bedrooms, the floor plan is both functional and flexible. The primary suite, set privately at the back of the home, includes dual closets and an ensuite bath with double sinks, a soaking tub, and a separate shower. A standout feature is the detached garage/shop equipped with an automatic door and its own sub-panel—ideal for storage, hobbies, or projects. The extra-long carport at the front provides extended covered parking and outdoor versatility. A great opportunity for comfortable living with room to spread out—don’t miss this one!