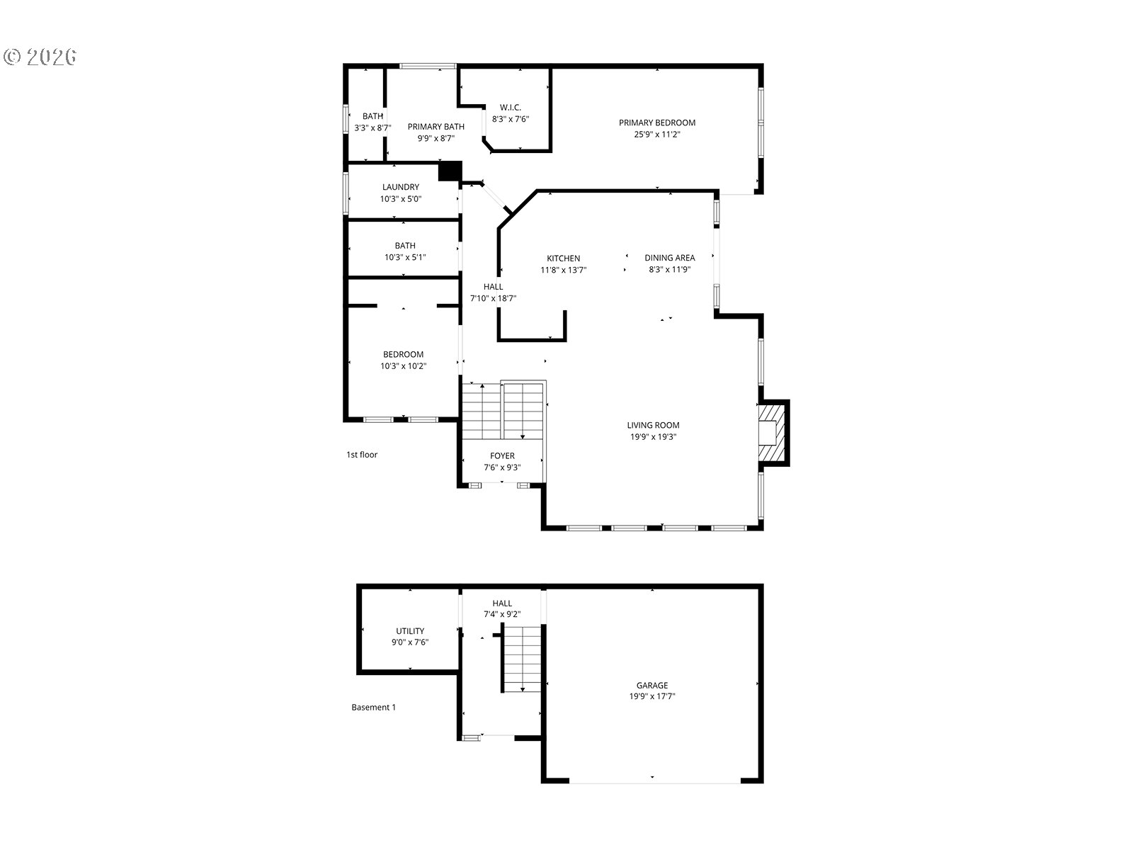
OPEN HOUSE SUNDAY 03/15/26 1:00-3:00. PLEASE STOP BY.Price Reduced! Welcome to a truly special King City Highlands home originally the neighborhood MODEL—and it shows. Lovingly owned for 20+ years and maintained with exceptional care, this residence shines with like-new hardwood floors 2005, newer interior paint, updated bathrooms, & newer lighting. Positioned on a generous quarter-lot, the home feels quiet and private while remaining conveniently to King City Golf Course, Shopping, & Dining. Inside, enjoy an open and airy living, dining, and kitchen flow filled with bright natural light and expansive windows that bring the view in & a gas fireplace in the living room. The floor plan offers two bedrooms and two full baths, including a private primary suite with walk-in closet and a spa-like bath featuring soaking tub and separate shower. The second bedroom (currently used as an office) is ideal for guests, hobbies or an office. Spacious Laundry on the main. Major updates add confidence: electric water heater (2024), furnace (2014), A/C, and a roof under 10 years. The fully finished, sheetrocked garage is as pristine as the home itself—clean, bright, and move-in ready. Located in the desirable King City Highlands 55+ community with a neighborhood Clubhouse center, this is the kind of home that rarely becomes available. A Must See!
Listing Provided Courtesy of Kristin Sholes, MORE Realty
General Information
455445146
SingleFamilyResidence
23
DOM
2
8276.4 SqFt
2
1829
1993
Washington
R2029224
Deer Creek 8/10
Twality 5/10
Tigard 7/10
Residential
SingleFamilyResidence
KING CITY HIGHLANDS NO.6, LOT 170, ACRES 0.19
Listing Provided Courtesy of Kristin Sholes, MORE Realty
Krishna Realty data last checked: Mar 16, 2026 07:37 | Listing last modified Mar 14, 2026 10:24,
Source:
OPEN HOUSE SUNDAY 03/15/26 1:00-3:00. PLEASE STOP BY.Price Reduced! Welcome to a truly special King City Highlands home originally the neighborhood MODEL—and it shows. Lovingly owned for 20+ years and maintained with exceptional care, this residence shines with like-new hardwood floors 2005, newer interior paint, updated bathrooms, & newer lighting. Positioned on a generous quarter-lot, the home feels quiet and private while remaining conveniently to King City Golf Course, Shopping, & Dining. Inside, enjoy an open and airy living, dining, and kitchen flow filled with bright natural light and expansive windows that bring the view in & a gas fireplace in the living room. The floor plan offers two bedrooms and two full baths, including a private primary suite with walk-in closet and a spa-like bath featuring soaking tub and separate shower. The second bedroom (currently used as an office) is ideal for guests, hobbies or an office. Spacious Laundry on the main. Major updates add confidence: electric water heater (2024), furnace (2014), A/C, and a roof under 10 years. The fully finished, sheetrocked garage is as pristine as the home itself—clean, bright, and move-in ready. Located in the desirable King City Highlands 55+ community with a neighborhood Clubhouse center, this is the kind of home that rarely becomes available. A Must See!