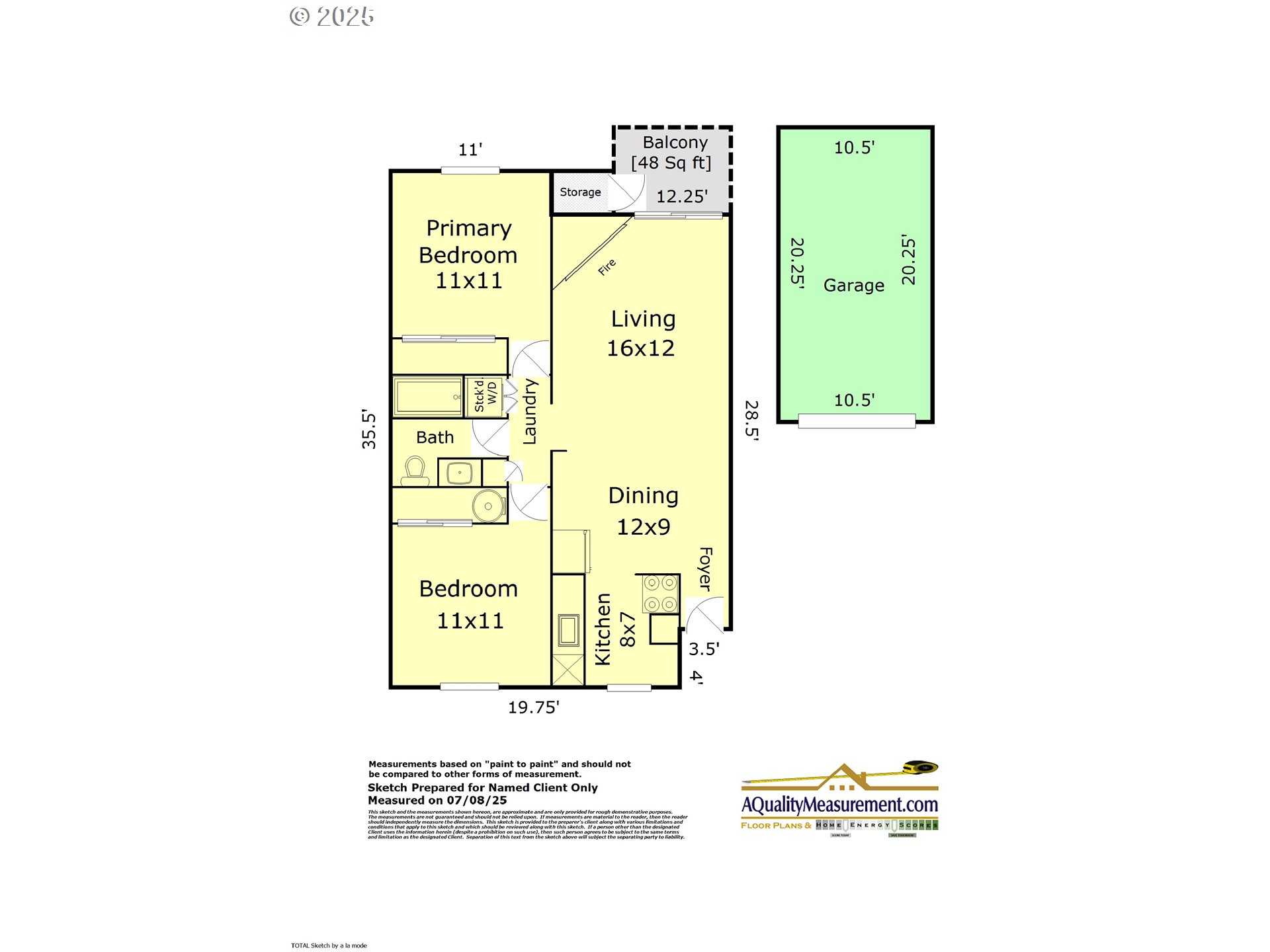
This two bedroom one bathroom condo offers great amenities and the opportunity to customize your space. Enjoy a cozy fireplace and the convenience of in-unit laundry. Relax in the serenity of nature from your covered balcony with attached storage area. Quiet location, peaceful overlooking the creek, a wetland area to natural area and has a pond view. Reserved parking spot as well as a one car garage. This unit is one of few that has both in unit laundry and a garage. The HOA has completed all exterior updates, including siding doors, windows, fresh paint, paving, new stairwells and more. The HOA covers water, garbage, sewer, exterior maintenance and grants access to community amenities including a pool, rec room, tennis courts, scenic pond, walking trails. Enjoy low-maintenance living just minutes from Market of Choice, Nike, Intel, Timberland shopping center, Hwy 217, Hwy 26, and the MAX line.
Listing Provided Courtesy of Amber Morgan, Premiere Property Group, LLC
General Information
580500859
Condominium
266
DOM
2
1
812
1979
Washington
R1030850
Bonny Slope 9/10
Cedar Park
Sunset 5/10
Residential
Condominium
WESTLAKE VILLAGE CONDO, LOT 94
Listing Provided Courtesy of Amber Morgan, Premiere Property Group, LLC
Krishna Realty data last checked: Apr 26, 2026 16:10 | Listing last modified Apr 16, 2026 19:09,
Source:
This two bedroom one bathroom condo offers great amenities and the opportunity to customize your space. Enjoy a cozy fireplace and the convenience of in-unit laundry. Relax in the serenity of nature from your covered balcony with attached storage area. Quiet location, peaceful overlooking the creek, a wetland area to natural area and has a pond view. Reserved parking spot as well as a one car garage. This unit is one of few that has both in unit laundry and a garage. The HOA has completed all exterior updates, including siding doors, windows, fresh paint, paving, new stairwells and more. The HOA covers water, garbage, sewer, exterior maintenance and grants access to community amenities including a pool, rec room, tennis courts, scenic pond, walking trails. Enjoy low-maintenance living just minutes from Market of Choice, Nike, Intel, Timberland shopping center, Hwy 217, Hwy 26, and the MAX line.