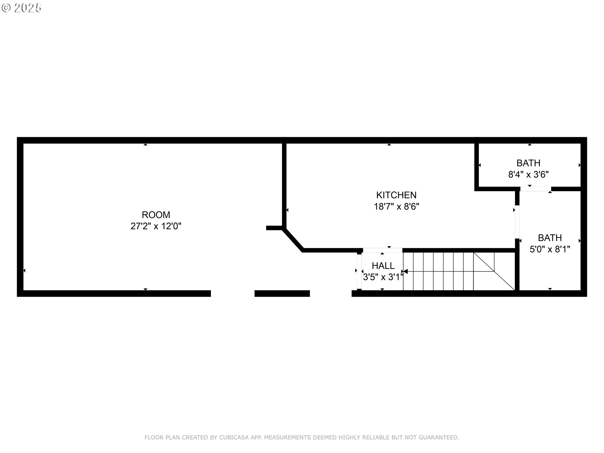
This approximately 3,197 square foot commercial building is currently vacant and ready for immediate occupancy. Situated in the heart of downtown Hillsboro on NE 2nd Street, it offers prime visibility just off the intersection of 2nd and Main Street, directly facing the Washington County Courthouse and Civic Center. The property is just a short walk from public transportation, restaurants, and shops, making it highly accessible and convenient. Zoned SCC-DT (Station Community Commercial – Downtown), it supports a wide range of permitted uses including office, retail, food markets, service stations, schools, medical and veterinary clinics, residential apartments from low to high-rise, group care facilities, and religious institutions. Historically, the building has housed a law firm and a church. For a complete list of permitted uses, refer to the county website.
Listing Provided Courtesy of Kyle Hayden, Hayden Group LLC
General Information
249111139
Commercial
13
DOM
3049.2 SqFt
3197
1908
SCC-DT
Washington
R702065
CommercialSale
Commercial
HILLSBORO, BLOCK 1, LOT PTS 5 & 8
Listing Provided Courtesy of Kyle Hayden, Hayden Group LLC
Krishna Realty data last checked: Oct 12, 2025 13:08 | Listing last modified Aug 13, 2025 08:56,
Source:
This approximately 3,197 square foot commercial building is currently vacant and ready for immediate occupancy. Situated in the heart of downtown Hillsboro on NE 2nd Street, it offers prime visibility just off the intersection of 2nd and Main Street, directly facing the Washington County Courthouse and Civic Center. The property is just a short walk from public transportation, restaurants, and shops, making it highly accessible and convenient. Zoned SCC-DT (Station Community Commercial – Downtown), it supports a wide range of permitted uses including office, retail, food markets, service stations, schools, medical and veterinary clinics, residential apartments from low to high-rise, group care facilities, and religious institutions. Historically, the building has housed a law firm and a church. For a complete list of permitted uses, refer to the county website.