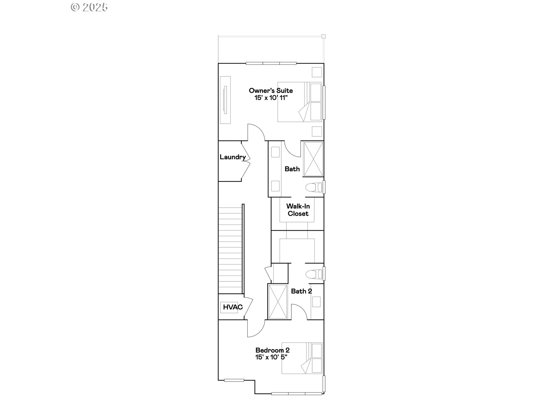
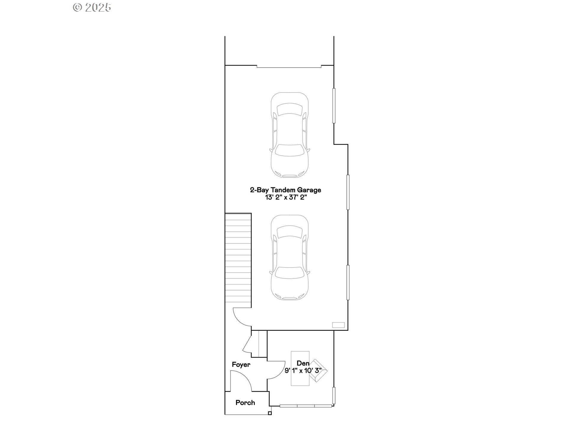
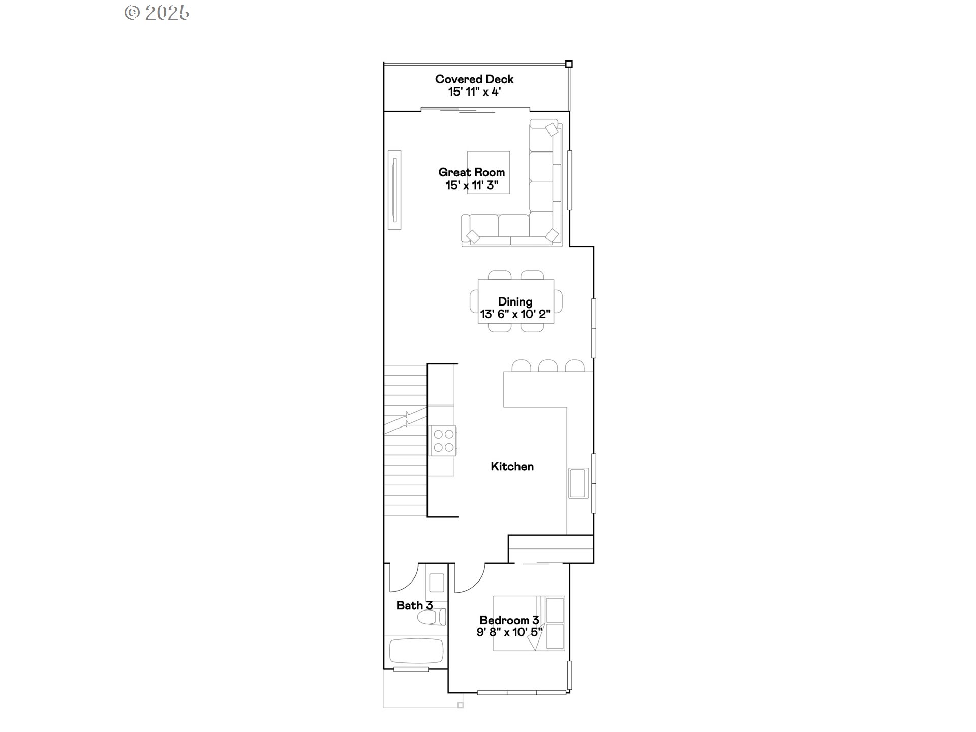
Welcome to Scholls Heights by Lennar. This new construction Bella townhome offers three levels of stylish and functional living. On the entry level, a tandem two-bay garage sits alongside a private den, ideal for work or quiet relaxation. The second floor showcases an open-concept layout that connects the kitchen, dining area, and great room, extending to a covered deck for outdoor enjoyment. A secondary bedroom on this level provides flexibility for guests or a home office. Upstairs are two primary suites, each with an en-suite bathroom and a walk-in closet. Interior finishes include quartz countertops, slab-style cabinets, matte black hardware, and LVP (luxury vinyl plank) flooring. Premium upgrades add a modern touch with under-cabinet lighting and a picket-style backsplash. The home also includes central air conditioning, a refrigerator, washer and dryer, and blinds—all at no extra cost. Located in Beaverton, Scholls Heights offers easy access to downtown Portland, renowned schools, lush parks, and a thriving dining scene. With nearby shopping, outdoor recreation, and major employers, this vibrant community combines comfort and convenience. Rendering is artist conception only. Photos are of a similar home, features and finishes will vary. Estimated completion: November 2025. Homesite: 55. *Below-market rate incentives available when financing with preferred lender.*
Listing Provided Courtesy of Gina Masters, Lennar Sales Corp
General Information
473815283
Attached
1
DOM
3
3
1817
2025
Washington
New Construction
Hazeldale 6/10
Mountain View 3/10
Mountainside 6/10
Residential
Attached
Scholls Heights TH Lot 55
Listing Provided Courtesy of Gina Masters, Lennar Sales Corp
Krishna Realty data last checked: Nov 25, 2025 13:59 | Listing last modified Nov 24, 2025 16:15,
Source:
Welcome to Scholls Heights by Lennar. This new construction Bella townhome offers three levels of stylish and functional living. On the entry level, a tandem two-bay garage sits alongside a private den, ideal for work or quiet relaxation. The second floor showcases an open-concept layout that connects the kitchen, dining area, and great room, extending to a covered deck for outdoor enjoyment. A secondary bedroom on this level provides flexibility for guests or a home office. Upstairs are two primary suites, each with an en-suite bathroom and a walk-in closet. Interior finishes include quartz countertops, slab-style cabinets, matte black hardware, and LVP (luxury vinyl plank) flooring. Premium upgrades add a modern touch with under-cabinet lighting and a picket-style backsplash. The home also includes central air conditioning, a refrigerator, washer and dryer, and blinds—all at no extra cost. Located in Beaverton, Scholls Heights offers easy access to downtown Portland, renowned schools, lush parks, and a thriving dining scene. With nearby shopping, outdoor recreation, and major employers, this vibrant community combines comfort and convenience. Rendering is artist conception only. Photos are of a similar home, features and finishes will vary. Estimated completion: November 2025. Homesite: 55. *Below-market rate incentives available when financing with preferred lender.*