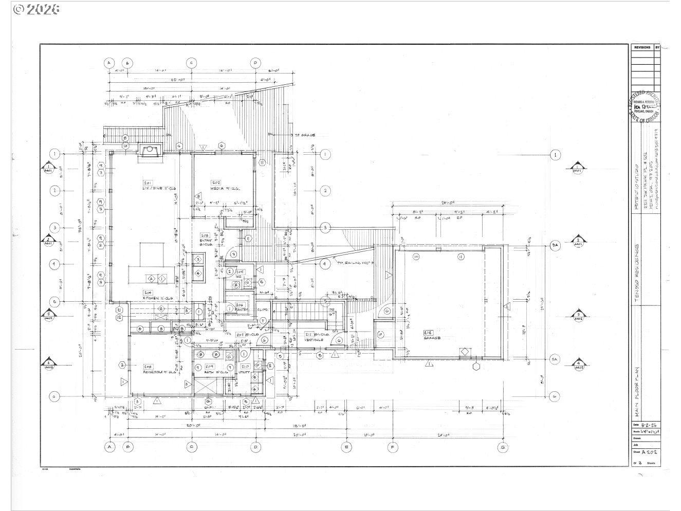
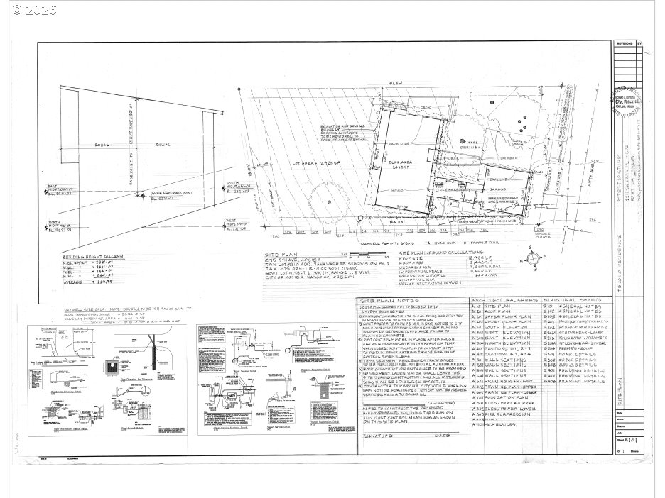
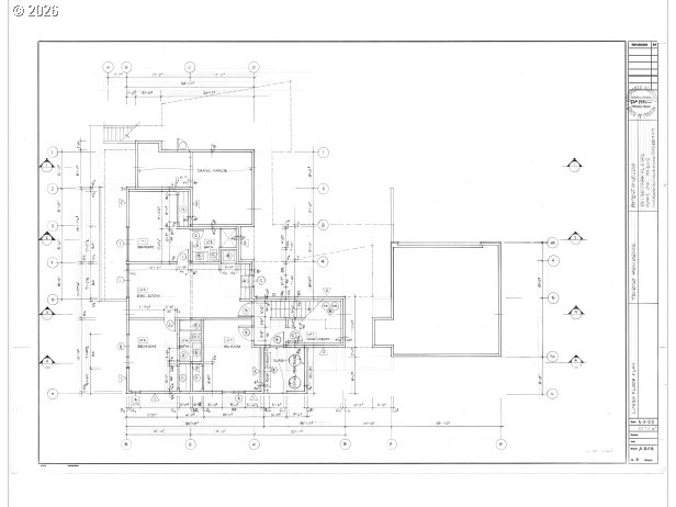
Build your custom home using a thoughtfully designed plan already permitted by the City of Mosier (Wasco County permits still required). The property includes architectural plans, engineering, geotech report, tree removal, and City of Mosier permits. Wasco County permits are still required, with an estimated cost of approximately $14,000. Designed with short- and long-term rental potential, the flexible layout offers strong income opportunity.The main-level entrance opens to a primary bedroom and 1.5 baths, positioned to capture views of the Columbia River and the Washington Syncline. The lower level features two additional bedrooms, each with an en suite bath and sitting area, plus the option to add a kitchenette per the approved wet bar plan. A walk-out basement leads to a lower patio, ideal for enjoying the views and creating a separate rental space. Architect Rick Potestio designed the home to reduce excavation costs, enhance views, and preserve the front oak tree.
Listing Provided Courtesy of Nancy Kelly, Harcourts Real Estate Network Group
General Information
502792152
SingleFamilyResidence
95
DOM
0.3 acres
R
Wasco
17968
Mosier 5/10
Mosier 5/10
The Dalles
Land
SingleFamilyResidence
SECTION 11 TOWNSHIP 2N RANGE 11E QUARTER PRCL 2300 MAPTAX LOT: 02N11 E11 02300 00
Listing Provided Courtesy of Nancy Kelly, Harcourts Real Estate Network Group
Krishna Realty data last checked: Apr 27, 2026 03:56 | Listing last modified Jan 22, 2026 11:31,
Source:
Download our Mobile app
Residence Information
No
Features and Utilities
Financial
1410.73
1
300 / Annually
Cash
01-22-2026
No
No
Comparable Information
95
95
Cash
$450,000
$450,000
Jan 22, 2026 11:31
Schools
charter Elementary : Mosier
5/10Ratingscharter Middle : Mosier
5/10Ratings High : The DallesN/ARatings
Map
Listing courtesy of Harcourts Real Estate Network Group.
Build your custom home using a thoughtfully designed plan already permitted by the City of Mosier (Wasco County permits still required). The property includes architectural plans, engineering, geotech report, tree removal, and City of Mosier permits. Wasco County permits are still required, with an estimated cost of approximately $14,000. Designed with short- and long-term rental potential, the flexible layout offers strong income opportunity.The main-level entrance opens to a primary bedroom and 1.5 baths, positioned to capture views of the Columbia River and the Washington Syncline. The lower level features two additional bedrooms, each with an en suite bath and sitting area, plus the option to add a kitchenette per the approved wet bar plan. A walk-out basement leads to a lower patio, ideal for enjoying the views and creating a separate rental space. Architect Rick Potestio designed the home to reduce excavation costs, enhance views, and preserve the front oak tree.