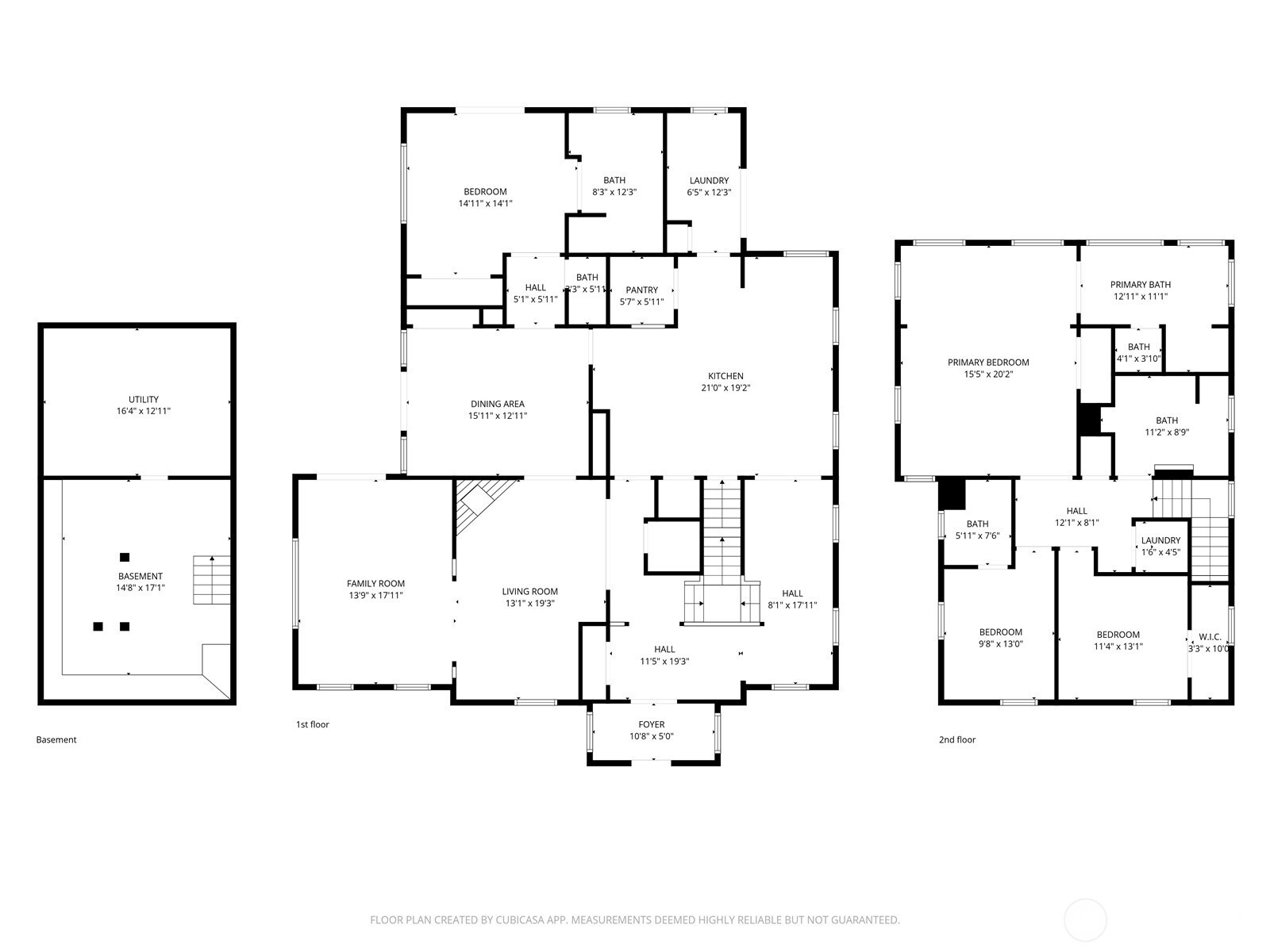
Discover a rare opportunity to own one of Walla Walla’s beautiful historic residences—where original architecture meets refined modern living. This premier Vacation Rental property carries the coveted Type 2 license and offers exceptional versatility for both investors and homeowners seeking elegance, income potential, and an unbeatable location. Completely remodeled in 2015, with additional updates in 2023, the home showcases a state-of-the-art chef’s kitchen designed for both entertaining and everyday luxury. Highlights include quartz countertops, an expansive island with prep sink, double ovens, dual dishwashers, and a professional-grade gas range. With 4 bedrooms and 4.5 baths, the layout is as functional as it is inviting. Two luxurious primary suites feature private en-suites, while each additional bedroom is paired with its own dedicated bath. Convenience is elevated with laundry rooms on both levels. Step outside to experience 3 separate decks and outdoor dining spaces, offering privacy and multiple areas to relax or entertain under the stars. Whether hosting gatherings or enjoying quiet evenings, the outdoor living experience is truly exceptional. Located just steps from Whitman College and the vibrant downtown core, this home places you in the heart of it all—fine dining, wine tasting, and boutique shopping just moments away. A timeless home, a prime location, and a proven income opportunity—this is Walla Walla living at its finest!
Listing Provided Courtesy of Scooter Johnston, eXp Realty
General Information
NWM2504038
Single Family Residence
1
DOM
5
7200.47 SqFt
4.5
3578
1910
Walla Walla
Residential
Single Family Residence
Listing Provided Courtesy of Scooter Johnston, eXp Realty
Krishna Realty data last checked: Apr 11, 2026 06:54 | Listing last modified Apr 11, 2026 12:00,
Source:
Discover a rare opportunity to own one of Walla Walla’s beautiful historic residences—where original architecture meets refined modern living. This premier Vacation Rental property carries the coveted Type 2 license and offers exceptional versatility for both investors and homeowners seeking elegance, income potential, and an unbeatable location. Completely remodeled in 2015, with additional updates in 2023, the home showcases a state-of-the-art chef’s kitchen designed for both entertaining and everyday luxury. Highlights include quartz countertops, an expansive island with prep sink, double ovens, dual dishwashers, and a professional-grade gas range. With 4 bedrooms and 4.5 baths, the layout is as functional as it is inviting. Two luxurious primary suites feature private en-suites, while each additional bedroom is paired with its own dedicated bath. Convenience is elevated with laundry rooms on both levels. Step outside to experience 3 separate decks and outdoor dining spaces, offering privacy and multiple areas to relax or entertain under the stars. Whether hosting gatherings or enjoying quiet evenings, the outdoor living experience is truly exceptional. Located just steps from Whitman College and the vibrant downtown core, this home places you in the heart of it all—fine dining, wine tasting, and boutique shopping just moments away. A timeless home, a prime location, and a proven income opportunity—this is Walla Walla living at its finest!