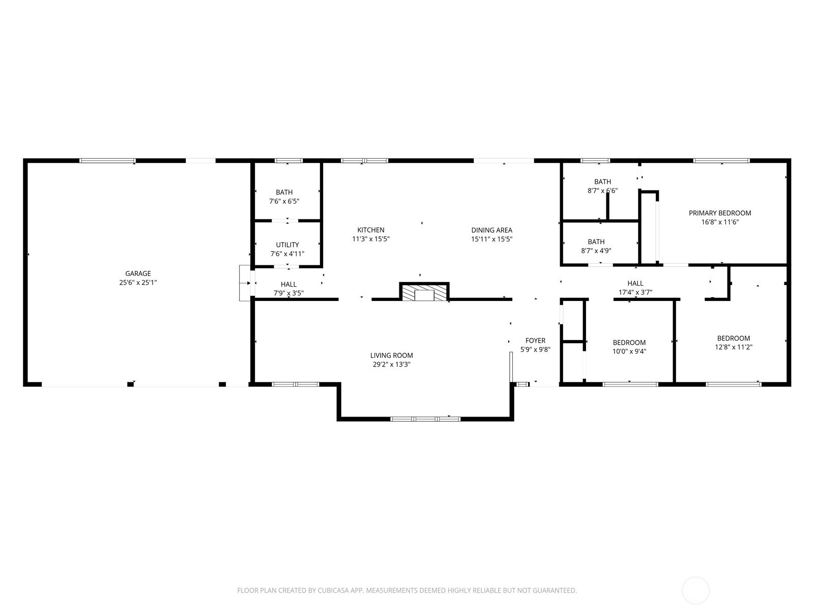
Located in a highly sought-after College Place neighborhood near the elementary school, Kiwanis Park, Walla Walla University, and restaurants in downtown College Place, this well-maintained single-level ranch home offers space and convenience. Situated on a 21,033 sq ft lot—just shy of half an acre—the property provides plenty of room to enjoy outdoor living while remaining close to town amenities. The home features 3 bedrooms & 2.5 bathrooms with a functional floor plan. Large front windows bring abundant natural light into the living room, where a wood-burning FP creates a warm focal point and flows into the dining area. A second family room opens to the kitchen, offering additional living space for relaxing or entertaining. The kitchen peninsula includes seating, and a sliding door connects to the covered back deck—perfect for enjoying the spacious backyard. Vinyl plank flooring runs through the family room, hallway, kitchen, and laundry room. The primary bedroom includes two closets for added storage. Additional features include a central vacuum system, large two-car garage, and extended driveway. The fully fenced property is irrigated with an UG sprinkler system and includes garden space. A 24' x 30' shop offers a wood-burning stove, open shelving, and storage cabinets, plus a lean-to covered gravel area for additional parking or workspace.Recent updates include roof (2021), exterior paint (2022), gas furnace (2026), new tub/shower in hall bath (2026),new toilets (2026)
Listing Provided Courtesy of Jose Martinez, Windermere RE Walla Walla
General Information
NWM2480315
Single Family Residence
17
DOM
3
0.48 acres
2.5
1652
1970
Walla Walla
Residential
Single Family Residence
Listing Provided Courtesy of Jose Martinez, Windermere RE Walla Walla
Krishna Realty data last checked: Apr 06, 2026 18:03 | Listing last modified Apr 02, 2026 21:23,
Source:
Located in a highly sought-after College Place neighborhood near the elementary school, Kiwanis Park, Walla Walla University, and restaurants in downtown College Place, this well-maintained single-level ranch home offers space and convenience. Situated on a 21,033 sq ft lot—just shy of half an acre—the property provides plenty of room to enjoy outdoor living while remaining close to town amenities. The home features 3 bedrooms & 2.5 bathrooms with a functional floor plan. Large front windows bring abundant natural light into the living room, where a wood-burning FP creates a warm focal point and flows into the dining area. A second family room opens to the kitchen, offering additional living space for relaxing or entertaining. The kitchen peninsula includes seating, and a sliding door connects to the covered back deck—perfect for enjoying the spacious backyard. Vinyl plank flooring runs through the family room, hallway, kitchen, and laundry room. The primary bedroom includes two closets for added storage. Additional features include a central vacuum system, large two-car garage, and extended driveway. The fully fenced property is irrigated with an UG sprinkler system and includes garden space. A 24' x 30' shop offers a wood-burning stove, open shelving, and storage cabinets, plus a lean-to covered gravel area for additional parking or workspace.Recent updates include roof (2021), exterior paint (2022), gas furnace (2026), new tub/shower in hall bath (2026),new toilets (2026)