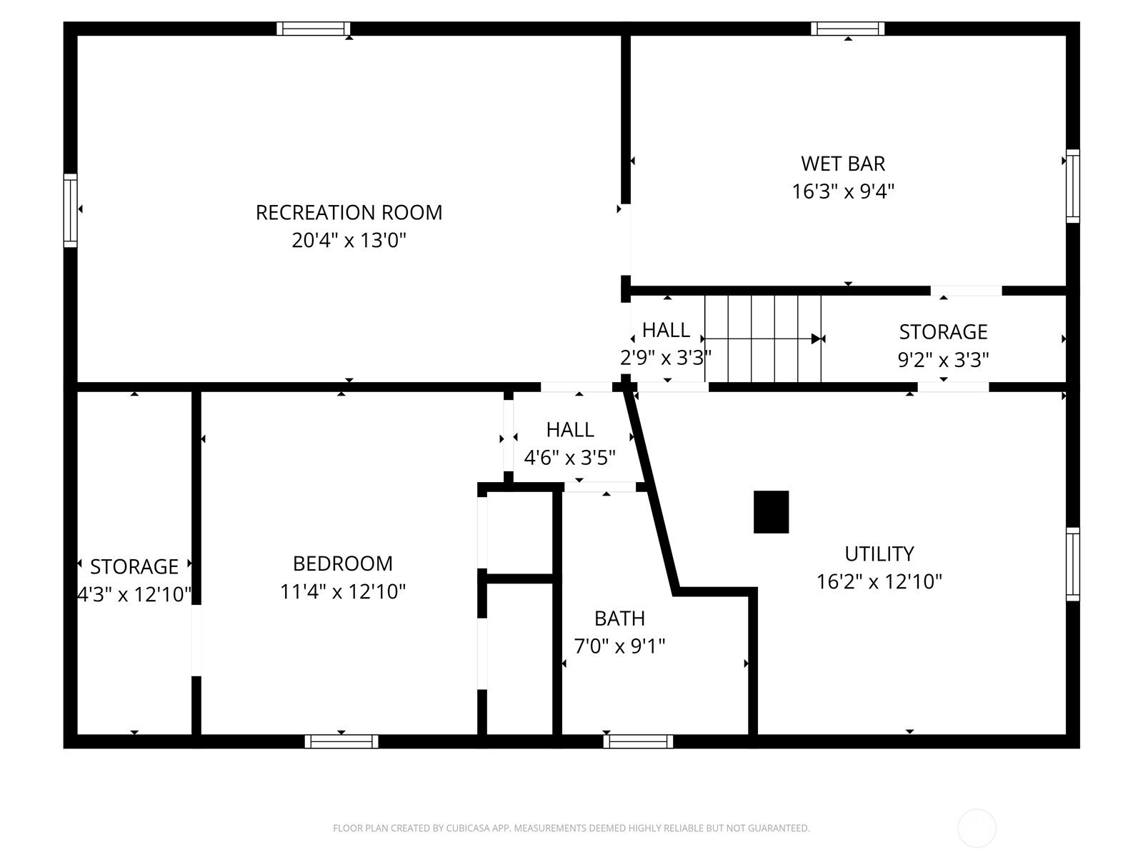
This sweet 3-bed, 2-bath home blends classic charm w/ solid construction, featuring original hardwood floors & timeless built-ins. 2 comfortable bedrooms & a full bath are conveniently located on the main floor, while the basement offers exceptional flexibility w/ a 3rd bedroom, spacious rec room, & second kitchen space ideal for guests, hobbies, or multi-generational living. Comfort comes easy w/ energy-efficient vinyl windows & updated HVAC. Outside, the deep lot provides impressive space, including a 2-car garage, a large attached shop & RV parking, making this a rare find w/ both character & practicality. Bring your vision, ready for your updates. Convenient central location close to schools, shopping & parks. Welcome home!
Listing Provided Courtesy of Scooter Johnston, eXp Realty
General Information
NWM2459643
Single Family Residence
0
DOM
3
9448.16 SqFt
2
1922
1951
Walla Walla
Residential
Single Family Residence
Listing Provided Courtesy of Scooter Johnston, eXp Realty
Krishna Realty data last checked: Dec 07, 2025 19:53 | Listing last modified Dec 08, 2025 03:04,
Source:
Download our Mobile app
Residence Information
1922
3
2
0
2
Composition
2,
16 - 1 Story w/Bsmnt.
1951
Finished
Finished
Poured Concrete
Features and Utilities
Dishwasher(s), Refrigerator(s), Stove(s)/Range(s)
Second Kitchen, Double Pane/Storm Window, Water Heater
Wood
Public
Sewer Connected
Financial
3147.1
Cash Out, Conventional, FHA, State Bond, USDA Loan, VA Loan
12-07-2025
Comparable Information
0
0
Cash Out, Conventional, FHA, State Bond, USDA Loan, VA Loan
This sweet 3-bed, 2-bath home blends classic charm w/ solid construction, featuring original hardwood floors & timeless built-ins. 2 comfortable bedrooms & a full bath are conveniently located on the main floor, while the basement offers exceptional flexibility w/ a 3rd bedroom, spacious rec room, & second kitchen space ideal for guests, hobbies, or multi-generational living. Comfort comes easy w/ energy-efficient vinyl windows & updated HVAC. Outside, the deep lot provides impressive space, including a 2-car garage, a large attached shop & RV parking, making this a rare find w/ both character & practicality. Bring your vision, ready for your updates. Convenient central location close to schools, shopping & parks. Welcome home!