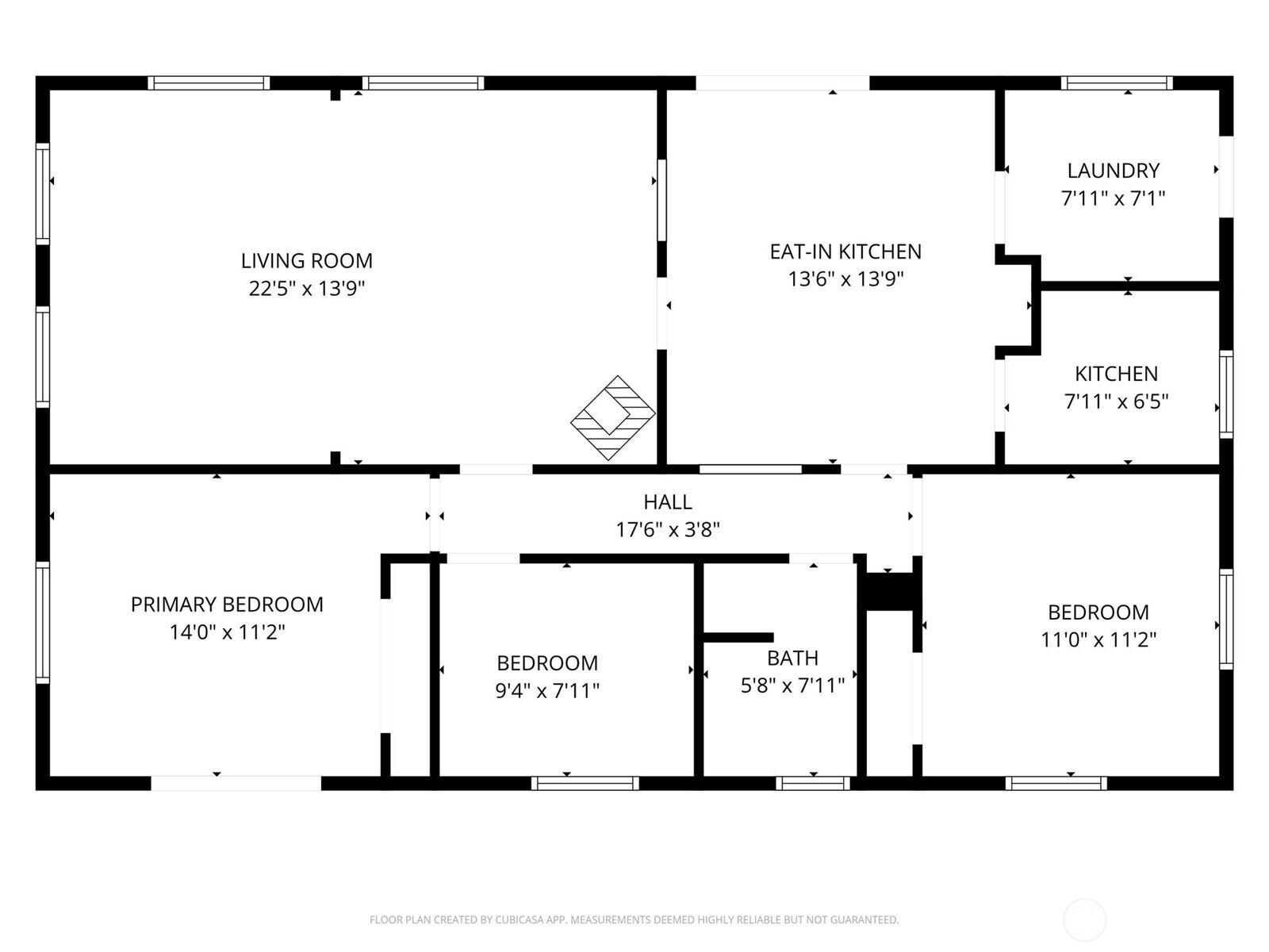
Your private Puget Island sanctuary: 300 feet of slough frontage, 1.4 acres of level land, and a front-row seat to nature’s daily show. Sip morning coffee on the deck while eagles kettle overhead; spend lazy afternoons in a waterside hammock as herons wade and deer wander through the trees. This single-story 3-bedroom home with a total of three lots offers space, serenity, and endless wildlife viewing. Launch kayaks from your own back yard for an afternoon paddle, grill the day's catch on the deck for dinner, and experience life at a different pace. Small-town Cathlamet, with art galleries, a craft brewery, and marina are just a few moments away. Welcome to the island life you’ve been looking for!
Listing Provided Courtesy of Lacey Vik, Wahkiakum Realty LLC
General Information
NWM2456854
Single Family Residence
152
DOM
3
1.41 acres
1
1144
1978
Wahkiakum
J Wendt Elem/Wa
John C Thomas M
Wahkiakum High
Residential
Single Family Residence
Listing Provided Courtesy of Lacey Vik, Wahkiakum Realty LLC
Krishna Realty data last checked: Apr 29, 2026 08:24 | Listing last modified Apr 28, 2026 20:01,
Source:
Download our Mobile app
Residence Information
1144
3
1
0
1
Composition
10 - 1 Story
1978
None
None
Pillar/Post/Pier, Po
Features and Utilities
Dryer, Refrigerator, Stove(s)/Range(s), Washer
Water Heater
Wood
Public
Septic Tank
Financial
1864
Cash, Conventional, USDA Loan, VA Loan
11-21-2025
Comparable Information
152
152
Cash, Conventional, USDA Loan, VA Loan
$399,000
$399,000
Apr 28, 2026 20:01
Schools
Elementary : J Wendt Elem/WaN/ARatings Middle : John C Thomas M N/ARatings High : Wahkiakum HighN/ARatings
Your private Puget Island sanctuary: 300 feet of slough frontage, 1.4 acres of level land, and a front-row seat to nature’s daily show. Sip morning coffee on the deck while eagles kettle overhead; spend lazy afternoons in a waterside hammock as herons wade and deer wander through the trees. This single-story 3-bedroom home with a total of three lots offers space, serenity, and endless wildlife viewing. Launch kayaks from your own back yard for an afternoon paddle, grill the day's catch on the deck for dinner, and experience life at a different pace. Small-town Cathlamet, with art galleries, a craft brewery, and marina are just a few moments away. Welcome to the island life you’ve been looking for!