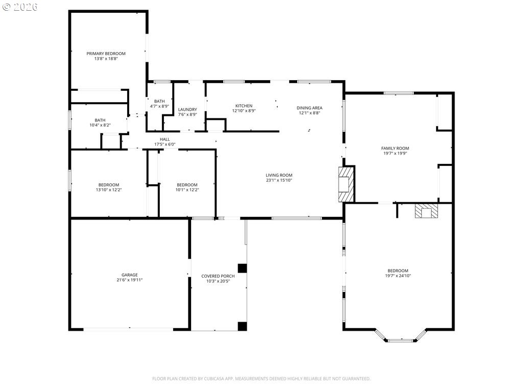
Welcome to 815 Quince Ave. This spacious 2378 sq. ft. home offers more than meets the eye. County shows this as a 3 bed, 2 bath, but there is a 4th bedroom with french doors leading to the adjacent fenced courtyard. This home has flexible space for guests, home office, hobbies, and a large family. You will love the inviting galley kitchen perfect for efficient meal prep and everyday living. A cozy gas fireplace and a warming wood burning fireplace create warm space to gather. Vaulted ceilings for that open feel, ceiling fans, LVP, and wall to wall carpet in the bedrooms. Home also features a water softener, 2 car garage, large courtyard for gatherings and relaxation on a fenced and cross fenced back yard which provides RV parking, raised garden beds, storage, and an outbuilding. Located on a public road with a large corner lot for space, versatility, and functionality. Make it your dream home. New and fresh interior paint and flooring throughout.
Listing Provided Courtesy of Debora Wood, John L Scott Hermiston
General Information
201699831
SingleFamilyResidence
2
DOM
3
10018.8 SqFt
2
2378
1974
R1
Umatilla
131911
Highland Hills 7/10
Sandstone 5/10
Hermiston
Residential
SingleFamilyResidence
4N2811 DC 02100
Listing Provided Courtesy of Debora Wood, John L Scott Hermiston
Krishna Realty data last checked: Feb 27, 2026 07:01 | Listing last modified Feb 26, 2026 13:41,
Source:
Welcome to 815 Quince Ave. This spacious 2378 sq. ft. home offers more than meets the eye. County shows this as a 3 bed, 2 bath, but there is a 4th bedroom with french doors leading to the adjacent fenced courtyard. This home has flexible space for guests, home office, hobbies, and a large family. You will love the inviting galley kitchen perfect for efficient meal prep and everyday living. A cozy gas fireplace and a warming wood burning fireplace create warm space to gather. Vaulted ceilings for that open feel, ceiling fans, LVP, and wall to wall carpet in the bedrooms. Home also features a water softener, 2 car garage, large courtyard for gatherings and relaxation on a fenced and cross fenced back yard which provides RV parking, raised garden beds, storage, and an outbuilding. Located on a public road with a large corner lot for space, versatility, and functionality. Make it your dream home. New and fresh interior paint and flooring throughout.