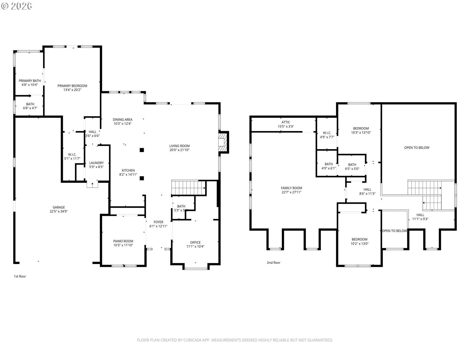
Back on market - with no fault of the home or seller. Welcome to peaceful Eastern Oregon living in the always enjoyable community of Adams. This beautifully custom-designed and built 4-bedroom, 2.5-bath home offers 2,970 +/- square feet of quality craftsmanship with convenient access to both Pendleton and Walla Walla. Step inside to soaring vaulted ceilings that feature richly colored plaster walls. Carlisle wide-plank flooring, and elegant travertine marble floors that create a timeless and inviting atmosphere. The gourmet chef’s kitchen is thoughtfully designed with stainless steel appliances and ample space for entertaining and everyday living. Outdoors, enjoy a private patio retreat featuring a gazebo fully equipped with gas and electrical service—perfect for gatherings or quiet evenings. The 5.2 acres of fenced pasture provide ideal space for a horse or outdoor recreation, complete with a mowed walking path that winds along a tranquil creek. A standout feature of the property is the 30' x 48' fully finished and insulated shop, offering room for a Class A motorhome, a boat, generous storage, and a dedicated workbench for projects of any size. This exceptional property blends refined interior finishes, functional outbuildings, and serene acreage—an ideal setting to enjoy the good life in Eastern Oregon.
Listing Provided Courtesy of Kevin Hale, Coldwell Banker Farley Company
General Information
695843461
SingleFamilyResidence
84
DOM
4
5.2 acres
2.5
2970
2006
EFU
Umatilla
159256
Athena
Athena-Weston
Weston-McEwen
Residential
SingleFamilyResidence
See listing file.
Listing Provided Courtesy of Kevin Hale, Coldwell Banker Farley Company
Krishna Realty data last checked: Apr 27, 2026 04:06 | Listing last modified Apr 06, 2026 09:20,
Source:
Download our Mobile app
Residence Information
1170
1800
0
2970
County
2970
1/Gas
4
2
1
2.5
Composition
2, Attached
Stories2
Driveway,RVAccessPar
2
2006
No
Cedar
CrawlSpace
RVBoatStorage
CrawlSpace
ConcretePerimeter
DoublePaneWindows,Vi
Features and Utilities
BuiltinRange, Disposal, GasAppliances, InstantHotWater, Island, StainlessSteelAppliance, Tile
Back on market - with no fault of the home or seller. Welcome to peaceful Eastern Oregon living in the always enjoyable community of Adams. This beautifully custom-designed and built 4-bedroom, 2.5-bath home offers 2,970 +/- square feet of quality craftsmanship with convenient access to both Pendleton and Walla Walla. Step inside to soaring vaulted ceilings that feature richly colored plaster walls. Carlisle wide-plank flooring, and elegant travertine marble floors that create a timeless and inviting atmosphere. The gourmet chef’s kitchen is thoughtfully designed with stainless steel appliances and ample space for entertaining and everyday living. Outdoors, enjoy a private patio retreat featuring a gazebo fully equipped with gas and electrical service—perfect for gatherings or quiet evenings. The 5.2 acres of fenced pasture provide ideal space for a horse or outdoor recreation, complete with a mowed walking path that winds along a tranquil creek. A standout feature of the property is the 30' x 48' fully finished and insulated shop, offering room for a Class A motorhome, a boat, generous storage, and a dedicated workbench for projects of any size. This exceptional property blends refined interior finishes, functional outbuildings, and serene acreage—an ideal setting to enjoy the good life in Eastern Oregon.