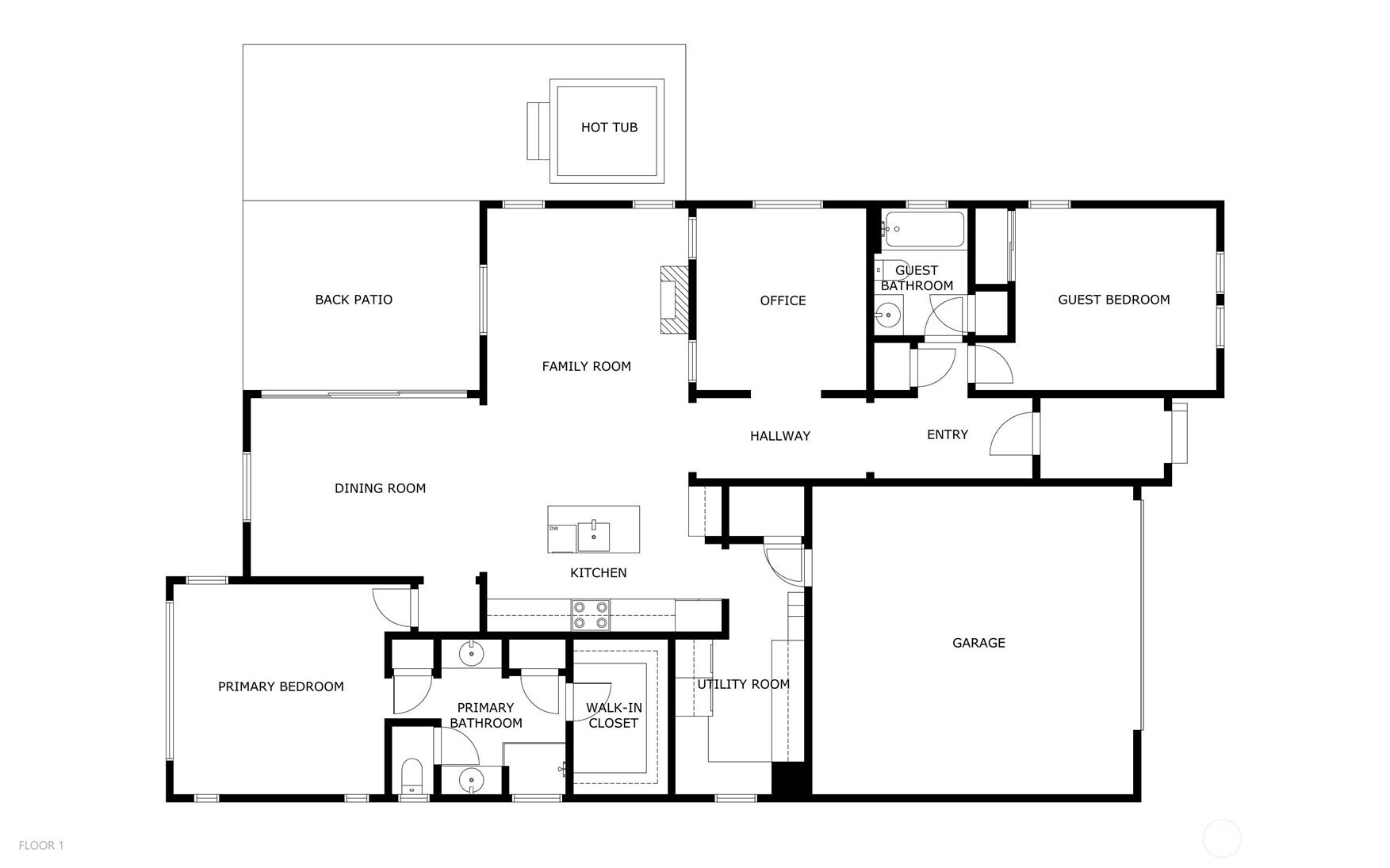
Welcome to your dream retreat in the coveted Jubilee 55+ Community! Nestled in the Fox Run neighborhood, this home sits at the end of a quiet dead-end street w/ trees on 2 sides & golf course on a 3rd side. This outstanding 2-bed, 1.75-bath home offers 1,918sf of beautifully appointed living space & thoughtful floorplan tailored for comfort & everyday enjoyment. Engineered hardwood floors, quartz countertops, & plantation shutters throughout. Kitchen boasts an oversized island w/ breakfast bar, stainless steel appliances, & opens seamlessly to the living room w/cozy fireplace. Dedicated office plus built-in desk in laundry room for versatile work or creative project organization. Host dinner in the formal dining room. A wall of collapsing glass reveals a covered patio & inviting outdoor living space. Private backyard oasis features mature landscaping, beautiful brick work, hidden stone patio, & relaxing hot tub. A 2-car garage, water filtration system, tankless water heater & HOA that maintains front yard add ease to everyday living. Primary suite boasts golf course views, ensuite bathroom w/ dual vanity separates, shower w/ built-in-bench, walk-in closet, & abundant storage. Extensive trails nearby lead down to a private beach on Puget Sound. The Jubilee Lodge offers an indoor pool and spa, fitness center, game rooms, clubs & activities, & and so much more. Easy access to Lacey’s shopping, dining, and natural beauty make this an unparalleled Northwest lifestyle opportunity.
Listing Provided Courtesy of Marti Baker, MVP Realty Group
General Information
NWM2485147
Single Family Residence
1
DOM
2
8742.49 SqFt
2
1918
2015
Thurston
Buyer To Verify
Buyer To Verify
Buyer To Verify
Residential
Single Family Residence
Listing Provided Courtesy of Marti Baker, MVP Realty Group
Krishna Realty data last checked: Feb 28, 2026 04:17 | Listing last modified Feb 28, 2026 01:52,
Source:
Download our Mobile app
Residence Information
1918
1/Gas
2
1
0
2
Composition
10 - 1 Story
2015
None
None
Poured Concrete
Features and Utilities
Dishwasher(s), Dryer(s), Microwave(s), Refrigerator(s), Stove(s)/Range(s), Tankless Water Heater, Wa
Welcome to your dream retreat in the coveted Jubilee 55+ Community! Nestled in the Fox Run neighborhood, this home sits at the end of a quiet dead-end street w/ trees on 2 sides & golf course on a 3rd side. This outstanding 2-bed, 1.75-bath home offers 1,918sf of beautifully appointed living space & thoughtful floorplan tailored for comfort & everyday enjoyment. Engineered hardwood floors, quartz countertops, & plantation shutters throughout. Kitchen boasts an oversized island w/ breakfast bar, stainless steel appliances, & opens seamlessly to the living room w/cozy fireplace. Dedicated office plus built-in desk in laundry room for versatile work or creative project organization. Host dinner in the formal dining room. A wall of collapsing glass reveals a covered patio & inviting outdoor living space. Private backyard oasis features mature landscaping, beautiful brick work, hidden stone patio, & relaxing hot tub. A 2-car garage, water filtration system, tankless water heater & HOA that maintains front yard add ease to everyday living. Primary suite boasts golf course views, ensuite bathroom w/ dual vanity separates, shower w/ built-in-bench, walk-in closet, & abundant storage. Extensive trails nearby lead down to a private beach on Puget Sound. The Jubilee Lodge offers an indoor pool and spa, fitness center, game rooms, clubs & activities, & and so much more. Easy access to Lacey’s shopping, dining, and natural beauty make this an unparalleled Northwest lifestyle opportunity.