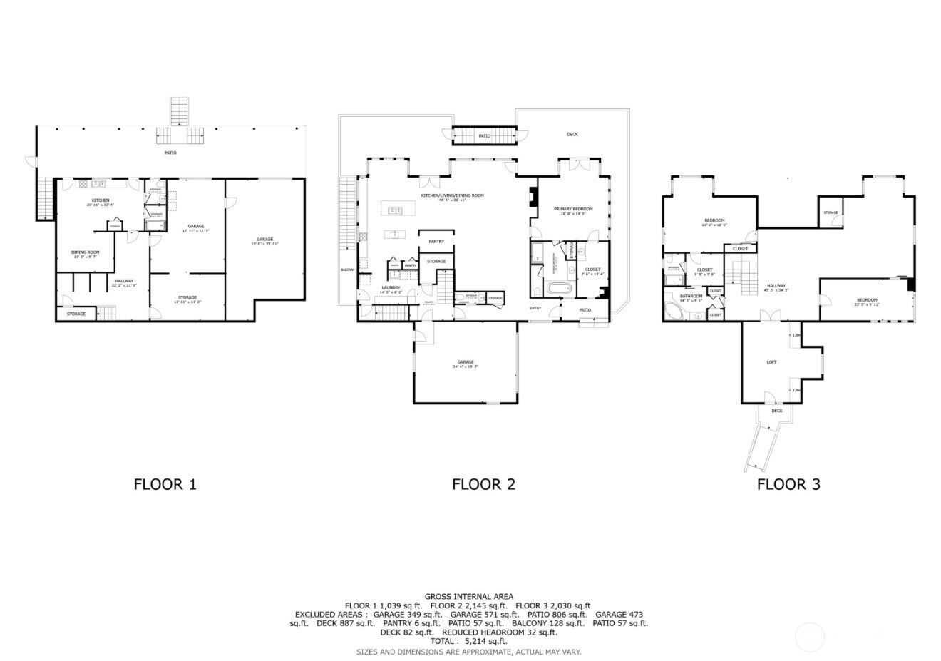
Experience the ultimate waterfront lifestyle on Eld Inlet at Flapjack Point in the desirable Griffin School District and Steamboat Island Community. This rare no-bank property offers 180-degree views from one of Thurston County’s finest beaches, creating a true everyday retreat. This one-owner home features a traditional yet versatile floorplan with vaulted ceilings, large picture windows, and a spacious gourmet kitchen ideal for entertaining. Two primary suites, each with full baths and walk-in closets, plus multiple flexible spaces for an office, gym, studio, arts and crafts, or guest use. This home adapts to your lifestyle. New carpet & pad throughout the main home & efficiency studio above the detached shop, and fresh interior paint. The daylight basement includes a full kitchen, 3/4 bath, and additional living quarters. Enjoy mature, vibrant & colorful landscaping, a covered gazebo at the water’s edge, and endless opportunities to relax or host gatherings. A private boat launch, moorage buoy, with included tideland, complete this exceptional setting. Additional highlights include an attached 2-car garage, basement utility garage, detached 3-car shop, and a fully functional 1,000± sq ft studio apartment—perfect for guests or extended living. A rare opportunity to own a one-of-a-kind Pacific Northwest waterfront retreat. Come take a look and make your dreams become a reality.
Listing Provided Courtesy of Lisa Lageschulte, RE/MAX Connect
General Information
NWM2503078
Single Family Residence
17
DOM
2
0.75 acres
2.5
6636
2002
Thurston
Griffin Elem
Griffin Mid Sch
Capital High
Residential
Single Family Residence
Listing Provided Courtesy of Lisa Lageschulte, RE/MAX Connect
Krishna Realty data last checked: Apr 27, 2026 17:27 | Listing last modified Apr 23, 2026 16:48,
Source:
Experience the ultimate waterfront lifestyle on Eld Inlet at Flapjack Point in the desirable Griffin School District and Steamboat Island Community. This rare no-bank property offers 180-degree views from one of Thurston County’s finest beaches, creating a true everyday retreat. This one-owner home features a traditional yet versatile floorplan with vaulted ceilings, large picture windows, and a spacious gourmet kitchen ideal for entertaining. Two primary suites, each with full baths and walk-in closets, plus multiple flexible spaces for an office, gym, studio, arts and crafts, or guest use. This home adapts to your lifestyle. New carpet & pad throughout the main home & efficiency studio above the detached shop, and fresh interior paint. The daylight basement includes a full kitchen, 3/4 bath, and additional living quarters. Enjoy mature, vibrant & colorful landscaping, a covered gazebo at the water’s edge, and endless opportunities to relax or host gatherings. A private boat launch, moorage buoy, with included tideland, complete this exceptional setting. Additional highlights include an attached 2-car garage, basement utility garage, detached 3-car shop, and a fully functional 1,000± sq ft studio apartment—perfect for guests or extended living. A rare opportunity to own a one-of-a-kind Pacific Northwest waterfront retreat. Come take a look and make your dreams become a reality.