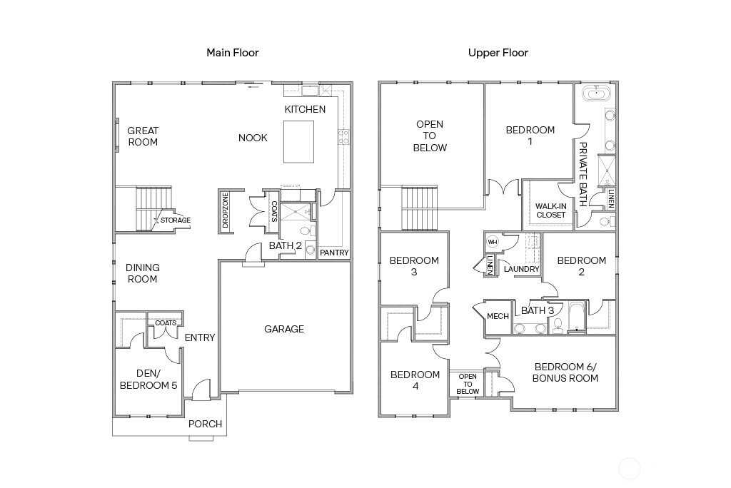
Welcome to Sleater Crossing by D.R. Horton, a new construction community on the border of Lacey and Olympia! The Caslon Plan is a stunning 5-bedroom, 2.75-bathroom home with a dramatic open great room that soars from the main level to the second floor, flooding the space with natural light. A main-floor bedroom and 3/4 bath add convenient flexibility for guests or a home office. Upstairs, a generous bonus room offers additional versatile living space. The home features laminate flooring throughout the main level living areas, cabinets with soft-close drawers and doors, white millwork, spindled staircase railing, stainless steel appliances with gas range, and quartz countertops. A heat pump provides efficient year-round comfort. Electric Vehicle Charger Ready with a pre-wired 50-amp dedicated circuit. Smart home technology and D.R. Horton’s 10-year warranty come standard. Community amenities include a park, half basketball court, open green spaces, and walking trails. The Chehalis Western Trail is nearby. Easy access to I-5, JBLM (13.7 mi), and Olympia’s historic district. Served by North Thurston School District with all three schools within approximately 1 mile. Special financing available through DHI Mortgage for qualified buyers. Buyers must register their broker on first visit, including open houses.
Listing Provided Courtesy of Kevin Pier, D.R. Horton
General Information
NWM2470841
Single Family Residence
72
DOM
5
5000.69 SqFt
3
3408
2026
Thurston
Pleasant Glade
Chinook Mid
North Thurston
Residential
Single Family Residence
Listing Provided Courtesy of Kevin Pier, D.R. Horton
Krishna Realty data last checked: Apr 06, 2026 17:42 | Listing last modified Apr 03, 2026 19:20,
Source:
Welcome to Sleater Crossing by D.R. Horton, a new construction community on the border of Lacey and Olympia! The Caslon Plan is a stunning 5-bedroom, 2.75-bathroom home with a dramatic open great room that soars from the main level to the second floor, flooding the space with natural light. A main-floor bedroom and 3/4 bath add convenient flexibility for guests or a home office. Upstairs, a generous bonus room offers additional versatile living space. The home features laminate flooring throughout the main level living areas, cabinets with soft-close drawers and doors, white millwork, spindled staircase railing, stainless steel appliances with gas range, and quartz countertops. A heat pump provides efficient year-round comfort. Electric Vehicle Charger Ready with a pre-wired 50-amp dedicated circuit. Smart home technology and D.R. Horton’s 10-year warranty come standard. Community amenities include a park, half basketball court, open green spaces, and walking trails. The Chehalis Western Trail is nearby. Easy access to I-5, JBLM (13.7 mi), and Olympia’s historic district. Served by North Thurston School District with all three schools within approximately 1 mile. Special financing available through DHI Mortgage for qualified buyers. Buyers must register their broker on first visit, including open houses.