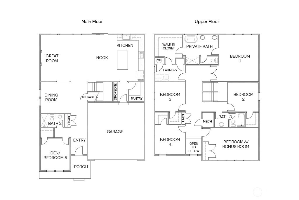
Welcome to Sleater Crossing! DR Horton's Latest & Highly Anticipated new community in Olympia. The Stafford plan is a well laid out floorplan w/Main Floor Bedroom & 3/4 bath. With a total of 6 bedrooms, there will be plenty of space for everyone. The home features hard surface flooring through main level (excluding bedroom per plan), paint grade cabinets w/soft close drawers & doors, white millwork & doors throughout, spindled staircase railing, Stainless Steel Appliances w/Gas Range, Quartz Countertops, Heat Pump for Air Conditioning, & much more. Convenient location just minutes to I-5, JBLM, shopping, & recreation. Come see us and see what the fuss is all about. Buyers must register their broker on first visit including open houses.
Listing Provided Courtesy of Kevin Pier, D.R. Horton
General Information
NWM2441682
Single Family Residence
65
DOM
6
5323.03 SqFt
3
3259
2025
Thurston
Pleasant Glade
Chinook Mid
North Thurston
Residential
Single Family Residence
Listing Provided Courtesy of Kevin Pier, D.R. Horton
Krishna Realty data last checked: Dec 12, 2025 09:40 | Listing last modified Dec 09, 2025 21:01,
Source:
Welcome to Sleater Crossing! DR Horton's Latest & Highly Anticipated new community in Olympia. The Stafford plan is a well laid out floorplan w/Main Floor Bedroom & 3/4 bath. With a total of 6 bedrooms, there will be plenty of space for everyone. The home features hard surface flooring through main level (excluding bedroom per plan), paint grade cabinets w/soft close drawers & doors, white millwork & doors throughout, spindled staircase railing, Stainless Steel Appliances w/Gas Range, Quartz Countertops, Heat Pump for Air Conditioning, & much more. Convenient location just minutes to I-5, JBLM, shopping, & recreation. Come see us and see what the fuss is all about. Buyers must register their broker on first visit including open houses.