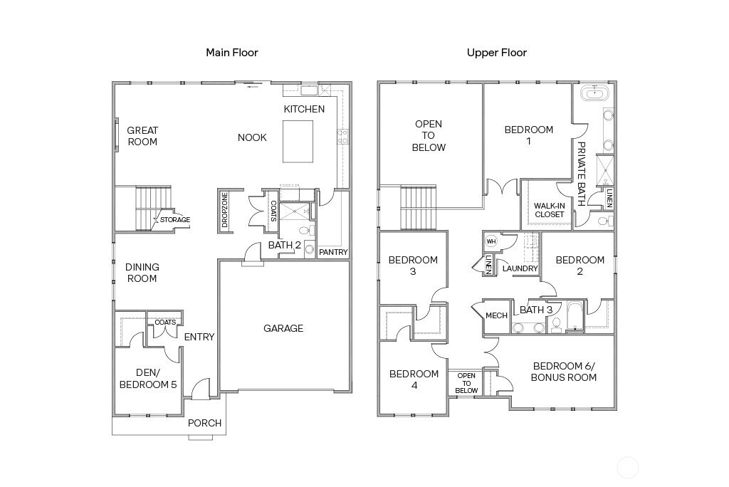
Welcome to Sleater Crossing by D.R. Horton, a new construction community on the border of Lacey and Olympia! The Caslon Plan is a 5-bed, 2.75-bath home featuring a dramatic open great room that extends from the main level to the second floor, flooding the space with natural light. A main-floor bedroom and 3/4 bath provide convenient flexibility. Upstairs, a generous bonus room offers additional versatile living space. The home features laminate flooring throughout the main level living areas, tons of cabinetry with soft-close drawers and doors, white millwork, spindled staircase railing, stainless steel appliances with gas range, quartz countertops, and a bath off the primary suite with walk-in closet. A heat pump delivers efficient year-round comfort. A pre-wired 50-amp circuit for EV charging is included. Smart home technology and D.R. Horton’s 10-year warranty come standard. Community amenities include a park, half basketball court, open green spaces, and walking trails. Easy access to I-5, JBLM (13.7 mi), and Olympia’s historic district. Served by North Thurston School District with all three schools within approximately 1 mile. Special financing available through DHI Mortgage for qualified buyers. Buyers must register their broker on first visit, including open houses.
Listing Provided Courtesy of Kevin Pier, D.R. Horton
General Information
NWM2455025
Single Family Residence
50
DOM
5
5022.47 SqFt
3
3408
2025
Thurston
Pleasant Glade
Chinook Mid
North Thurston
Residential
Single Family Residence
Listing Provided Courtesy of Kevin Pier, D.R. Horton
Krishna Realty data last checked: Feb 22, 2026 06:48 | Listing last modified Feb 22, 2026 01:39,
Source:
Welcome to Sleater Crossing by D.R. Horton, a new construction community on the border of Lacey and Olympia! The Caslon Plan is a 5-bed, 2.75-bath home featuring a dramatic open great room that extends from the main level to the second floor, flooding the space with natural light. A main-floor bedroom and 3/4 bath provide convenient flexibility. Upstairs, a generous bonus room offers additional versatile living space. The home features laminate flooring throughout the main level living areas, tons of cabinetry with soft-close drawers and doors, white millwork, spindled staircase railing, stainless steel appliances with gas range, quartz countertops, and a bath off the primary suite with walk-in closet. A heat pump delivers efficient year-round comfort. A pre-wired 50-amp circuit for EV charging is included. Smart home technology and D.R. Horton’s 10-year warranty come standard. Community amenities include a park, half basketball court, open green spaces, and walking trails. Easy access to I-5, JBLM (13.7 mi), and Olympia’s historic district. Served by North Thurston School District with all three schools within approximately 1 mile. Special financing available through DHI Mortgage for qualified buyers. Buyers must register their broker on first visit, including open houses.