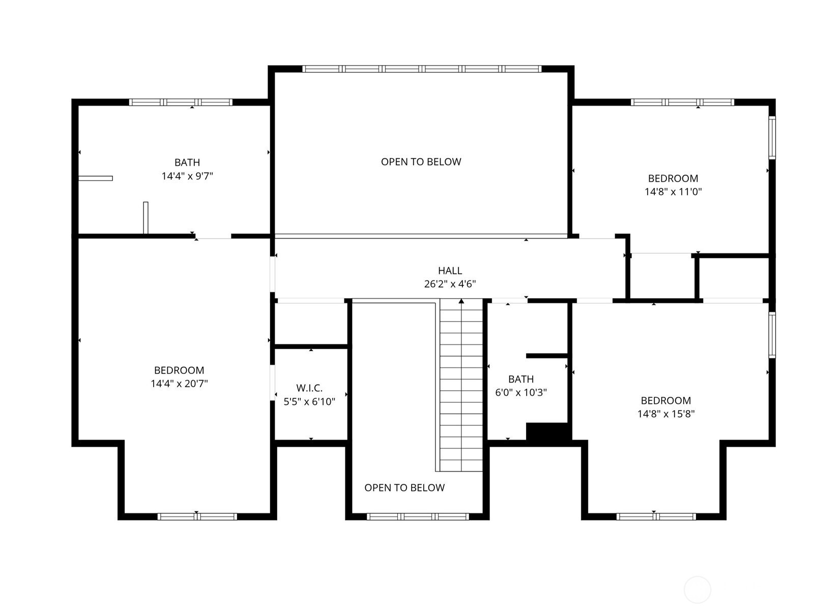
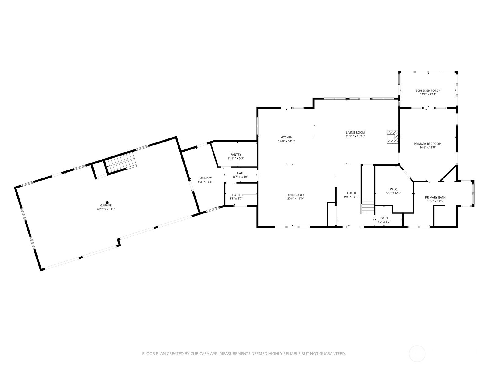
Stunning Lindal Cedar home on nearly 10 acres! The craftsman-style details, tongue-&-groove cedar ceilings, hardwood floors, wood-wrapped windows, & solid wood doors of this gorgeous home are sure to impress; the 20ft vaulted living room w exposed beams, catwalk above, and wall of windows will take your breath away! Fulfill your kitchen dreams with 5-burner Wolf stove, newer stainless appliances, farm sink, beautiful cabinetry, & expansive granite island w hammered copper prep sink. Main floor primary delights w enticing sunroom, spa-appointed bath featuring walk-in shower w multiple heads, jacuzzi tub, & cedar ceiling, and walk-in closet w built-ins. Upstairs maintains the exposed beam/vaulted experience, overlooking living room & outdoor views, while boasting a 2nd primary w walk-in closet, glass-door shower, & soaking tub, plus 2 more bedrooms & additional full bath--providing multiple options for generational living, work from home office, or generous guest space. For the utmost in convenience, don't miss the large pantry, mudroom, and 3/4 bath off the kitchen, en route to the immense 4-car garage w Gladiator rack system & generous bonus space above, accessible via built-in stairs! Take in the gardens & wildlife on the covered composite deck (enhanced by recessed lights, outdoor speakers, hot-cold plumbing, & propane connection) or bask on the open deck amidst natural beauty; wooded privacy, fenced garden beds, greenhouse, fire pit. A must see!
Listing Provided Courtesy of Julie Bradshaw, RE/MAX Northwest
General Information
NWM2507646
Single Family Residence
0
DOM
4
9.59 acres
3.5
3777
2007
Thurston
Buyer To Verify
Buyer To Verify
Buyer To Verify
Residential
Single Family Residence
Listing Provided Courtesy of Julie Bradshaw, RE/MAX Northwest
Krishna Realty data last checked: Apr 16, 2026 15:39 | Listing last modified Apr 16, 2026 19:21,
Source:
Stunning Lindal Cedar home on nearly 10 acres! The craftsman-style details, tongue-&-groove cedar ceilings, hardwood floors, wood-wrapped windows, & solid wood doors of this gorgeous home are sure to impress; the 20ft vaulted living room w exposed beams, catwalk above, and wall of windows will take your breath away! Fulfill your kitchen dreams with 5-burner Wolf stove, newer stainless appliances, farm sink, beautiful cabinetry, & expansive granite island w hammered copper prep sink. Main floor primary delights w enticing sunroom, spa-appointed bath featuring walk-in shower w multiple heads, jacuzzi tub, & cedar ceiling, and walk-in closet w built-ins. Upstairs maintains the exposed beam/vaulted experience, overlooking living room & outdoor views, while boasting a 2nd primary w walk-in closet, glass-door shower, & soaking tub, plus 2 more bedrooms & additional full bath--providing multiple options for generational living, work from home office, or generous guest space. For the utmost in convenience, don't miss the large pantry, mudroom, and 3/4 bath off the kitchen, en route to the immense 4-car garage w Gladiator rack system & generous bonus space above, accessible via built-in stairs! Take in the gardens & wildlife on the covered composite deck (enhanced by recessed lights, outdoor speakers, hot-cold plumbing, & propane connection) or bask on the open deck amidst natural beauty; wooded privacy, fenced garden beds, greenhouse, fire pit. A must see!