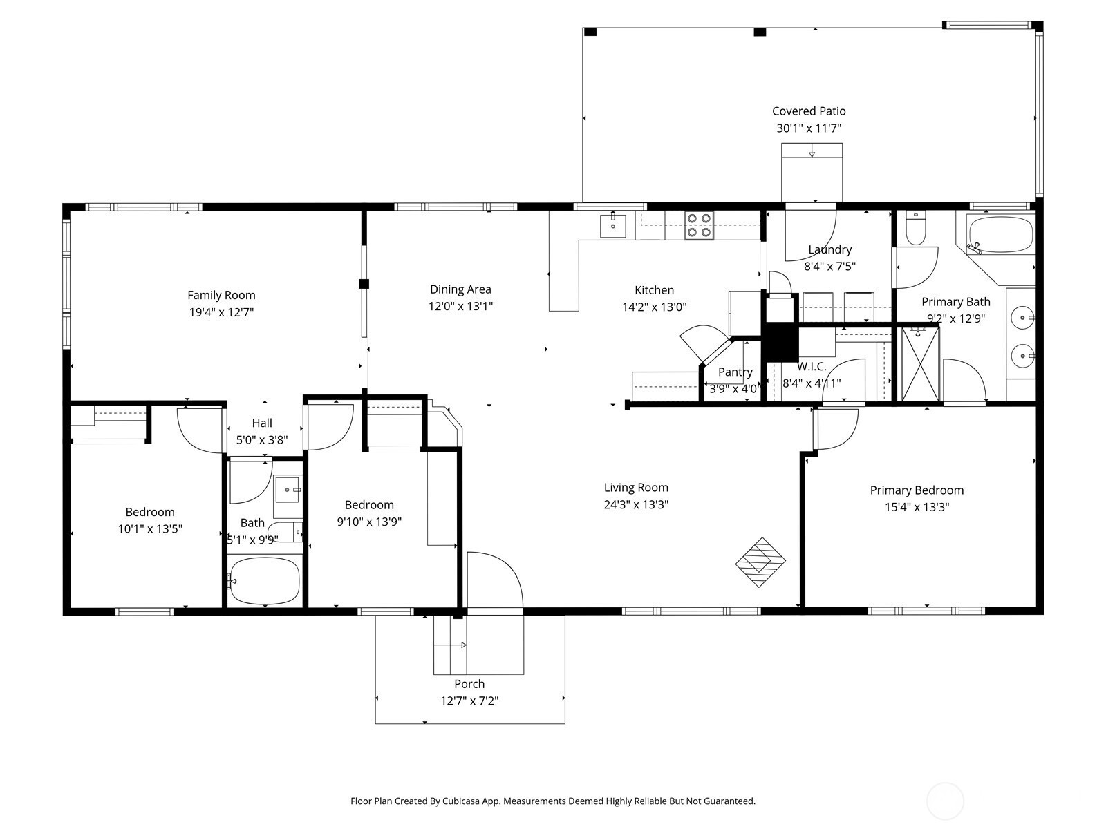
Tucked away in a peaceful pocket and perched on a hill, this property offers the kind of lifestyle many buyers are searching for - space, privacy, and the quiet beauty of the Pacific Northwest, all while remaining just minutes from the conveniences of town. Inside, the home offers approximately 1,782 square feet of comfortable living space with three bedrooms and two bathrooms. The layout flows naturally between the living room, kitchen, and dining areas, creating a warm and welcoming environment for everyday living or gathering with guests. Large windows bring in natural light and offer views of the surrounding landscape, adding to the home's inviting atmosphere. The kitchen provides generous cabinetry and workspace, while the primary suite offers a private retreat with its own bath and ample closet space. Step outside and the property truly shines. Surrounded by open space and mature trees, the setting offers room to garden, entertain, or simply enjoy the peace and privacy that comes with having space of your own. Located just minutes from Lacey amenities, parks, recreation, and major commuter routes - including convenient access to JBLM - this home offers the perfect balance of rural tranquility and everyday convenience.
Listing Provided Courtesy of Brian Alarcon, Timber Real Estate
General Information
NWM2487548
Manufactured On Land
1
DOM
3
0.41 acres
2
1782
2009
Thurston
Evergreen Fores
Nisqually Mid
River Ridge Hig
Residential
Manufactured On Land
Listing Provided Courtesy of Brian Alarcon, Timber Real Estate
Krishna Realty data last checked: Mar 06, 2026 15:53 | Listing last modified Mar 05, 2026 16:34,
Source:
Tucked away in a peaceful pocket and perched on a hill, this property offers the kind of lifestyle many buyers are searching for - space, privacy, and the quiet beauty of the Pacific Northwest, all while remaining just minutes from the conveniences of town. Inside, the home offers approximately 1,782 square feet of comfortable living space with three bedrooms and two bathrooms. The layout flows naturally between the living room, kitchen, and dining areas, creating a warm and welcoming environment for everyday living or gathering with guests. Large windows bring in natural light and offer views of the surrounding landscape, adding to the home's inviting atmosphere. The kitchen provides generous cabinetry and workspace, while the primary suite offers a private retreat with its own bath and ample closet space. Step outside and the property truly shines. Surrounded by open space and mature trees, the setting offers room to garden, entertain, or simply enjoy the peace and privacy that comes with having space of your own. Located just minutes from Lacey amenities, parks, recreation, and major commuter routes - including convenient access to JBLM - this home offers the perfect balance of rural tranquility and everyday convenience.