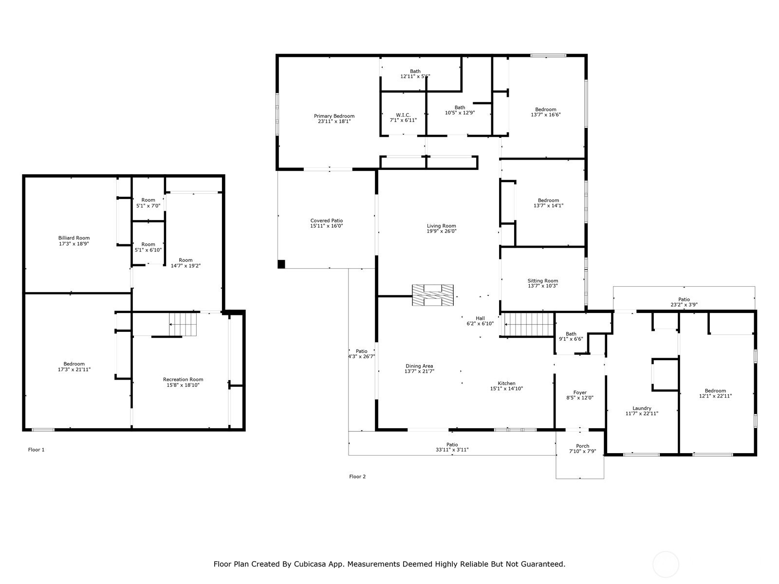
Crescent Bend Farm is a meticulously cared for equestrian estate on 20.03 acres in Chattaroy featuring a 4,200+ sq ft brick rancher with thoughtfully planned horse facilities for the professional or hobbyist alike. The 5 bed, 3 bath home offers a primary ensuite, spacious kitchen, office, mudroom, finished basement, multiple living spaces & covered patio. The 60'x100' indoor arena features overhead lighting & mason sand/rubber footing as well as 5 stalls + foaling stall with power, drive-through hay/equipment storage, & heated tack & feed rooms. The 100’x200’ outdoor arena, round pen and 4 fenced paddocks complete the setup. The gated/paved driveway & oversized 6-bay shop with EV hookup & backup diesel generator add to the appeal.
Listing Provided Courtesy of Michael Schmidt, John L. Scott, Inc
General Information
NWM2464793
Single Family Residence
173
DOM
5
20.03 acres
3
4268
1971
Spokane
Riverside Elem
Riverside Mid
Riverside High
Residential
Single Family Residence
Listing Provided Courtesy of Michael Schmidt, John L. Scott, Inc
Krishna Realty data last checked: Apr 26, 2026 10:39 | Listing last modified Apr 14, 2026 18:38,
Source:
Crescent Bend Farm is a meticulously cared for equestrian estate on 20.03 acres in Chattaroy featuring a 4,200+ sq ft brick rancher with thoughtfully planned horse facilities for the professional or hobbyist alike. The 5 bed, 3 bath home offers a primary ensuite, spacious kitchen, office, mudroom, finished basement, multiple living spaces & covered patio. The 60'x100' indoor arena features overhead lighting & mason sand/rubber footing as well as 5 stalls + foaling stall with power, drive-through hay/equipment storage, & heated tack & feed rooms. The 100’x200’ outdoor arena, round pen and 4 fenced paddocks complete the setup. The gated/paved driveway & oversized 6-bay shop with EV hookup & backup diesel generator add to the appeal.