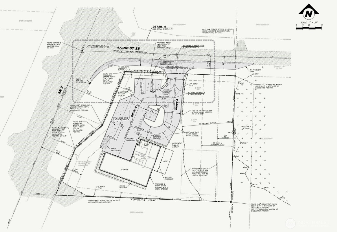
Situated on a prime corner lot along State Route 9, this 1.03-acre (approx. 44,867 SF) CRC-zoned parcel offers a strong development opportunity for an owner-user or investor. The zoning allows for a wide range of uses including daycare, auto repair, church, retail, office, restaurant, veterinary clinic, and more. With power and water available at the property, permits and plans already in hand, and an average of 29,000 cars passing daily, the site is well positioned for a quick path to construction. Its placement on Hwy 9 and minutes from SR-522 gives it excellent visibility and access. This empty lot is ready for someone to bring their vision to life.
Listing Provided Courtesy of Josh Strok, Coldwell Banker Danforth
General Information
NWM2465219
Commercial Industrial
66
DOM
1.03 acres
0
Agricul
Snohomish
Commercial Sale
Commercial Industrial
Listing Provided Courtesy of Josh Strok, Coldwell Banker Danforth
Krishna Realty data last checked: May 06, 2026 03:23 | Listing last modified May 05, 2026 21:17,
Source:
Situated on a prime corner lot along State Route 9, this 1.03-acre (approx. 44,867 SF) CRC-zoned parcel offers a strong development opportunity for an owner-user or investor. The zoning allows for a wide range of uses including daycare, auto repair, church, retail, office, restaurant, veterinary clinic, and more. With power and water available at the property, permits and plans already in hand, and an average of 29,000 cars passing daily, the site is well positioned for a quick path to construction. Its placement on Hwy 9 and minutes from SR-522 gives it excellent visibility and access. This empty lot is ready for someone to bring their vision to life.