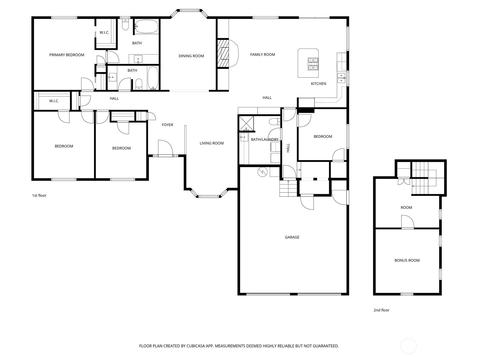
Stately and timeless brick upscale rambler design with more to offer! Enjoy over 1/4 acre of manicured grounds surrounded by nature on a quiet cul-de-sac moments from everything! East-facing windows draw in soft morning sun & fantastic natural light while trees all around provide dappled shade in the summertime. Life flows easily through the functional, open layout w/ maple hardwood floors, Andersen windows, efficient cellular shades & a cozy gas fireplace surrounded by built-ins & a custom brick mantle. Hosting & entertaining is a breeze between the formal dining room & the roomy kitchen, equipped w/ gas cooking, maple cabinetry, an island w/ bar seats & a spacious eating nook w/ a peekaboo Puget Sound view. Versatile layout w/ 4 large bedrooms, including a king-sized primary boasting dual closets & an en suite w/ heated floors & a jetted tub. Upstairs, a large & light-filled bonus room offers endless possibility: a home office, theater, 5th bedroom, play area, or whatever else you can imagine! The covered patio overlooks the lush, private backyard, mature fruit trees & ample space for pets, play & additional gardens (kept watered by a 7-zone sprinkler system). Attached 2-car garage w/ custom redwood doors includes a shop space & storage room for all your projects, gear & hobbies. Quiet & private, this house is located in an amazingly beautiful, peaceful, and walkable neighborhood that has expansive views of Puget Sound, parks, cafes, and shops within strolling distance.
Listing Provided Courtesy of Carmen C.C. Crispeno, RE/MAX Northwest
General Information
NWM2503084
Single Family Residence
40
DOM
4
0.27 acres
3
2679
1993
Snohomish
Edmonds Elem
Meadowdale Mid
Meadowdale High
Residential
Single Family Residence
Listing Provided Courtesy of Carmen C.C. Crispeno, RE/MAX Northwest
Krishna Realty data last checked: Apr 27, 2026 03:14 | Listing last modified Apr 14, 2026 18:41,
Source:
Stately and timeless brick upscale rambler design with more to offer! Enjoy over 1/4 acre of manicured grounds surrounded by nature on a quiet cul-de-sac moments from everything! East-facing windows draw in soft morning sun & fantastic natural light while trees all around provide dappled shade in the summertime. Life flows easily through the functional, open layout w/ maple hardwood floors, Andersen windows, efficient cellular shades & a cozy gas fireplace surrounded by built-ins & a custom brick mantle. Hosting & entertaining is a breeze between the formal dining room & the roomy kitchen, equipped w/ gas cooking, maple cabinetry, an island w/ bar seats & a spacious eating nook w/ a peekaboo Puget Sound view. Versatile layout w/ 4 large bedrooms, including a king-sized primary boasting dual closets & an en suite w/ heated floors & a jetted tub. Upstairs, a large & light-filled bonus room offers endless possibility: a home office, theater, 5th bedroom, play area, or whatever else you can imagine! The covered patio overlooks the lush, private backyard, mature fruit trees & ample space for pets, play & additional gardens (kept watered by a 7-zone sprinkler system). Attached 2-car garage w/ custom redwood doors includes a shop space & storage room for all your projects, gear & hobbies. Quiet & private, this house is located in an amazingly beautiful, peaceful, and walkable neighborhood that has expansive views of Puget Sound, parks, cafes, and shops within strolling distance.