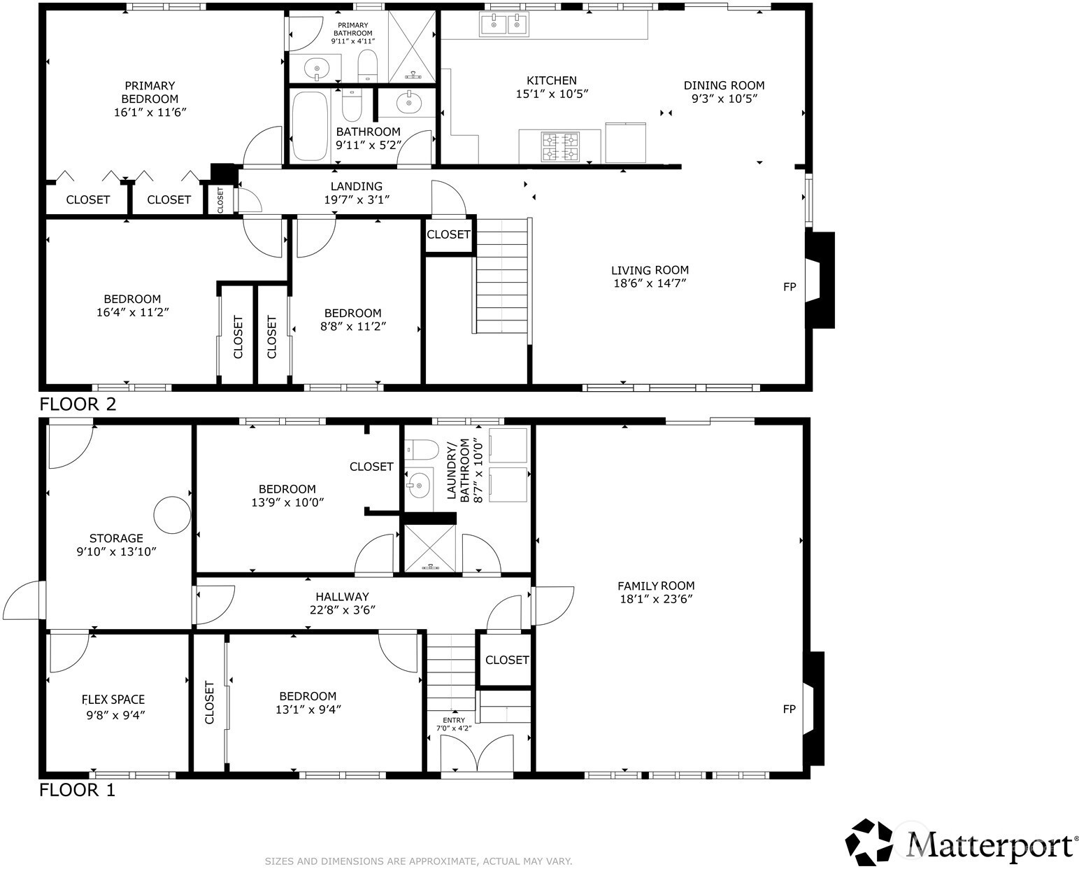
Unique and Amazing describes this home and property. Almost 2600 sq ft, on a huge lot just shy of an acre, It is one of, or even is, the largest lot in the serene community of Wingate, Located in the Picnic Point area of Edmonds. Beautiful flat sunny lot that is wooded along its border for peace and privacy. This home features five large bedrooms, 3 baths and two spacious Family rooms.The primary has a beautiful, updated ensuite bathroom with auto temperature showerhead, and heated towel bar. The kitchen offers a wonderful space connecting to the dining area and generously sized living room with vaulted ceiling. The fireplace is plumbed for your gas insert. Main level has new carpeting, lighting, and refreshed paint throughout the home. Enjoy the large lower rec-room with patio just outside the slider. There are two more bedrooms, laundry room with 3/4 bath, a convenient flex space, and huge utility room also on the lower level. It is ready for a Generator and has commercial style gas torches along the back walkway. The property has an enormous heated 5 car garage/shop (appr.1290 sq ft) with loft, epoxy floor, built in pressure car wash, stereo speakers, bathroom, tankless water heater, outside hot and cold faucets, air compressor system, and built in vacuum system. Plus, two storage sheds w/epoxy floors, metal roofs, fans, and heat. Plenty of parking for your RV, Cars and toys. This home offers convenient access to nearby amenities, major travel routes and Mukilteo schools.
Listing Provided Courtesy of Candy Hulse, Keller Williams Realty Bothell
General Information
NWM2510267
Single Family Residence
0
DOM
5
0.95 acres
3
2586
1973
Snohomish
Residential
Single Family Residence
Listing Provided Courtesy of Candy Hulse, Keller Williams Realty Bothell
Krishna Realty data last checked: Apr 23, 2026 11:59 | Listing last modified Apr 23, 2026 16:53,
Source:
Unique and Amazing describes this home and property. Almost 2600 sq ft, on a huge lot just shy of an acre, It is one of, or even is, the largest lot in the serene community of Wingate, Located in the Picnic Point area of Edmonds. Beautiful flat sunny lot that is wooded along its border for peace and privacy. This home features five large bedrooms, 3 baths and two spacious Family rooms.The primary has a beautiful, updated ensuite bathroom with auto temperature showerhead, and heated towel bar. The kitchen offers a wonderful space connecting to the dining area and generously sized living room with vaulted ceiling. The fireplace is plumbed for your gas insert. Main level has new carpeting, lighting, and refreshed paint throughout the home. Enjoy the large lower rec-room with patio just outside the slider. There are two more bedrooms, laundry room with 3/4 bath, a convenient flex space, and huge utility room also on the lower level. It is ready for a Generator and has commercial style gas torches along the back walkway. The property has an enormous heated 5 car garage/shop (appr.1290 sq ft) with loft, epoxy floor, built in pressure car wash, stereo speakers, bathroom, tankless water heater, outside hot and cold faucets, air compressor system, and built in vacuum system. Plus, two storage sheds w/epoxy floors, metal roofs, fans, and heat. Plenty of parking for your RV, Cars and toys. This home offers convenient access to nearby amenities, major travel routes and Mukilteo schools.