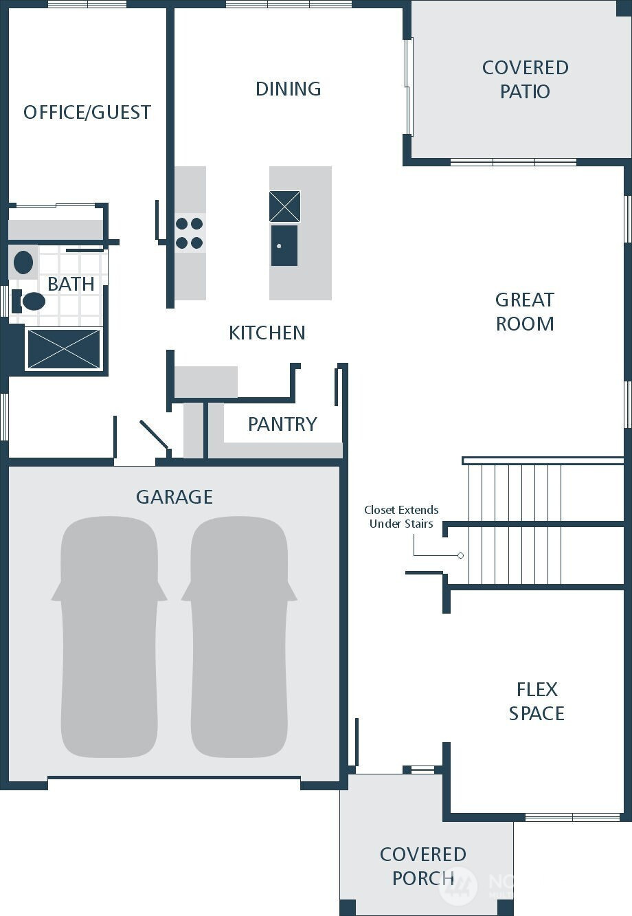
Welcome to the Savannah plan on Lot 49 in the beautiful new Williams Pointe community, a thoughtfully designed 3,059 sq ft home that blends modern comfort with timeless style. This spacious layout features five bedrooms and 2.75 bathrooms, including a convenient main-floor bedroom paired with a three-quarter bath—ideal for guests or multigenerational living. The main level also offers a dedicated flex space, perfect for a home office, playroom, or hobby area, along with an open-concept design showcasing gorgeous laminate hardwood flooring throughout the kitchen, dining area, and great room. White painted millwork and classic five-panel doors add a clean, elegant finish. The kitchen shines with quartz countertops, stainless steel appliances, and smart functionality ideal for everyday living and entertaining. Upstairs, enjoy a versatile loft area that provides additional living space for relaxation or media use. The luxurious primary suite serves as a private retreat with a spa-inspired ensuite featuring a relaxing lounge tub. Built with energy efficiency in mind, this new construction home includes an efficient heat pump, modern systems, and the confidence of a new home warranty. Located in Marysville , this home also includes a $15,000 builder credit—making this an exceptional opportunity to own a brand-new, energy-efficient home in a growing community.
Listing Provided Courtesy of Ebrima Wadda, Windermere Real Estate/M2, LLC
General Information
NWM2495619
Single Family Residence
1
DOM
5
7135.13 SqFt
3
3059
2026
Snohomish
Sunnyside Elem
Residential
Single Family Residence
Listing Provided Courtesy of Ebrima Wadda, Windermere Real Estate/M2, LLC
Krishna Realty data last checked: Mar 21, 2026 00:10 | Listing last modified Mar 20, 2026 22:43,
Source:
Download our Mobile app
Residence Information
3059
1/Gas
5
2
0
3
Composition
12 - 2 Story
2026
None
None
Poured Concrete
Features and Utilities
Dishwasher, Microwave, Stove(s)/Range(s)
Bath Off Primary, Fireplace, High Tech Cabling, Loft, Walk-In Closet(s)
Wood Products
Public
Sewer Connected
Financial
0
Cash, Conventional, FHA, VA Loan
03-20-2026
Comparable Information
1
1
Cash, Conventional, FHA, VA Loan
$799,990
$799,990
Mar 20, 2026 22:43
Schools
Elementary : Sunnyside ElemN/ARatings
Map
Listing courtesy of Windermere Real Estate/M2, LLC.
Welcome to the Savannah plan on Lot 49 in the beautiful new Williams Pointe community, a thoughtfully designed 3,059 sq ft home that blends modern comfort with timeless style. This spacious layout features five bedrooms and 2.75 bathrooms, including a convenient main-floor bedroom paired with a three-quarter bath—ideal for guests or multigenerational living. The main level also offers a dedicated flex space, perfect for a home office, playroom, or hobby area, along with an open-concept design showcasing gorgeous laminate hardwood flooring throughout the kitchen, dining area, and great room. White painted millwork and classic five-panel doors add a clean, elegant finish. The kitchen shines with quartz countertops, stainless steel appliances, and smart functionality ideal for everyday living and entertaining. Upstairs, enjoy a versatile loft area that provides additional living space for relaxation or media use. The luxurious primary suite serves as a private retreat with a spa-inspired ensuite featuring a relaxing lounge tub. Built with energy efficiency in mind, this new construction home includes an efficient heat pump, modern systems, and the confidence of a new home warranty. Located in Marysville , this home also includes a $15,000 builder credit—making this an exceptional opportunity to own a brand-new, energy-efficient home in a growing community.