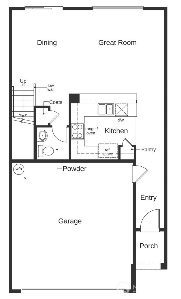
Welcome to 87th Townhomes by KB Home! This exceptional townhome community features 187 thoughtfully designed two-story homes with multiple community play areas, parks, and outstanding walkability. Ideally situated near daily conveniences and within the highly regarded Lake Stevens School District, this location offers both comfort and convenience. Plan 1692 presents a bright, open-concept great room and kitchen on the main level, perfect for gathering and entertaining, with three bedrooms upstairs, including a generous primary suite complete with a walk-in closet. Notable highlights include a 2-car side by side garage, attractive exterior masonry accents, fenced yard options (per plan), professional landscaping with irrigation, central heating and cooling, and included community and front-yard maintenance for simplified living. Built with trusted brands such as Kohler, Moen, and Samsung, each home incorporates LED lighting, high-efficiency systems, and water-saving fixtures designed to enhance everyday comfort while promoting energy-conscious living. ENERGY STAR certified and protected by a 1/2/10 warranty for added peace of mind. Visit our brand-new model home and see firsthand what quality, affordable living is all about.
Listing Provided Courtesy of Doug Gordon, KB Home Sales
General Information
NWM2475448
Condominium
21
DOM
3
2042.96 SqFt
1.5
1692
2026
Snohomish
Stevens Creek E
Cavelero
Lake Stevens Sn
Residential
Condominium
Listing Provided Courtesy of Doug Gordon, KB Home Sales
Krishna Realty data last checked: Feb 21, 2026 20:39 | Listing last modified Feb 21, 2026 22:21,
Source:
Welcome to 87th Townhomes by KB Home! This exceptional townhome community features 187 thoughtfully designed two-story homes with multiple community play areas, parks, and outstanding walkability. Ideally situated near daily conveniences and within the highly regarded Lake Stevens School District, this location offers both comfort and convenience. Plan 1692 presents a bright, open-concept great room and kitchen on the main level, perfect for gathering and entertaining, with three bedrooms upstairs, including a generous primary suite complete with a walk-in closet. Notable highlights include a 2-car side by side garage, attractive exterior masonry accents, fenced yard options (per plan), professional landscaping with irrigation, central heating and cooling, and included community and front-yard maintenance for simplified living. Built with trusted brands such as Kohler, Moen, and Samsung, each home incorporates LED lighting, high-efficiency systems, and water-saving fixtures designed to enhance everyday comfort while promoting energy-conscious living. ENERGY STAR certified and protected by a 1/2/10 warranty for added peace of mind. Visit our brand-new model home and see firsthand what quality, affordable living is all about.