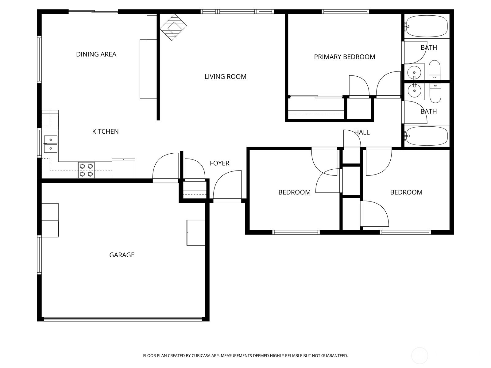
Situated on nearly a 1/4 acre lot, this 3-bedroom, 2-bathroom rambler provides space & functionality throughout. The large front yard welcomes you to the home towards a covered front entry where the living room w/wood stove flows seamlessly into the spacious kitchen, which offers ample storage & adjacent dining area. Sliding doors lead to a fully-fenced backyard w/generous outdoor space, room for garden beds, patio for entertaining, extra parking for a boat or RV, & 12ft barn door gates w/full pass through. The other side of the home boasts a bedroom wing including a primary w/ full en suite. Ideally located near several schools, downtown Lake Stevens, the Centennial Trail, & everyday amenities, this home offers both convenience & comfort.
Listing Provided Courtesy of Tyler Gardner, Windermere Real Estate/M2, LLC
General Information
NWM2468270
Single Family Residence
1
DOM
3
9583.2 SqFt
2
1118
1985
Snohomish
Buyer To Verify
Buyer To Verify
Buyer To Verify
Residential
Single Family Residence
Listing Provided Courtesy of Tyler Gardner, Windermere Real Estate/M2, LLC
Krishna Realty data last checked: Jan 15, 2026 00:36 | Listing last modified Jan 14, 2026 22:56,
Source:
Situated on nearly a 1/4 acre lot, this 3-bedroom, 2-bathroom rambler provides space & functionality throughout. The large front yard welcomes you to the home towards a covered front entry where the living room w/wood stove flows seamlessly into the spacious kitchen, which offers ample storage & adjacent dining area. Sliding doors lead to a fully-fenced backyard w/generous outdoor space, room for garden beds, patio for entertaining, extra parking for a boat or RV, & 12ft barn door gates w/full pass through. The other side of the home boasts a bedroom wing including a primary w/ full en suite. Ideally located near several schools, downtown Lake Stevens, the Centennial Trail, & everyday amenities, this home offers both convenience & comfort.