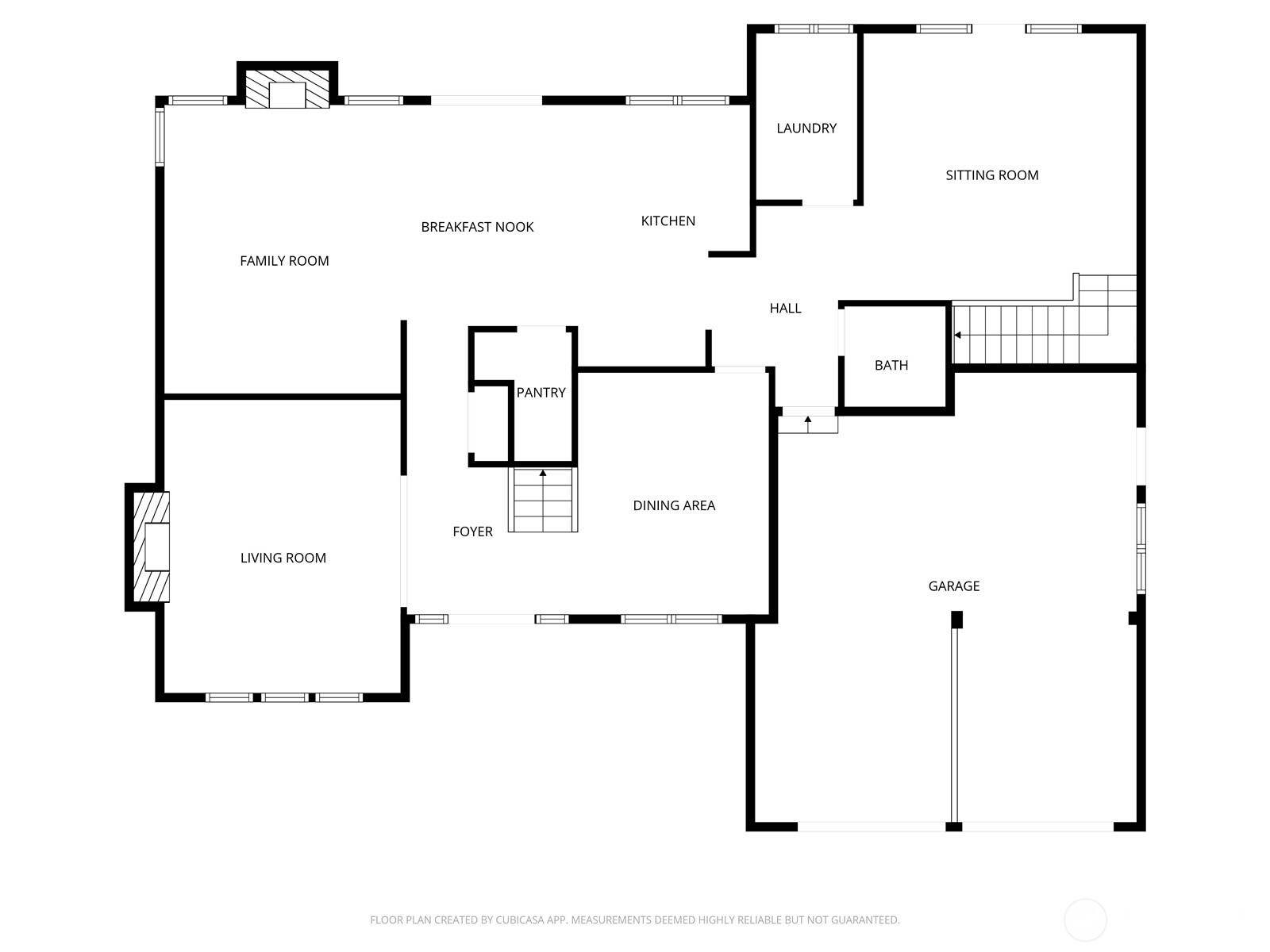
Classic Murray Franklyn two-story in the sought-after Crest at Canyon Park. Well-designed floor plan offers a comfortable flow between formal and informal spaces, ideal for everyday living and entertaining. Main level features spacious living, dining, family and rec rooms, while a generous office on the second level provides flexible work-from-home or bonus space. Kitchen includes Silestone slab counters, stainless appliances, and an island perfect for gatherings. Gas line available for a gas cooktop—the home originally had gas and was converted to electric based on the seller’s preference, making it easy to convert back if desired. Recent improvements include new hardwood floors on the main level, new carpet, refreshed interior paint, upgraded electrical panel, crawlspace insulation and vapor barrier, and newer appliances. New roof and skylights in 2023. HVAC serviced March 2025. Enjoy a friendly, walkable neighborhood close to parks, trails, downtown Bothell, University of Washington Bothell, Canyon Park shopping, Park & Ride, and convenient commuter routes to the Eastside and Seattle.
Listing Provided Courtesy of Ashima Diwakar, eXp Realty
General Information
NWM2474729
Single Family Residence
28
DOM
4
9147.6 SqFt
2.5
3290
1989
Snohomish
Maywood Hills E
Canyon Park Mid
Bothell Hs
Residential
Single Family Residence
Listing Provided Courtesy of Ashima Diwakar, eXp Realty
Krishna Realty data last checked: Mar 16, 2026 09:43 | Listing last modified Mar 11, 2026 18:50,
Source:
Classic Murray Franklyn two-story in the sought-after Crest at Canyon Park. Well-designed floor plan offers a comfortable flow between formal and informal spaces, ideal for everyday living and entertaining. Main level features spacious living, dining, family and rec rooms, while a generous office on the second level provides flexible work-from-home or bonus space. Kitchen includes Silestone slab counters, stainless appliances, and an island perfect for gatherings. Gas line available for a gas cooktop—the home originally had gas and was converted to electric based on the seller’s preference, making it easy to convert back if desired. Recent improvements include new hardwood floors on the main level, new carpet, refreshed interior paint, upgraded electrical panel, crawlspace insulation and vapor barrier, and newer appliances. New roof and skylights in 2023. HVAC serviced March 2025. Enjoy a friendly, walkable neighborhood close to parks, trails, downtown Bothell, University of Washington Bothell, Canyon Park shopping, Park & Ride, and convenient commuter routes to the Eastside and Seattle.