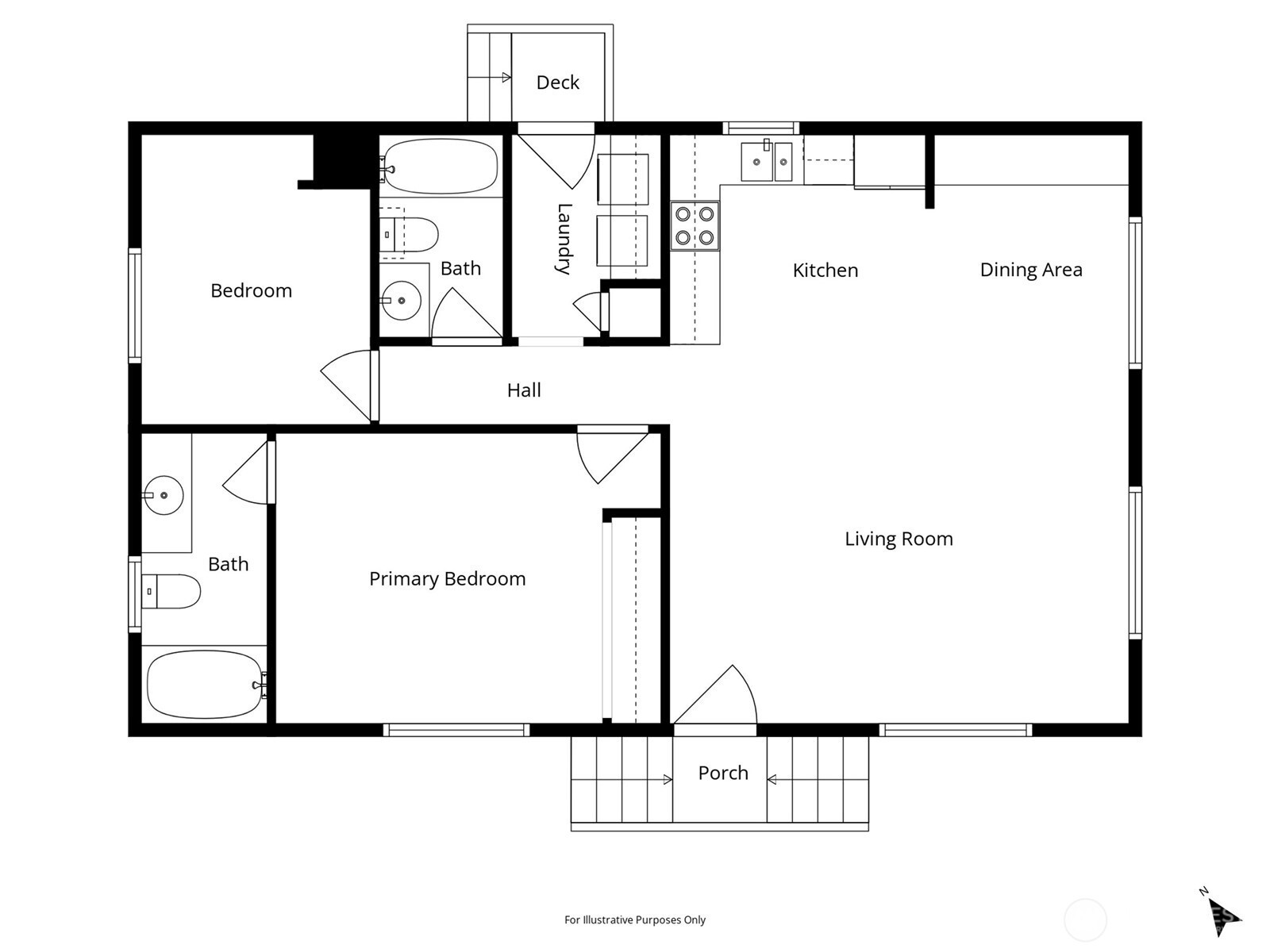
Welcome home to Green Acres, a highly desirable 55+ community. This charming 2 bed, 2 bath manufactured home offers 960 sq. ft. of comfortable living with vaulted ceilings & an open layout filled with natural light. The kitchen features generous cabinet space, island & built-in hutch in the dining area. Updated baths, newer carpet, and a heat pump ensure year-round comfort. Enjoy a large, private fenced backyard with covered patio, garden space, and multiple sheds for storage. Double carport plus guest parking nearby. Community amenities include clubhouse, walking trails, lakes, dog park, and daily activities. Convenient Canyon Park location with easy access to I-405, shopping, dining, and medical. A wonderful home in a welcoming community!
Listing Provided Courtesy of Jamie Reece, Keller Williams North Seattle
General Information
NWM2418401
Manufactured Home
3
DOM
2
1228.39 SqFt
2
960
1993
Snohomish
Shelton View El
Canyon Park Mid
Bothell Hs
Residential
Manufactured Home
Listing Provided Courtesy of Jamie Reece, Keller Williams North Seattle
Krishna Realty data last checked: Nov 27, 2025 01:38 | Listing last modified Nov 06, 2025 19:51,
Source:
Welcome home to Green Acres, a highly desirable 55+ community. This charming 2 bed, 2 bath manufactured home offers 960 sq. ft. of comfortable living with vaulted ceilings & an open layout filled with natural light. The kitchen features generous cabinet space, island & built-in hutch in the dining area. Updated baths, newer carpet, and a heat pump ensure year-round comfort. Enjoy a large, private fenced backyard with covered patio, garden space, and multiple sheds for storage. Double carport plus guest parking nearby. Community amenities include clubhouse, walking trails, lakes, dog park, and daily activities. Convenient Canyon Park location with easy access to I-405, shopping, dining, and medical. A wonderful home in a welcoming community!