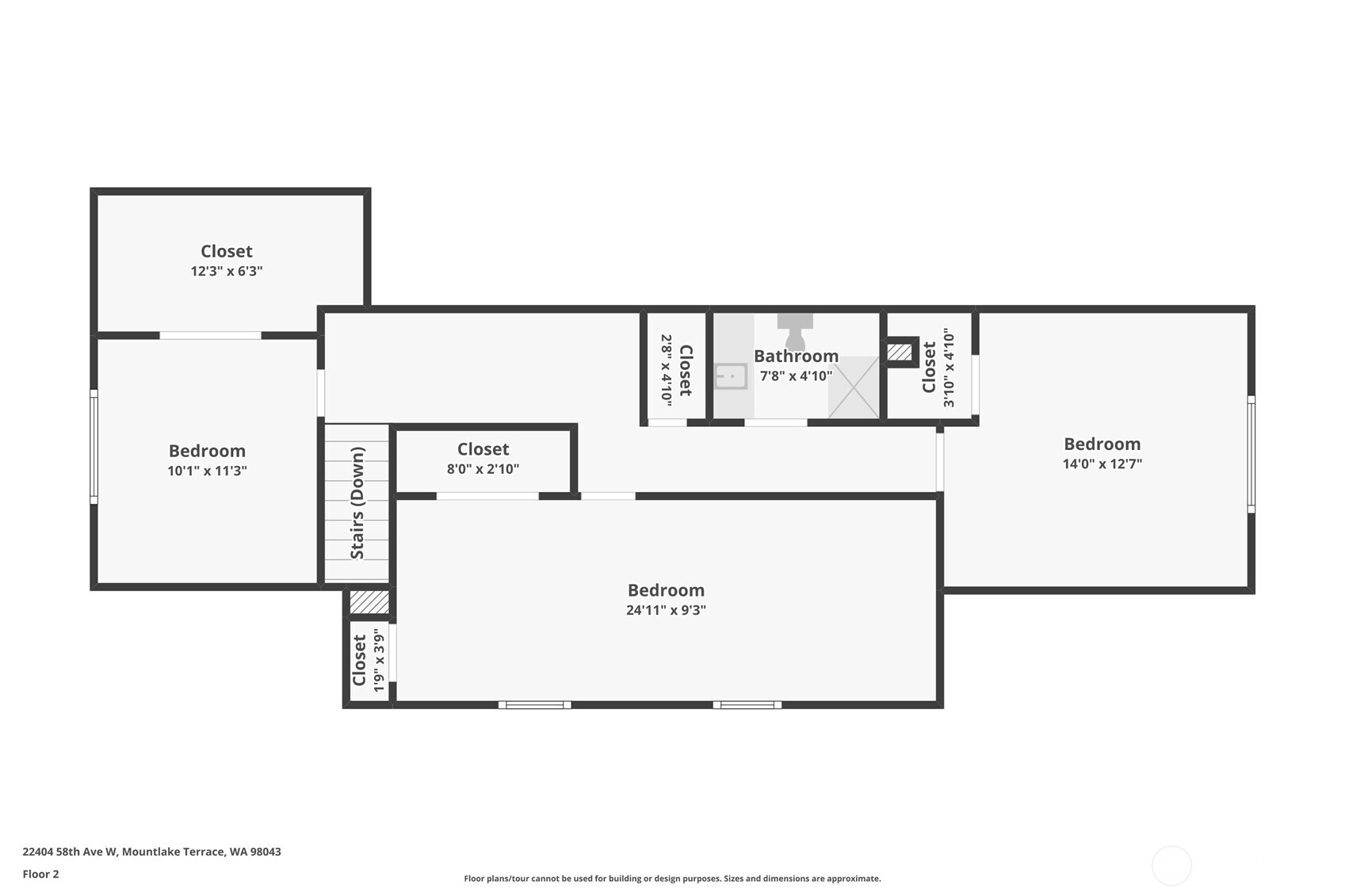
Move-in ready 4 bed, 2 bath 2 story charmer! New flooring, new roof/gutters (2024), forced air gas and vinyl double paned windows. Main level includes a spacious living room with large windows, bedroom, full bath and bonus room with wood burning fireplace. On the upper level, 3 comfortable bedrooms and 3/4 bath. A one car garage with automatic opener, workbench and storage. West facing backyard is huge, sunlit and fully fenced. Plus a large patio for soon-to-be-summer gatherings. It's a straight shot, less than one mile, to MLT light rail station or a touch further to Lynnwood station. New roof in 2025. Great neighborhood with easy access to parks, schools, freeway and extensive shopping.
Listing Provided Courtesy of Doug Holman, Real Property Associates
General Information
NWM2489916
Single Family Residence
21
DOM
4
7405.2 SqFt
2
1835
1962
Snohomish
Terrace Park Sc
Brier Terrace M
Mountlake Terra
Residential
Single Family Residence
Listing Provided Courtesy of Doug Holman, Real Property Associates
Krishna Realty data last checked: Apr 03, 2026 05:06 | Listing last modified Apr 02, 2026 23:49,
Source:
Move-in ready 4 bed, 2 bath 2 story charmer! New flooring, new roof/gutters (2024), forced air gas and vinyl double paned windows. Main level includes a spacious living room with large windows, bedroom, full bath and bonus room with wood burning fireplace. On the upper level, 3 comfortable bedrooms and 3/4 bath. A one car garage with automatic opener, workbench and storage. West facing backyard is huge, sunlit and fully fenced. Plus a large patio for soon-to-be-summer gatherings. It's a straight shot, less than one mile, to MLT light rail station or a touch further to Lynnwood station. New roof in 2025. Great neighborhood with easy access to parks, schools, freeway and extensive shopping.