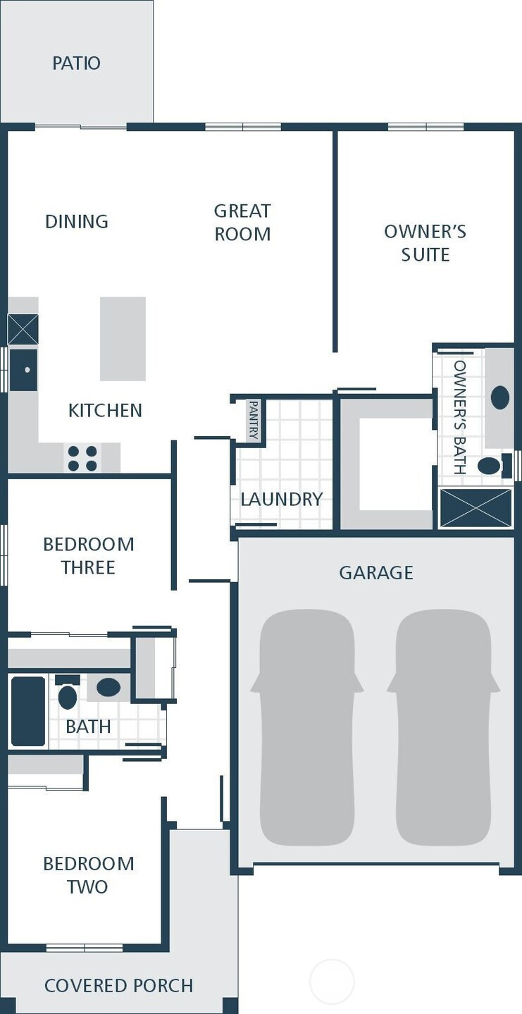
Introducing The Holland plan lot 61 at Sather Farms in Marysville, WA—a thoughtfully designed 1,302 sq ft new construction home offering comfort, style, and efficiency. This 3 bedroom, 1.75 bathroom plan features an open-concept layout that seamlessly connects the great room, dining area, and kitchen, creating an inviting space for everyday living and entertaining. Durable laminate vinyl plank flooring flows throughout the great room, dining room, and kitchen, providing a modern look with easy upkeep. The kitchen showcases quartz countertops with a matching backsplash, stainless steel appliances, and ample cabinetry accented by white painted millwork and doors throughout the home. Clean lines and quality finishes enhance the bright, contemporary feel in every room. The primary suite is thoughtfully positioned on the opposite side of the home from the two additional bedrooms, offering added privacy and separation. The primary suite includes a private bath and generous closet space, while the secondary bedrooms provide flexibility for a home office, guests, or hobbies. A ductless mini split system provides efficient heating and cooling for year round comfort. A spacious 2 car garage adds convenience and extra storage. Designed with low maintenance living in mind, this new home allows more time to enjoy your surroundings. Located in the desirable Sather Farms community, The Holland blends thoughtful design, modern finishes, and everyday functionality. Enjoy the benefits of NEW!
Listing Provided Courtesy of Ebrima Wadda, Windermere Real Estate/M2, LLC
General Information
NWM2479794
Single Family Residence
32
DOM
3
4530.24 SqFt
2
1302
2026
Snohomish
Buyer To Verify
Buyer To Verify
Buyer To Verify
Residential
Single Family Residence
Listing Provided Courtesy of Ebrima Wadda, Windermere Real Estate/M2, LLC
Krishna Realty data last checked: Mar 16, 2026 19:53 | Listing last modified Mar 16, 2026 18:58,
Source:
Open House
Mon, Mar 16th, 1PM to 7PM
Sat, Mar 21st, 10AM to 4PM
Fri, Mar 20th, 10AM to 3PM
Thu, Mar 19th, 11AM to 5PM
Wed, Mar 18th, 11AM to 4PM
Tue, Mar 17th, 11AM to 5PM
Mon, Mar 23rd, 1PM to 7PM
Download our Mobile app
Residence Information
1302
3
1
0
2
Composition
10 - 1 Story
2026
Features and Utilities
Dishwasher, Microwave, Stove(s)/Range(s)
Cement/Concrete
Public
Sewer Connected
Financial
0
Cash, Conventional, FHA, VA Loan
02-12-2026
Comparable Information
32
32
Cash, Conventional, FHA, VA Loan
$684,990
$684,990
Mar 16, 2026 18:58
Schools
Elementary : Buyer To VerifyN/ARatings Middle : Buyer To Verify N/ARatings High : Buyer To VerifyN/ARatings
Map
Listing courtesy of Windermere Real Estate/M2, LLC.
Introducing The Holland plan lot 61 at Sather Farms in Marysville, WA—a thoughtfully designed 1,302 sq ft new construction home offering comfort, style, and efficiency. This 3 bedroom, 1.75 bathroom plan features an open-concept layout that seamlessly connects the great room, dining area, and kitchen, creating an inviting space for everyday living and entertaining. Durable laminate vinyl plank flooring flows throughout the great room, dining room, and kitchen, providing a modern look with easy upkeep. The kitchen showcases quartz countertops with a matching backsplash, stainless steel appliances, and ample cabinetry accented by white painted millwork and doors throughout the home. Clean lines and quality finishes enhance the bright, contemporary feel in every room. The primary suite is thoughtfully positioned on the opposite side of the home from the two additional bedrooms, offering added privacy and separation. The primary suite includes a private bath and generous closet space, while the secondary bedrooms provide flexibility for a home office, guests, or hobbies. A ductless mini split system provides efficient heating and cooling for year round comfort. A spacious 2 car garage adds convenience and extra storage. Designed with low maintenance living in mind, this new home allows more time to enjoy your surroundings. Located in the desirable Sather Farms community, The Holland blends thoughtful design, modern finishes, and everyday functionality. Enjoy the benefits of NEW!