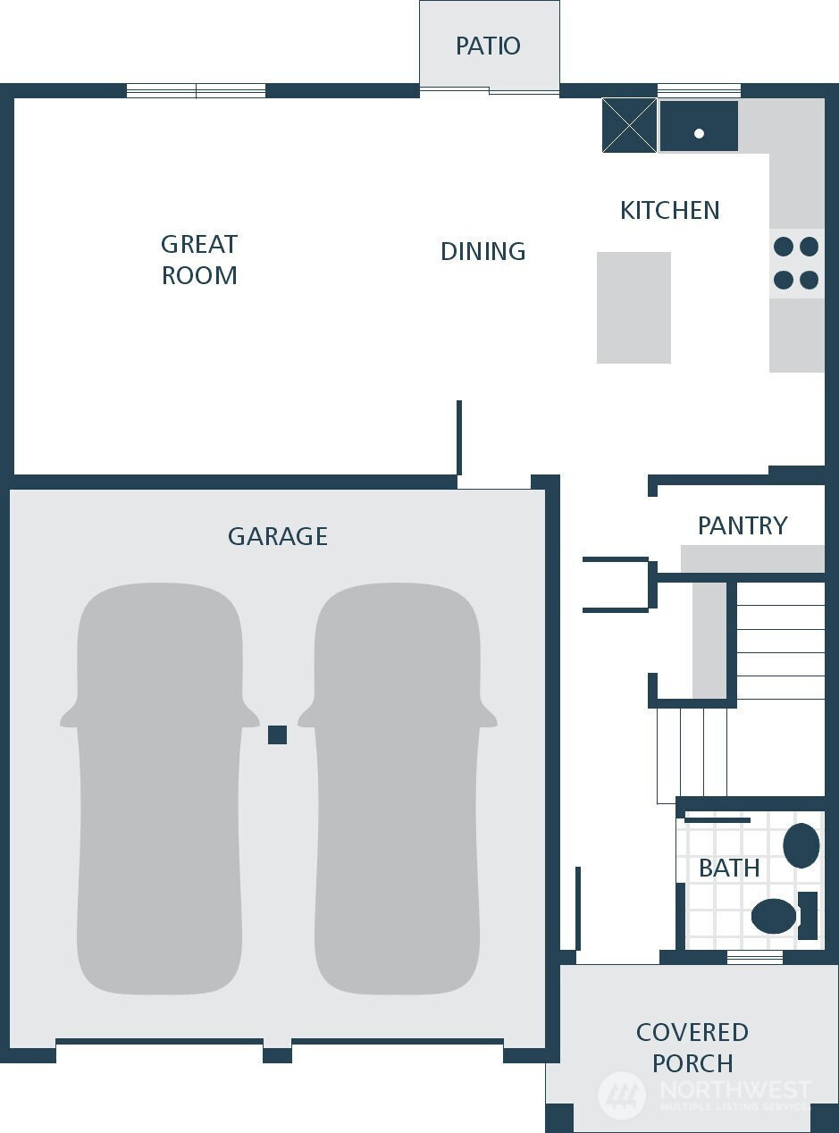
The Tyler plan on Lot 70 at Sather Farms in Marysville, WA offers 1,499 sq. ft. of thoughtfully designed living space, featuring 4 bedrooms and 2.25 baths—perfectly suited for everyday living, hosting guests, or a dedicated home office. This beautifully crafted new construction home seamlessly blends smart design with modern finishes and inviting style. Durable laminate vinyl plank flooring flows throughout the great room, dining area, and kitchen, delivering a sleek, contemporary look that is both stylish and easy to maintain. The kitchen is a standout, boasting quartz countertops with a matching backsplash, stainless steel appliances, and abundant cabinetry, all accented by crisp white painted millwork and doors for a bright, cohesive aesthetic. Clean lines, quality craftsmanship, and an open-concept layout create an airy, welcoming atmosphere ideal for entertaining and daily life. A ductless mini-split system ensures efficient heating and cooling year-round, while the spacious two-car garage provides convenience and extra storage. Designed with low-maintenance living in mind, this home includes energy-efficient features, modern safety upgrades, and the peace of mind that comes with a builder’s warranty. Located within the friendly, inviting community of Sather Farms, this home offers all the advantages of new construction with thoughtfully planned spaces, durable finishes, and a stylish, functional layout that meets the needs of modern living.
Listing Provided Courtesy of Ebrima Wadda, Windermere Real Estate/M2, LLC
General Information
NWM2479781
Single Family Residence
32
DOM
4
4059.79 SqFt
2.5
1499
2026
Snohomish
Buyer To Verify
Buyer To Verify
Buyer To Verify
Residential
Single Family Residence
Listing Provided Courtesy of Ebrima Wadda, Windermere Real Estate/M2, LLC
Krishna Realty data last checked: Mar 16, 2026 15:42 | Listing last modified Mar 16, 2026 16:21,
Source:
Open House
Mon, Mar 16th, 1PM to 7PM
Fri, Mar 20th, 11AM to 5PM
Sat, Mar 21st, 10AM to 4PM
Thu, Mar 19th, 11AM to 5PM
Wed, Mar 18th, 11AM to 5PM
Tue, Mar 17th, 11AM to 5PM
Mon, Mar 23rd, 1PM to 7PM
Download our Mobile app
Residence Information
1499
4
2
1
2.5
Composition
12 - 2 Story
2026
Features and Utilities
Dishwasher, Microwave, Stove(s)/Range(s)
Cement/Concrete
Public
Sewer Connected
Financial
0
Cash, Conventional, FHA, VA Loan
02-12-2026
Comparable Information
32
32
Cash, Conventional, FHA, VA Loan
$639,990
$639,990
Mar 16, 2026 16:21
Schools
Elementary : Buyer To VerifyN/ARatings Middle : Buyer To Verify N/ARatings High : Buyer To VerifyN/ARatings
Map
Listing courtesy of Windermere Real Estate/M2, LLC.
The Tyler plan on Lot 70 at Sather Farms in Marysville, WA offers 1,499 sq. ft. of thoughtfully designed living space, featuring 4 bedrooms and 2.25 baths—perfectly suited for everyday living, hosting guests, or a dedicated home office. This beautifully crafted new construction home seamlessly blends smart design with modern finishes and inviting style. Durable laminate vinyl plank flooring flows throughout the great room, dining area, and kitchen, delivering a sleek, contemporary look that is both stylish and easy to maintain. The kitchen is a standout, boasting quartz countertops with a matching backsplash, stainless steel appliances, and abundant cabinetry, all accented by crisp white painted millwork and doors for a bright, cohesive aesthetic. Clean lines, quality craftsmanship, and an open-concept layout create an airy, welcoming atmosphere ideal for entertaining and daily life. A ductless mini-split system ensures efficient heating and cooling year-round, while the spacious two-car garage provides convenience and extra storage. Designed with low-maintenance living in mind, this home includes energy-efficient features, modern safety upgrades, and the peace of mind that comes with a builder’s warranty. Located within the friendly, inviting community of Sather Farms, this home offers all the advantages of new construction with thoughtfully planned spaces, durable finishes, and a stylish, functional layout that meets the needs of modern living.