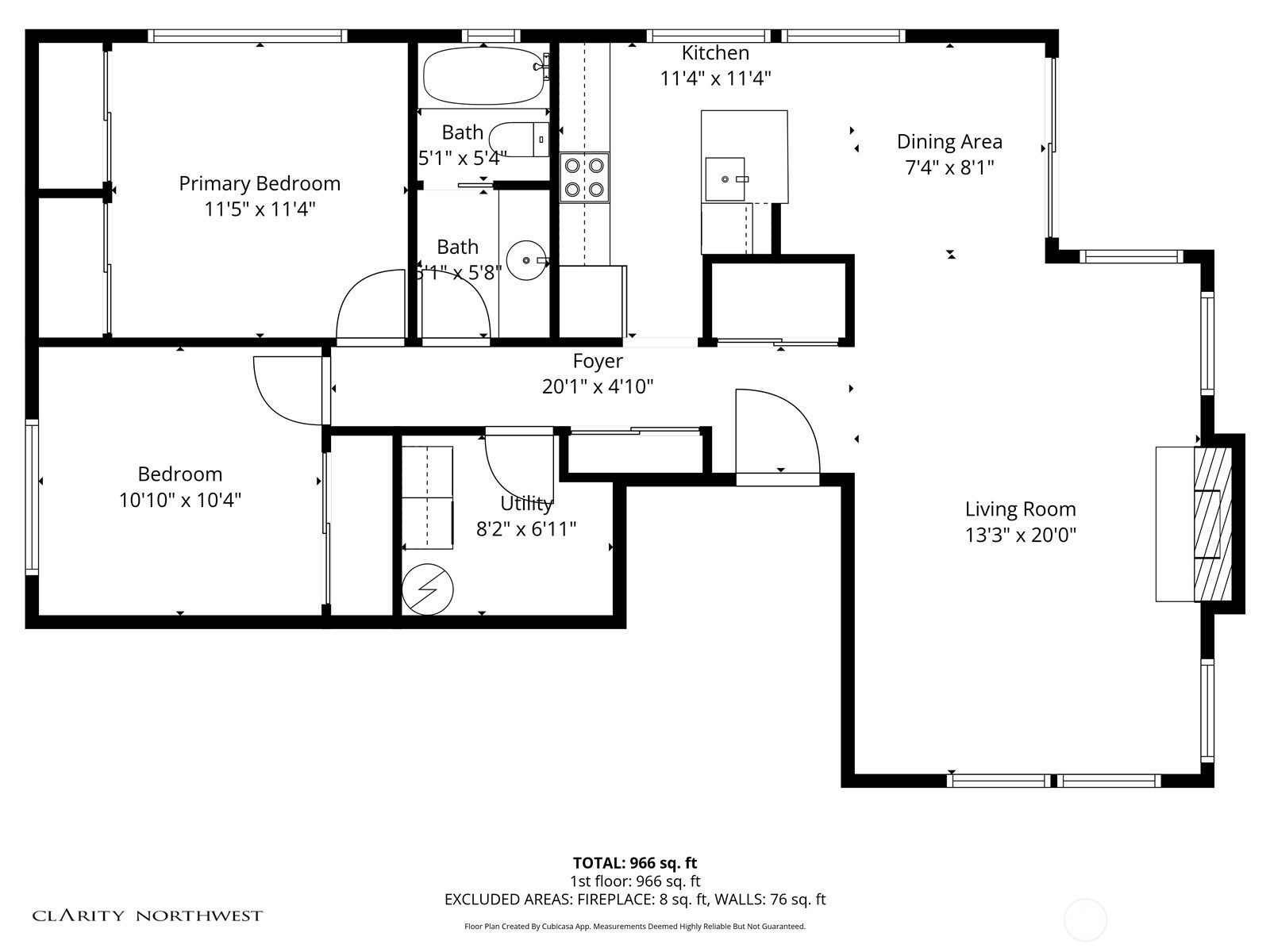
Tucked away on a quiet cul-de-sac just minutes from the Mountlake Terrace light rail station, this thoughtfully updated duplex blends comfort, efficiency, and long-term upside. A brand-new roof installed last month offers peace of mind for years to come. Both units have been renovated with new carpet, new appliances, and refreshed kitchens featuring quartz countertops and modern finishes. In-unit washers and dryers provide everyday convenience, while mini-splits with A/C in the living area and bedrooms of the upper unit deliver efficient year-round comfort. Storage is exceptional, with a fully finished attic offering flexible space for seasonal items, hobbies, or additional storage, plus an attached single-car garage for added functionality. The upstairs unit is leased through October 31, 2026, providing stable income, while the downstairs tenant moves out on April 30, 2026, offering flexibility for future plans. Tenants pay all utilities, helping keep operating expenses low. Ideal for investors or owner-occupants, the property offers updated systems, strong rental appeal, and unbeatable proximity to transit, shopping, and major commuter routes, all within a peaceful residential setting. A rare opportunity in one of Mountlake Terrace’s fastest-growing pockets.
Listing Provided Courtesy of Nic Chambers, COMPASS
General Information
NWM2488037
Multi Family
21
DOM
0.26 acres
2417
1979
Multi-F
Snohomish
Residential Incom
Multi Family
Listing Provided Courtesy of Nic Chambers, COMPASS
Krishna Realty data last checked: Mar 28, 2026 00:53 | Listing last modified Mar 26, 2026 19:52,
Source:
Tucked away on a quiet cul-de-sac just minutes from the Mountlake Terrace light rail station, this thoughtfully updated duplex blends comfort, efficiency, and long-term upside. A brand-new roof installed last month offers peace of mind for years to come. Both units have been renovated with new carpet, new appliances, and refreshed kitchens featuring quartz countertops and modern finishes. In-unit washers and dryers provide everyday convenience, while mini-splits with A/C in the living area and bedrooms of the upper unit deliver efficient year-round comfort. Storage is exceptional, with a fully finished attic offering flexible space for seasonal items, hobbies, or additional storage, plus an attached single-car garage for added functionality. The upstairs unit is leased through October 31, 2026, providing stable income, while the downstairs tenant moves out on April 30, 2026, offering flexibility for future plans. Tenants pay all utilities, helping keep operating expenses low. Ideal for investors or owner-occupants, the property offers updated systems, strong rental appeal, and unbeatable proximity to transit, shopping, and major commuter routes, all within a peaceful residential setting. A rare opportunity in one of Mountlake Terrace’s fastest-growing pockets.