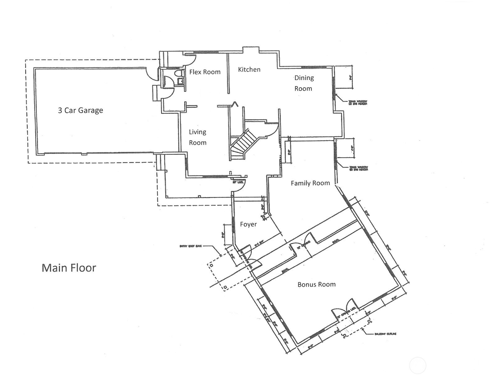
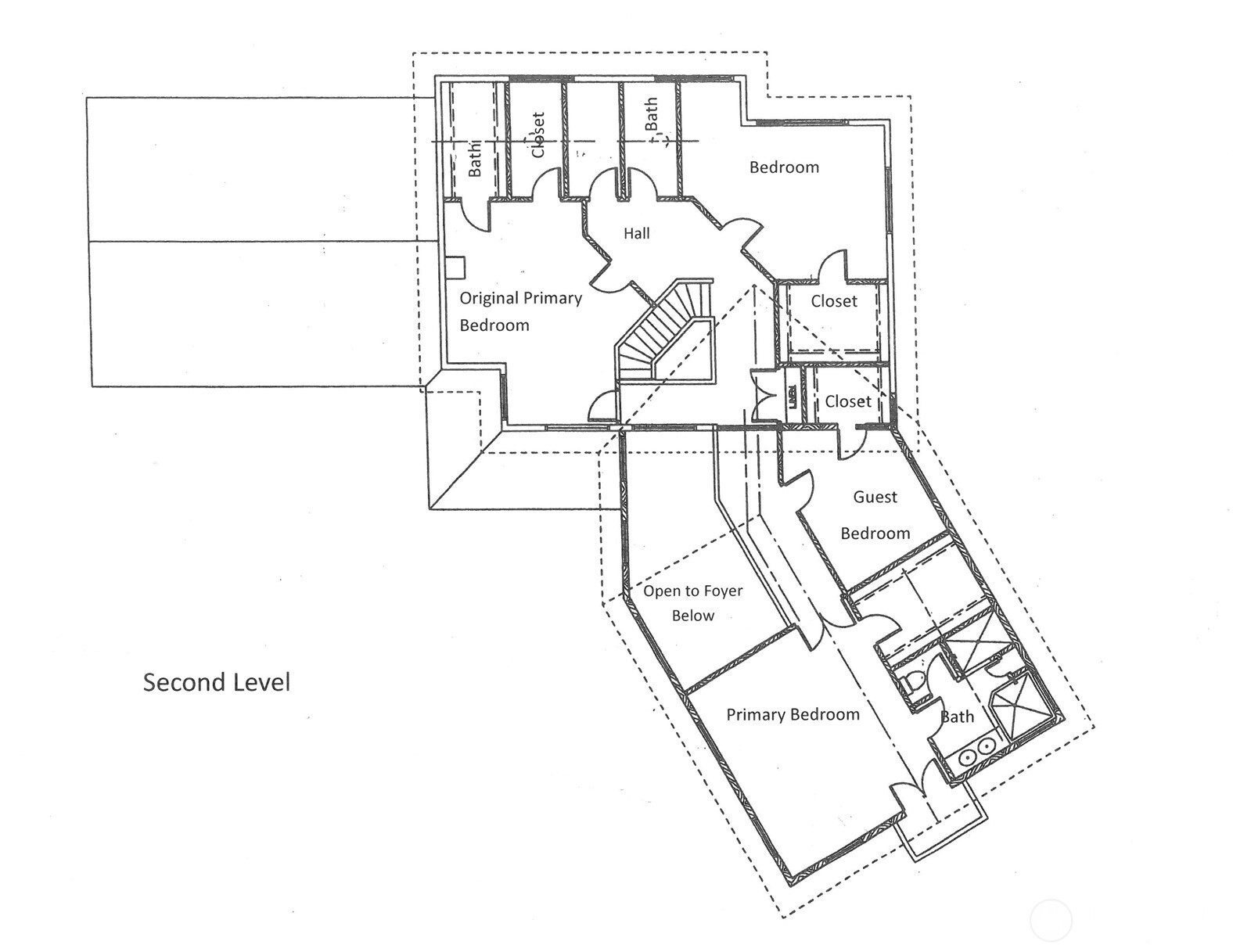
Welcome to Your Private Snohomish/Clearview Retreat! Perfect balance of seclusion & convenience. Ideally located near amenities yet offering a peaceful, private lifestyle. 4,532 sq ft home sits on 4.62 flat acres. Home remodeled/expanded in 2018. Step into the stunning 2-story vaulted entry & discover a versatile layout. Family and dining room flow seamlessly into the kitchen. There is a private living room & separate flex room just off the kitchen (or could be a mudroom or pantry for extra storage & a sink). Spacious main floor bonus room with custom cabinetry, great for entertaining or a home office. Generous sized primary suite in a private wing of the home. Walk-in primary closet & a deck. 5-piece primary bathroom has a 2nd water heater, heated floor, jetted tub with a heater and granite countertop. All 4 bedrooms have walk-in closets. 1 of the extra bedrooms has its own on-suite bathroom. All bathrooms have granite countertops. All easy-care hard surface flooring throughout the home. Equestrian enthusiasts will appreciate a 3-stall stable & paddock, ready for your horses or hobby farm dreams or convert to a shop. Roof, furnace & heat pump new in 2018. Quick access to Hwy 9 & 522. Great schools!
Listing Provided Courtesy of Darren Munson, Windermere R.E. Mill Creek
General Information
NWM2469781
Single Family Residence
1
DOM
4
4.62 acres
3.5
4532
1994
Snohomish
Cathcart Elem
Valley View Mid
Glacier Peak
Residential
Single Family Residence
Listing Provided Courtesy of Darren Munson, Windermere R.E. Mill Creek
Krishna Realty data last checked: Feb 22, 2026 03:37 | Listing last modified Jan 22, 2026 13:01,
Source:
Download our Mobile app
Residence Information
4532
4
3
1
3.5
Composition
12 - 2 Story
1994
None
None
Poured Concrete
Features and Utilities
Dishwasher(s), Refrigerator(s), Stove(s)/Range(s)
Bath Off Primary, Double Pane/Storm Window, Dining Room, High Tech Cabling, Jetted Tub, Skylight(s),
Wood, Wood Products
Public
Septic Tank
Financial
13974
Cash Out, Conventional
01-21-2026
Comparable Information
1
1
Cash Out, Conventional
$1,695,000
$1,695,000
Jan 22, 2026 13:01
Schools
Elementary : Cathcart ElemN/ARatings Middle : Valley View Mid N/ARatings High : Glacier PeakN/ARatings
Welcome to Your Private Snohomish/Clearview Retreat! Perfect balance of seclusion & convenience. Ideally located near amenities yet offering a peaceful, private lifestyle. 4,532 sq ft home sits on 4.62 flat acres. Home remodeled/expanded in 2018. Step into the stunning 2-story vaulted entry & discover a versatile layout. Family and dining room flow seamlessly into the kitchen. There is a private living room & separate flex room just off the kitchen (or could be a mudroom or pantry for extra storage & a sink). Spacious main floor bonus room with custom cabinetry, great for entertaining or a home office. Generous sized primary suite in a private wing of the home. Walk-in primary closet & a deck. 5-piece primary bathroom has a 2nd water heater, heated floor, jetted tub with a heater and granite countertop. All 4 bedrooms have walk-in closets. 1 of the extra bedrooms has its own on-suite bathroom. All bathrooms have granite countertops. All easy-care hard surface flooring throughout the home. Equestrian enthusiasts will appreciate a 3-stall stable & paddock, ready for your horses or hobby farm dreams or convert to a shop. Roof, furnace & heat pump new in 2018. Quick access to Hwy 9 & 522. Great schools!