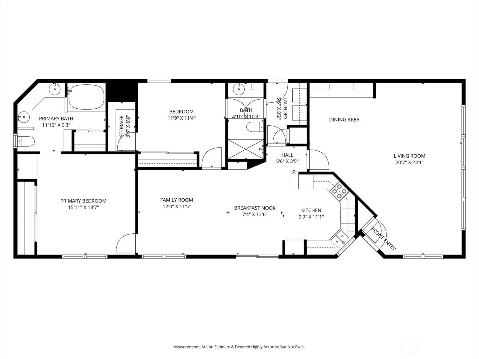
Welcome to Frontier Manor, a desirable 55+ resident-owned (no space leases) community offering stability and a strong sense of ownership. This home stands out for the amount of meaningful work already completed, focusing on long-term reliability rather than just surface-level updates. Recent improvements include a newer furnace, a new water line from the home to the street, electrical upgrades allowing for generator connection during power outages, and professional leveling with upgraded corner supports for added earthquake and wind stability. Inside, updated flooring in the kitchen, dining area, and front living room is paired with refreshed plumbing fixtures, an updated shower, upgraded toilets, and improved entry door hardware. Outside, enjoy rare additional parking with a second driveway and a large shed with power and a newer roof, offering excellent storage or hobby space. This home offers a solid foundation and the opportunity to personalize over time. Community amenities include a clubhouse and RV parking, with a convenient Lake Stevens location close to shopping, dining, and daily conveniences. Seller Financing available!
Listing Provided Courtesy of Linda Nguyen, John L. Scott Arlington
General Information
NWM2468308
Manufactured Home
1
DOM
2
0 SqFt
2
1440
1975
Snohomish
Skyline Elem
Lake Stevens Mi
Lake Stevens Sn
Residential
Manufactured Home
Listing Provided Courtesy of Linda Nguyen, John L. Scott Arlington
Krishna Realty data last checked: Jan 17, 2026 02:18 | Listing last modified Jan 17, 2026 00:40,
Source:
Welcome to Frontier Manor, a desirable 55+ resident-owned (no space leases) community offering stability and a strong sense of ownership. This home stands out for the amount of meaningful work already completed, focusing on long-term reliability rather than just surface-level updates. Recent improvements include a newer furnace, a new water line from the home to the street, electrical upgrades allowing for generator connection during power outages, and professional leveling with upgraded corner supports for added earthquake and wind stability. Inside, updated flooring in the kitchen, dining area, and front living room is paired with refreshed plumbing fixtures, an updated shower, upgraded toilets, and improved entry door hardware. Outside, enjoy rare additional parking with a second driveway and a large shed with power and a newer roof, offering excellent storage or hobby space. This home offers a solid foundation and the opportunity to personalize over time. Community amenities include a clubhouse and RV parking, with a convenient Lake Stevens location close to shopping, dining, and daily conveniences. Seller Financing available!