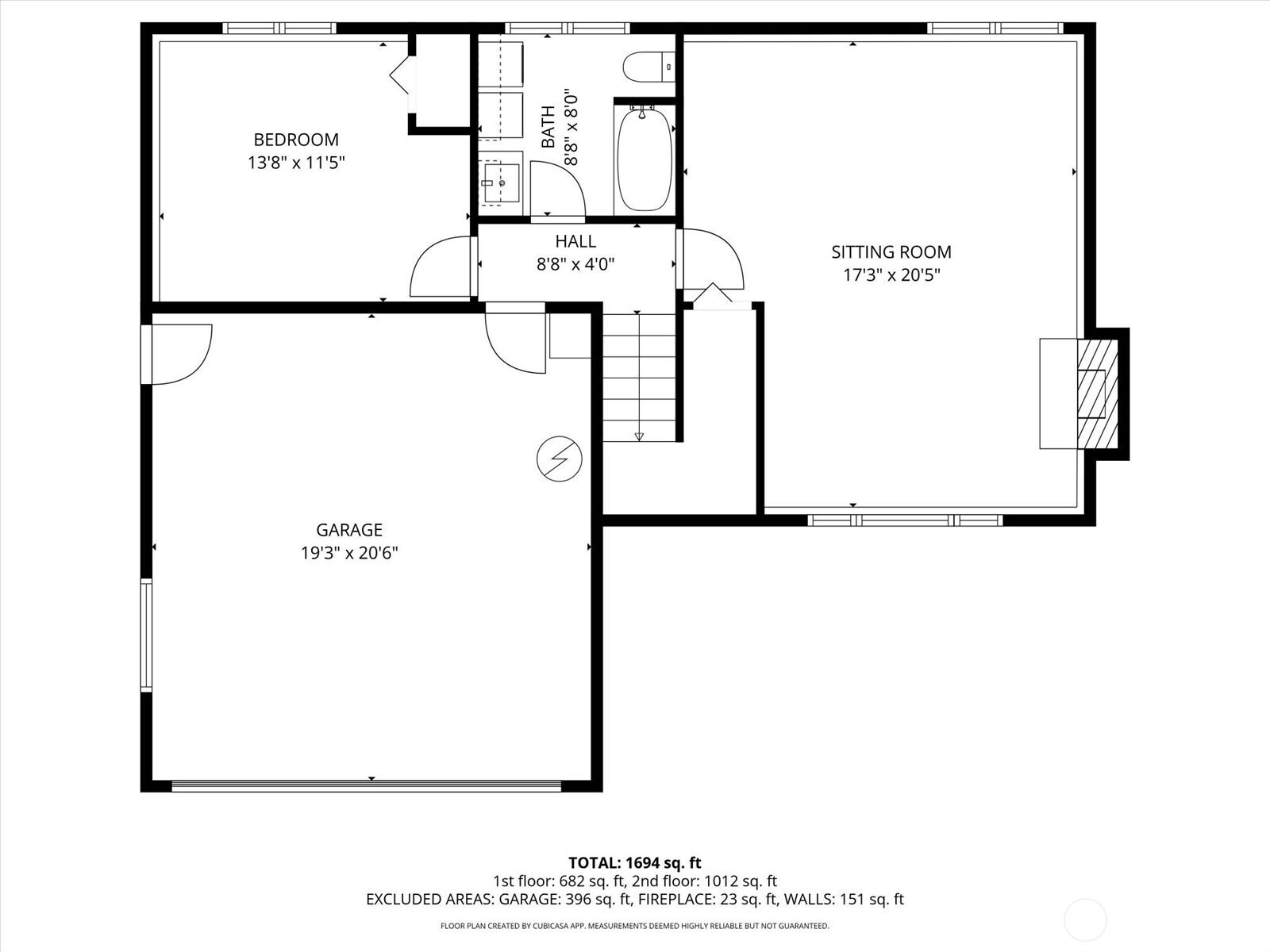
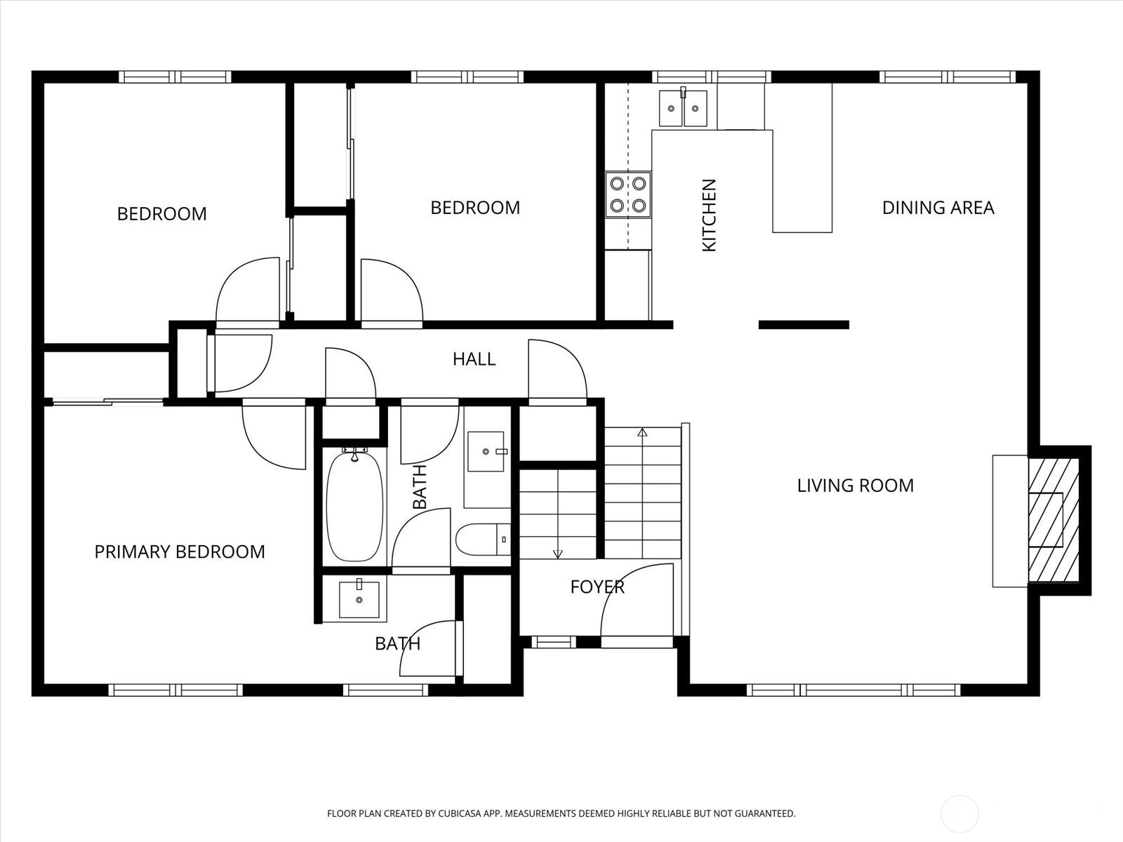
Tucked on a quiet cul-de-sac, this spacious 4-bedroom home offers a flexible layout and a wonderful opportunity to make it your own. The main level features an open floor plan designed for comfortable living and easy entertaining. The efficient and functional kitchen flows naturally to the dining area and light-filled living room with cozy fireplace- making it a welcoming hub for everyday life and gatherings with friends. Three bedrooms are located on the main level, with a fourth bedroom on the lower level- ideal for guests or added privacy. The primary bedroom includes a private vanity area and direct access to the main bath, offering the comfort of an en-suite style layout. Bathrooms have already been updated, offering a nice balance of improvements and potential. The versatile lower level expands the living space with a generous rec room, second fireplace, bath and laundry area- perfect for guests or multi-generational living. The large, newly fenced backyard, provides privacy and room to garden, play, or create your own outdoor retreat. This well-maintained home is move-in ready. With strong bones, a generous floor plan, and an exceptional location in the Northshore School District, this home offers comfort today and the opportunity to build meaningful equity over time.
Listing Provided Courtesy of Lynn Jenssen, SASH Realty
General Information
NWM2492113
Single Family Residence
0
DOM
4
0.37 acres
2
1802
1979
Snohomish
Buyer To Verify
Buyer To Verify
Buyer To Verify
Residential
Single Family Residence
Listing Provided Courtesy of Lynn Jenssen, SASH Realty
Krishna Realty data last checked: Mar 25, 2026 13:42 | Listing last modified Mar 25, 2026 19:02,
Source:
Tucked on a quiet cul-de-sac, this spacious 4-bedroom home offers a flexible layout and a wonderful opportunity to make it your own. The main level features an open floor plan designed for comfortable living and easy entertaining. The efficient and functional kitchen flows naturally to the dining area and light-filled living room with cozy fireplace- making it a welcoming hub for everyday life and gatherings with friends. Three bedrooms are located on the main level, with a fourth bedroom on the lower level- ideal for guests or added privacy. The primary bedroom includes a private vanity area and direct access to the main bath, offering the comfort of an en-suite style layout. Bathrooms have already been updated, offering a nice balance of improvements and potential. The versatile lower level expands the living space with a generous rec room, second fireplace, bath and laundry area- perfect for guests or multi-generational living. The large, newly fenced backyard, provides privacy and room to garden, play, or create your own outdoor retreat. This well-maintained home is move-in ready. With strong bones, a generous floor plan, and an exceptional location in the Northshore School District, this home offers comfort today and the opportunity to build meaningful equity over time.