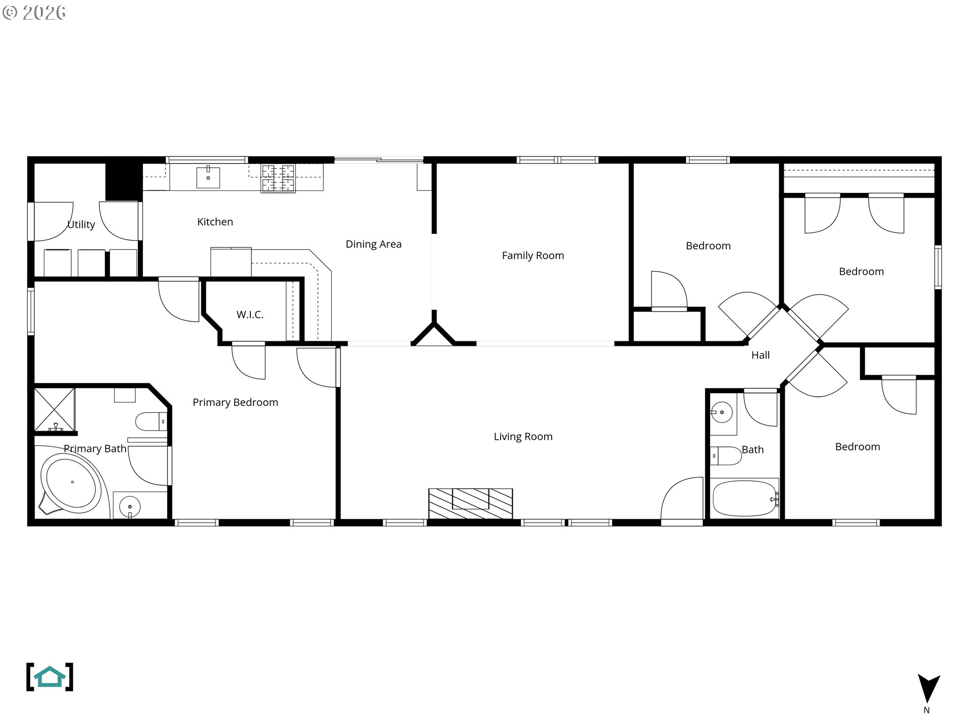
Nice manufacture home sitting on .54 of an acre. There are some beautiful mature fruit trees, two cherry trees and a couple of apple trees, along with a few others nice trees framing the front yard of property. A she shed and tool shed in backyard. This property also has a covered chicken run and a garden area in the back yard. Inside the home has a nice gas fireplace in the dinning area. Kitchen has stainless steel fridge, gas stove with a hood. Primary bedroom with an un suit bathroom and garden tub. Beautiful view out the primary bedroom of the flowering mature trees in the font yard. Nice quiet neighborhood.
Listing Provided Courtesy of Juanita Cummings, Windermere CRG
General Information
390260118
ManufacturedHomeonRealProperty
23
DOM
4
0.54 acres
2
1782
2003
Skamania
03081723040900
Carson
Other
Stevenson
Residential
ManufacturedHomeonRealProperty
LOT 9 RUSSELL'S MEADOW SD BK BPG 102-103
Listing Provided Courtesy of Juanita Cummings, Windermere CRG
Krishna Realty data last checked: May 08, 2026 20:54 | Listing last modified Apr 15, 2026 20:18,
Source:
Nice manufacture home sitting on .54 of an acre. There are some beautiful mature fruit trees, two cherry trees and a couple of apple trees, along with a few others nice trees framing the front yard of property. A she shed and tool shed in backyard. This property also has a covered chicken run and a garden area in the back yard. Inside the home has a nice gas fireplace in the dinning area. Kitchen has stainless steel fridge, gas stove with a hood. Primary bedroom with an un suit bathroom and garden tub. Beautiful view out the primary bedroom of the flowering mature trees in the font yard. Nice quiet neighborhood.