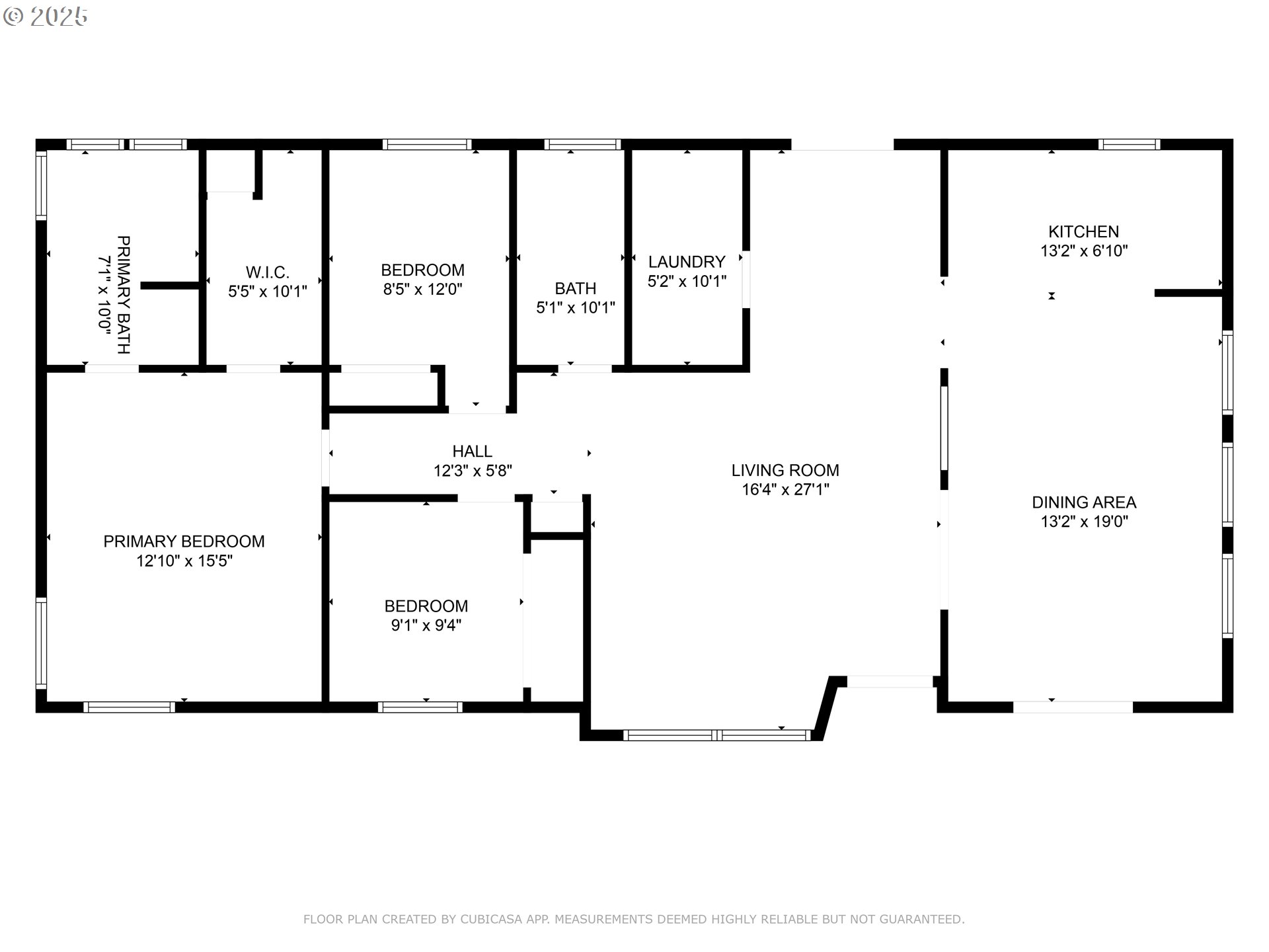
Discover 10.6 acres of Pacific Northwest beauty with stunning territorial views of Larch Mountain and peekaboo Mt. Hood. This beautifully remodeled 3BD/2BA home offers an open-concept layout, new LVP flooring, spacious dining, and a gourmet kitchen with stainless steel appliances, island, tile backsplash, and skylight. Vaulted family room with mini-split showcases sweeping views. Serene primary suite features walk-in closet and spa bath with double vessel sinks, soaking tub, and walk-in shower. Enjoy a fenced yard, two fire pits, and a front deck perfect for outdoor living. Detached garage with workshop, new carport, and potential for shop/ADU add versatility. Bonus: your very own private waterfall. Rare acreage retreat—schedule your private showing today!
Listing Provided Courtesy of Tony Lewis, Works Real Estate
General Information
272747446
ManufacturedHomeonRealProperty
147
DOM
3
10.6 acres
2
1568
1996
R10
Skamania
02050000800400
Cape/Skye
Canyon Creek
Washougal
Residential
ManufacturedHomeonRealProperty
.45 AC RW
Listing Provided Courtesy of Tony Lewis, Works Real Estate
Krishna Realty data last checked: Jan 15, 2026 13:03 | Listing last modified Dec 10, 2025 11:25,
Source:
Download our Mobile app
Residence Information
0
1568
0
1568
RMLS
1568
3
2
0
2
Composition
1, Carport, Detached
Stories1,DoubleWideManufactured
Carport,Driveway
1
1996
No
Cedar, CementSiding, ShakeSiding, Stone
CrawlSpace
RVParking,RVBoatStorage
CrawlSpace
Block
DoublePaneWindows
Features and Utilities
Dishwasher, FreeStandingRange, FreeStandingRefrigerator, Island, StainlessSteelAppliance
Discover 10.6 acres of Pacific Northwest beauty with stunning territorial views of Larch Mountain and peekaboo Mt. Hood. This beautifully remodeled 3BD/2BA home offers an open-concept layout, new LVP flooring, spacious dining, and a gourmet kitchen with stainless steel appliances, island, tile backsplash, and skylight. Vaulted family room with mini-split showcases sweeping views. Serene primary suite features walk-in closet and spa bath with double vessel sinks, soaking tub, and walk-in shower. Enjoy a fenced yard, two fire pits, and a front deck perfect for outdoor living. Detached garage with workshop, new carport, and potential for shop/ADU add versatility. Bonus: your very own private waterfall. Rare acreage retreat—schedule your private showing today!