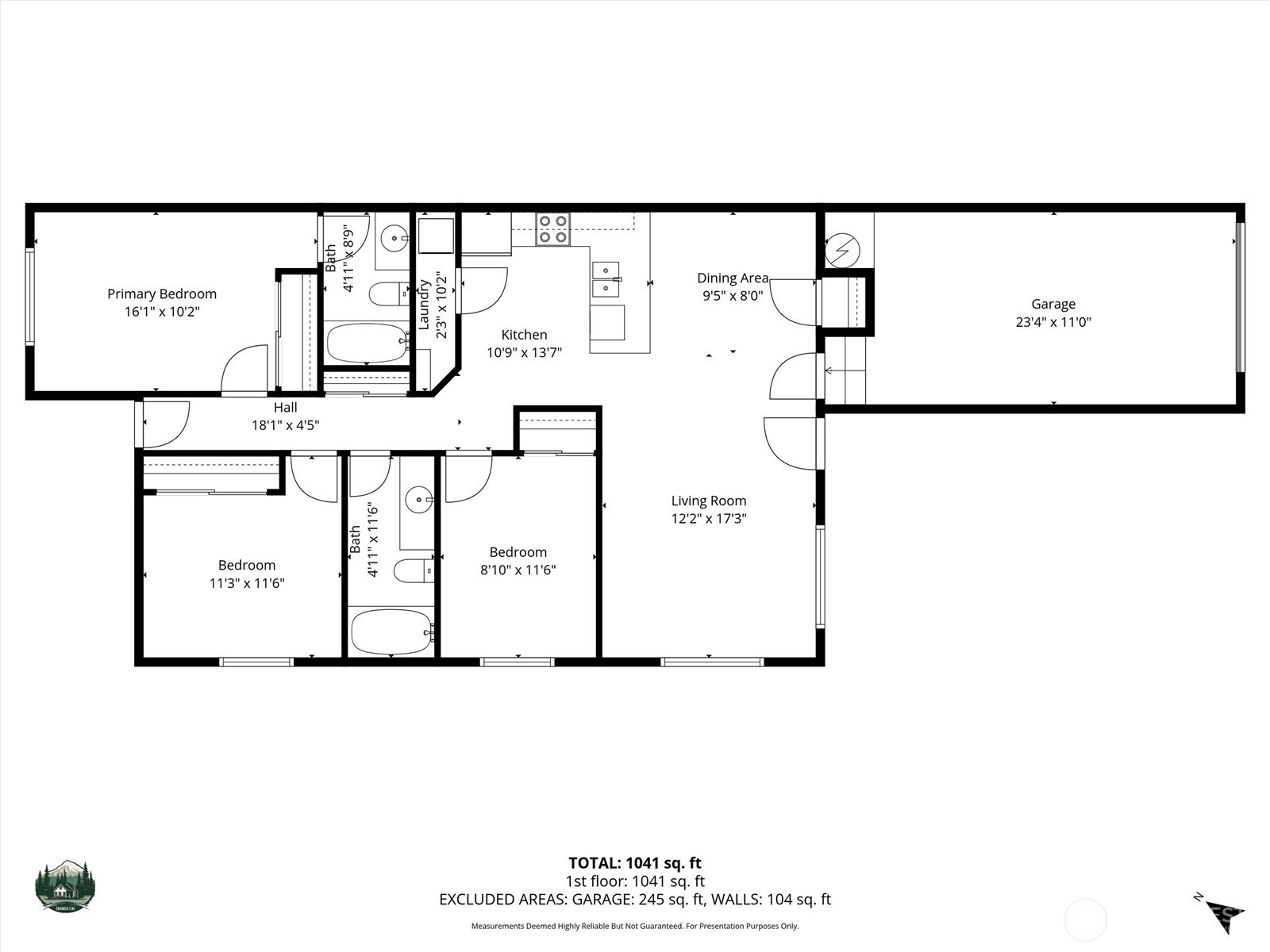
Charming 1,080 sq. ft. single story townhome offering 3 bedrooms, 2 full baths, and a single-car garage. Perfect as a starter home or investment property, this residence features bright, open living spaces and a fully fenced gravel backyard. Enjoy the privacy of your own yard while being just minutes from downtown and with quick access to I-5 for an easy commute. The smart layout offers comfortable living with plenty of natural light, while the fenced backyard provides a safe and inviting space to relax or entertain. Warm and welcoming, this home combines comfort, convenience, and affordability in one great package. This property is not located within the 100-year flood plain.
Listing Provided Courtesy of Jayci Shaddy, Landed Gentry Development Inc
General Information
NWM2447433
Single Family Residence
17
DOM
3
4051.08 SqFt
2
1080
2010
Skagit
Buyer To Verify
Buyer To Verify
Buyer To Verify
Residential
Single Family Residence
Listing Provided Courtesy of Jayci Shaddy, Landed Gentry Development Inc
Krishna Realty data last checked: Dec 25, 2025 13:48 | Listing last modified Dec 23, 2025 23:12,
Source:
Charming 1,080 sq. ft. single story townhome offering 3 bedrooms, 2 full baths, and a single-car garage. Perfect as a starter home or investment property, this residence features bright, open living spaces and a fully fenced gravel backyard. Enjoy the privacy of your own yard while being just minutes from downtown and with quick access to I-5 for an easy commute. The smart layout offers comfortable living with plenty of natural light, while the fenced backyard provides a safe and inviting space to relax or entertain. Warm and welcoming, this home combines comfort, convenience, and affordability in one great package. This property is not located within the 100-year flood plain.