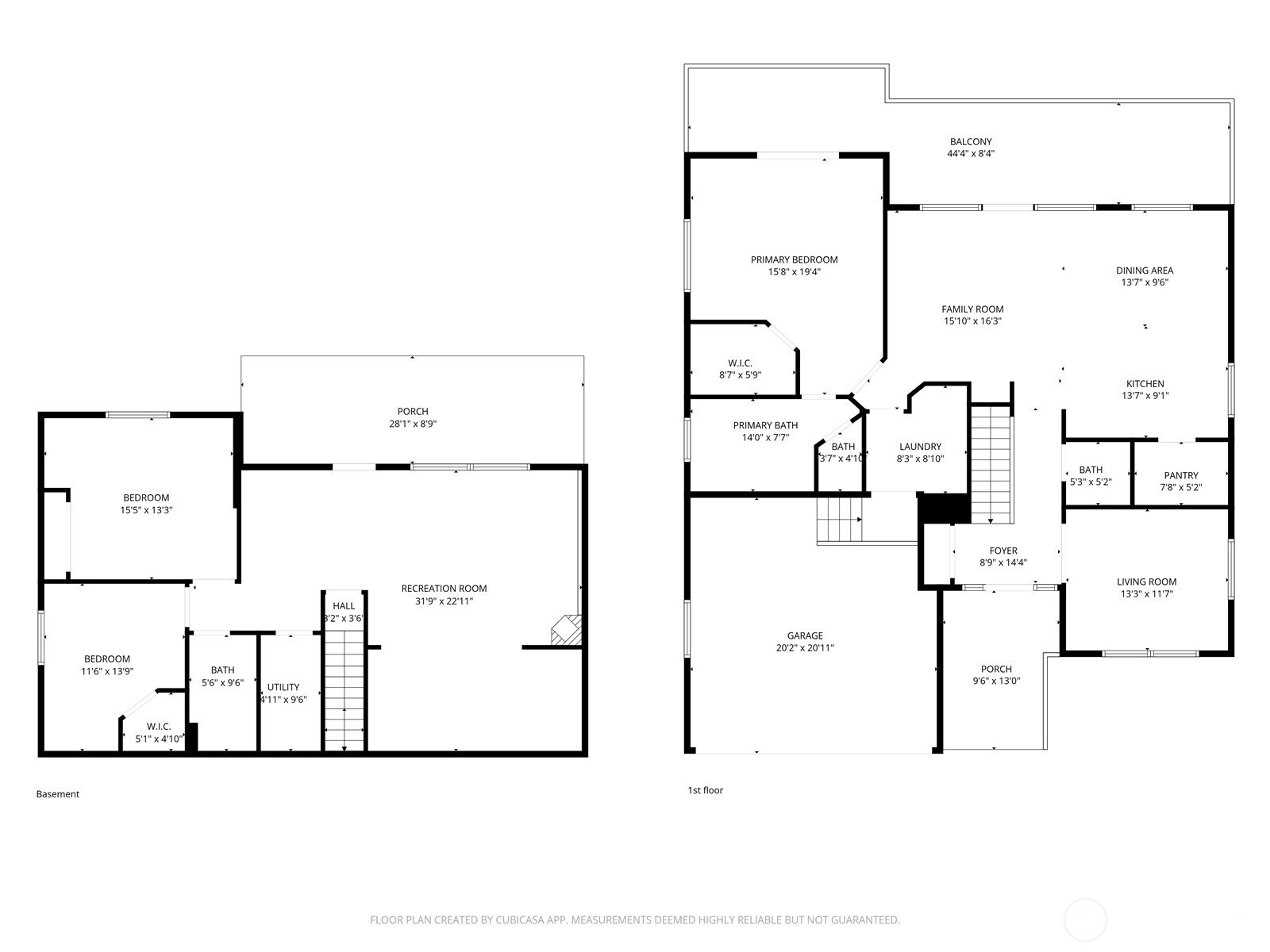
Desirable Clearidge community territorial view home that is perfect for multigenerational living or rental options. Â This immaculate home is only minutes from Guemes Channel Trail system, Washington Park and Sunset Beach. Â Interior features include a primary bedroom with coffered ceilings, French doors leading to an expansive deck, a large walk-in closet and private ensuite with double vanity, jetted tub and separate shower. Â The kitchen features granite countertops, SS appliances, a large walk-in pantry and breakfast bar that opens to the dining and living room with a cozy gas FP and custom built-in shelving. Â The laundry room with sink is off the 2-car garage, which has beautiful Epoxy floors and good storage. Â Off the entry is an office/den with coffered ceilings, a 1/2 bath and a stairway leading to an additional daylight living space or apartment. Â The lower level has been used as a rental at $1800/mo. It features a family room with a gas FP, a full kitchen w/ laundry, 2 bedrooms, a full bath and access to private covered patio and hot tub. Â Additional notable features include: New exterior paint, newer roof, RV parking, fully fenced with garden shed.
Listing Provided Courtesy of Brooke Stremler, Windermere RE Whatcom, Inc.
General Information
NWM2504242
Single Family Residence
0
DOM
3
8276.4 SqFt
2.5
2649
2006
Skagit
Buyer To Verify
Anacortes Mid
Anacortes High
Residential
Single Family Residence
Listing Provided Courtesy of Brooke Stremler, Windermere RE Whatcom, Inc.
Krishna Realty data last checked: Apr 08, 2026 13:37 | Listing last modified Apr 08, 2026 19:03,
Source:
Desirable Clearidge community territorial view home that is perfect for multigenerational living or rental options. Â This immaculate home is only minutes from Guemes Channel Trail system, Washington Park and Sunset Beach. Â Interior features include a primary bedroom with coffered ceilings, French doors leading to an expansive deck, a large walk-in closet and private ensuite with double vanity, jetted tub and separate shower. Â The kitchen features granite countertops, SS appliances, a large walk-in pantry and breakfast bar that opens to the dining and living room with a cozy gas FP and custom built-in shelving. Â The laundry room with sink is off the 2-car garage, which has beautiful Epoxy floors and good storage. Â Off the entry is an office/den with coffered ceilings, a 1/2 bath and a stairway leading to an additional daylight living space or apartment. Â The lower level has been used as a rental at $1800/mo. It features a family room with a gas FP, a full kitchen w/ laundry, 2 bedrooms, a full bath and access to private covered patio and hot tub. Â Additional notable features include: New exterior paint, newer roof, RV parking, fully fenced with garden shed.