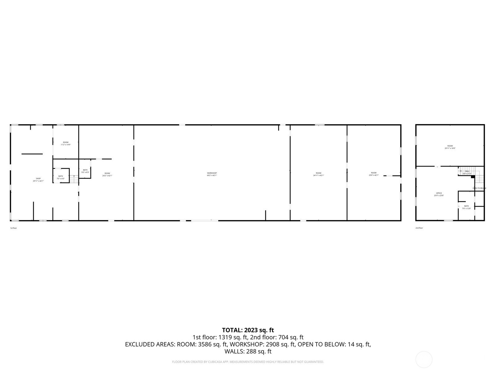
Exceptional opportunity to acquire this turnkey cabinet and kitchen manufacturing company, established in 1988, that has consistently generated strong annual sales revenue. Located centrally in beautiful Anacortes, WA, near the waterfront. This sale includes the business operations, assets, and real estate, which consists of a building comprising approximately 1,200 square feet of heated office space with bathroom and breakroom/storage areas, an additional 1,200 square feet of showroom space with bathroom, and approximately 5,600 square feet of unheated manufacturing and finishing space designed to support high air exchange requirements. A 140 square foot compressor and storage room is also included on nearly a ½-acre lot. With a strong focus on residential end-users and wholesale clients, the company delivers high-quality products and services. Turnkey business and real estate with warehouse and showroom. Price includes real estate, warehouse, showroom, office, and high-end machinery, tools, and vehicles.
Listing Provided Courtesy of Cindi Johnston, Ideal Real Estate
General Information
NWM2484235
Commercial Industrial
69
DOM
0.43 acres
0
1988
Commerc
Skagit
Commercial Sale
Commercial Industrial
Listing Provided Courtesy of Cindi Johnston, Ideal Real Estate
Krishna Realty data last checked: Mar 17, 2026 14:12 | Listing last modified Feb 27, 2026 21:19,
Source:
Exceptional opportunity to acquire this turnkey cabinet and kitchen manufacturing company, established in 1988, that has consistently generated strong annual sales revenue. Located centrally in beautiful Anacortes, WA, near the waterfront. This sale includes the business operations, assets, and real estate, which consists of a building comprising approximately 1,200 square feet of heated office space with bathroom and breakroom/storage areas, an additional 1,200 square feet of showroom space with bathroom, and approximately 5,600 square feet of unheated manufacturing and finishing space designed to support high air exchange requirements. A 140 square foot compressor and storage room is also included on nearly a ½-acre lot. With a strong focus on residential end-users and wholesale clients, the company delivers high-quality products and services. Turnkey business and real estate with warehouse and showroom. Price includes real estate, warehouse, showroom, office, and high-end machinery, tools, and vehicles.