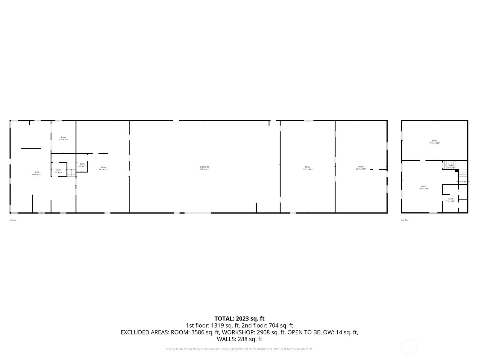
Real estate and Business sale. Wood House is an established custom cabinet manufacturer with over 40 years of continuous operation and has occupied its current location since 1988. The company maintains a strong reputation within the custom cabinet industry, supported by a loyal client base that values locally produced, high quality craftsmanship. Longstanding relationships with contractors throughout Skagit and Island Counties consistently position Wood House as a preferred bidder. Production is prioritized for established contractor clients, with walk in customers used strategically to maintain efficient capacity utilization. The property includes a purpose built, fully insulated, stick constructed (2×6) facility constructed in 1988 by Yonkman Construction, located on approximately 0.43 acres near the Anacortes waterfront. The building comprises approximately 1,200 square feet of heated office space with bathroom and breakroom/storage areas, an additional 1,200 square feet of showroom space with bathroom, and approximately 5,600 square feet of unheated manufacturing and finishing space designed to support high air exchange requirements. A 140 square foot compressor and storage room is also included. The independent finish spray room is equipped with a CO2 fire suppression system maintained by Pye Barker. All tooling required for custom door and dovetail drawer production is located on site.
Listing Provided Courtesy of Cindi Johnston, Ideal Real Estate
General Information
NWM2484286
Business Opportunity
3
DOM
0.43 acres
0
Skagit
Business Opportun
Business Opportunity
Listing Provided Courtesy of Cindi Johnston, Ideal Real Estate
Krishna Realty data last checked: Mar 17, 2026 14:12 | Listing last modified Feb 27, 2026 21:21,
Source:
Real estate and Business sale. Wood House is an established custom cabinet manufacturer with over 40 years of continuous operation and has occupied its current location since 1988. The company maintains a strong reputation within the custom cabinet industry, supported by a loyal client base that values locally produced, high quality craftsmanship. Longstanding relationships with contractors throughout Skagit and Island Counties consistently position Wood House as a preferred bidder. Production is prioritized for established contractor clients, with walk in customers used strategically to maintain efficient capacity utilization. The property includes a purpose built, fully insulated, stick constructed (2×6) facility constructed in 1988 by Yonkman Construction, located on approximately 0.43 acres near the Anacortes waterfront. The building comprises approximately 1,200 square feet of heated office space with bathroom and breakroom/storage areas, an additional 1,200 square feet of showroom space with bathroom, and approximately 5,600 square feet of unheated manufacturing and finishing space designed to support high air exchange requirements. A 140 square foot compressor and storage room is also included. The independent finish spray room is equipped with a CO2 fire suppression system maintained by Pye Barker. All tooling required for custom door and dovetail drawer production is located on site.