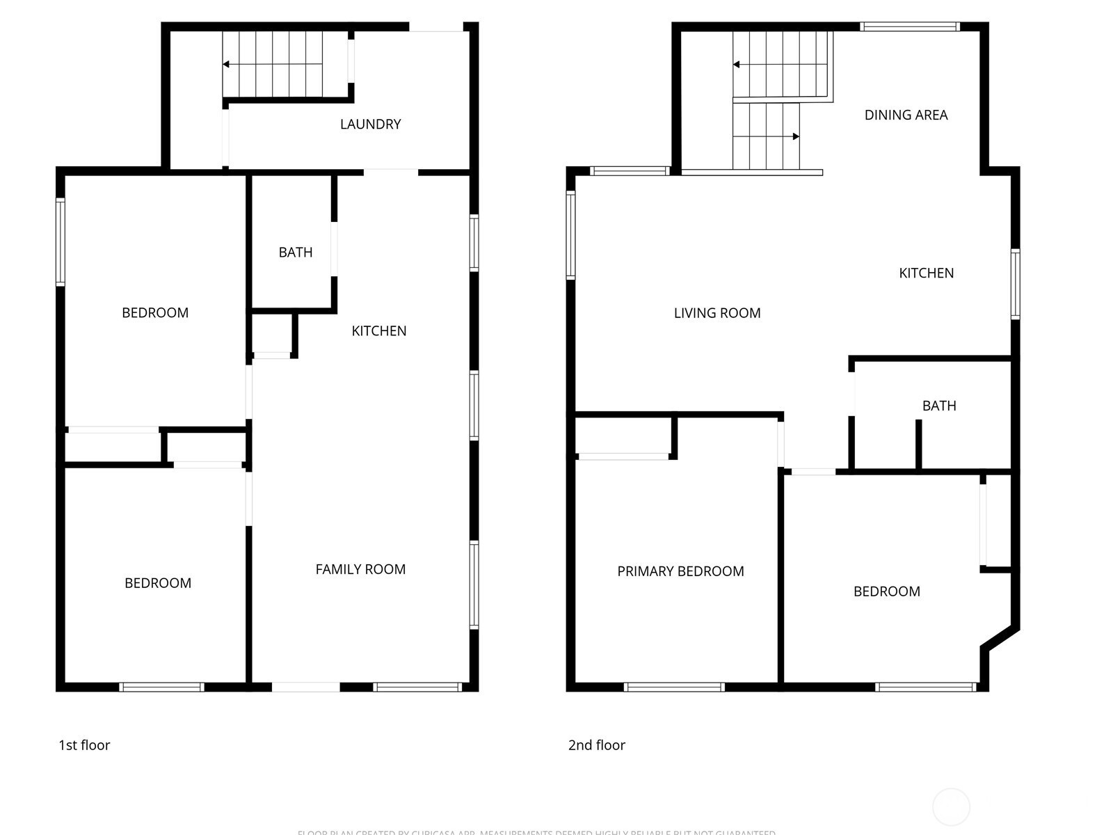
Discover the perfect single-family home with the rare bonus of two complete living spaces—one on the main level and one upstairs. Both levels offer open-concept layouts with freshly painted, calming interior colors and brand-new waterproof vinyl flooring flowing throughout. Each floor features an open kitchen with a full 5-piece stainless steel appliance package, an eating area, a full bathroom, and two oversized bedrooms filled with natural light. The shared laundry room sits conveniently at the rear of the home near the exterior entrance. This property has functioned beautifully as a duplex for the past five years, generating approximately $5,000 per month ($2,500 per floor)—an incredible opportunity for rental income, multigenerational living, or flexible use of space. Parking is a breeze with space for over two vehicles behind the home, plus plenty of off-street parking for guests or tenants. Each level also enjoys its own dedicated 8×10 locking storage unit located at the rear of the property—ideal for seasonal items, bikes, tools, or personal belongings. BONUS: The exterior has already been fully prepped, and the purchase price includes NEW EXTERIOR PAINTING this spring once temperatures warm up. Choose your own colors or go with the sellers’ selection—either way, the fresh exterior will be ready for you. (Partially virtually staged for imagination). Sellers motivated to sell because they are moving out of state.
Listing Provided Courtesy of Lucy Lotto, Kelly Right RE of Seattle LLC
General Information
NWM2483095
Single Family Residence
13
DOM
4
3484.8 SqFt
2
1787
2002
Skagit
Buyer To Verify
Buyer To Verify
Buyer To Verify
Residential
Single Family Residence
Listing Provided Courtesy of Lucy Lotto, Kelly Right RE of Seattle LLC
Krishna Realty data last checked: Mar 17, 2026 00:32 | Listing last modified Mar 07, 2026 19:52,
Source:
Download our Mobile app
Residence Information
1787
4
2
0
2
Composition
12 - 2 Story
2002
None
None
Poured Concrete
Features and Utilities
Dishwasher(s), Disposal, Dryer(s), Microwave(s), Refrigerator(s), See Remarks, Stove(s)/Range(s), Wa
Second Kitchen, Water Heater
Wood
Public
Sewer Connected
Financial
6688
Cash, Conventional, FHA, VA Loan
02-22-2026
Comparable Information
13
13
Cash, Conventional, FHA, VA Loan
$625,000
$625,000
Mar 07, 2026 19:52
Schools
Elementary : Buyer To VerifyN/ARatings Middle : Buyer To Verify N/ARatings High : Buyer To VerifyN/ARatings
Map
Listing courtesy of Kelly Right RE of Seattle LLC.
Discover the perfect single-family home with the rare bonus of two complete living spaces—one on the main level and one upstairs. Both levels offer open-concept layouts with freshly painted, calming interior colors and brand-new waterproof vinyl flooring flowing throughout. Each floor features an open kitchen with a full 5-piece stainless steel appliance package, an eating area, a full bathroom, and two oversized bedrooms filled with natural light. The shared laundry room sits conveniently at the rear of the home near the exterior entrance. This property has functioned beautifully as a duplex for the past five years, generating approximately $5,000 per month ($2,500 per floor)—an incredible opportunity for rental income, multigenerational living, or flexible use of space. Parking is a breeze with space for over two vehicles behind the home, plus plenty of off-street parking for guests or tenants. Each level also enjoys its own dedicated 8×10 locking storage unit located at the rear of the property—ideal for seasonal items, bikes, tools, or personal belongings. BONUS: The exterior has already been fully prepped, and the purchase price includes NEW EXTERIOR PAINTING this spring once temperatures warm up. Choose your own colors or go with the sellers’ selection—either way, the fresh exterior will be ready for you. (Partially virtually staged for imagination). Sellers motivated to sell because they are moving out of state.