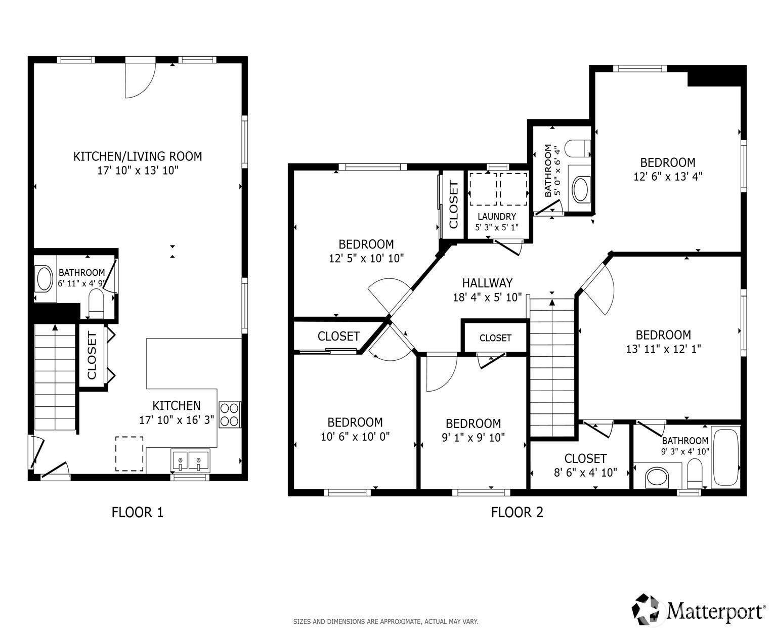
Welcome to this spacious 2-story home in the desirable Meadows community, ideally positioned in a quiet cul-de-sac. A charming covered front porch welcomes you, leading into an open living space designed for everyday comfort and easy entertaining. The living room flows seamlessly into the kitchen and dining space, featuring a breakfast bar with additional seating and direct access to the partially fenced backyard. A convenient main-level half bath for guests. Upstairs, you will find four well-sized bedrooms plus a versatile bonus room with a closet, offering ideal flexibility for a fifth bedroom, home office, or media space. The primary suite includes a full bath and walk-in closet, while three additional bedrooms share a ¾ bath. Laundry is thoughtfully located on the upper level. Additional highlights include a large two-car garage with shop space, all appliances included, recently painted exterior, and a serviced furnace for peace of mind. Residents enjoy access to a community park with walking trails, playground, sports court, and a paved lot for RV, boat, or trailer parking. Conveniently located just minutes to I-5, shops and restaurants and blocks from the YMCA.
Listing Provided Courtesy of Melissa Challman, Redfin
General Information
NWM2479336
Single Family Residence
6
DOM
4
6098.4 SqFt
1.5
1689
1998
Skagit
Buyer To Verify
Buyer To Verify
Buyer To Verify
Residential
Single Family Residence
Listing Provided Courtesy of Melissa Challman, Redfin
Krishna Realty data last checked: Apr 03, 2026 22:55 | Listing last modified Mar 27, 2026 19:33,
Source:
Welcome to this spacious 2-story home in the desirable Meadows community, ideally positioned in a quiet cul-de-sac. A charming covered front porch welcomes you, leading into an open living space designed for everyday comfort and easy entertaining. The living room flows seamlessly into the kitchen and dining space, featuring a breakfast bar with additional seating and direct access to the partially fenced backyard. A convenient main-level half bath for guests. Upstairs, you will find four well-sized bedrooms plus a versatile bonus room with a closet, offering ideal flexibility for a fifth bedroom, home office, or media space. The primary suite includes a full bath and walk-in closet, while three additional bedrooms share a ¾ bath. Laundry is thoughtfully located on the upper level. Additional highlights include a large two-car garage with shop space, all appliances included, recently painted exterior, and a serviced furnace for peace of mind. Residents enjoy access to a community park with walking trails, playground, sports court, and a paved lot for RV, boat, or trailer parking. Conveniently located just minutes to I-5, shops and restaurants and blocks from the YMCA.