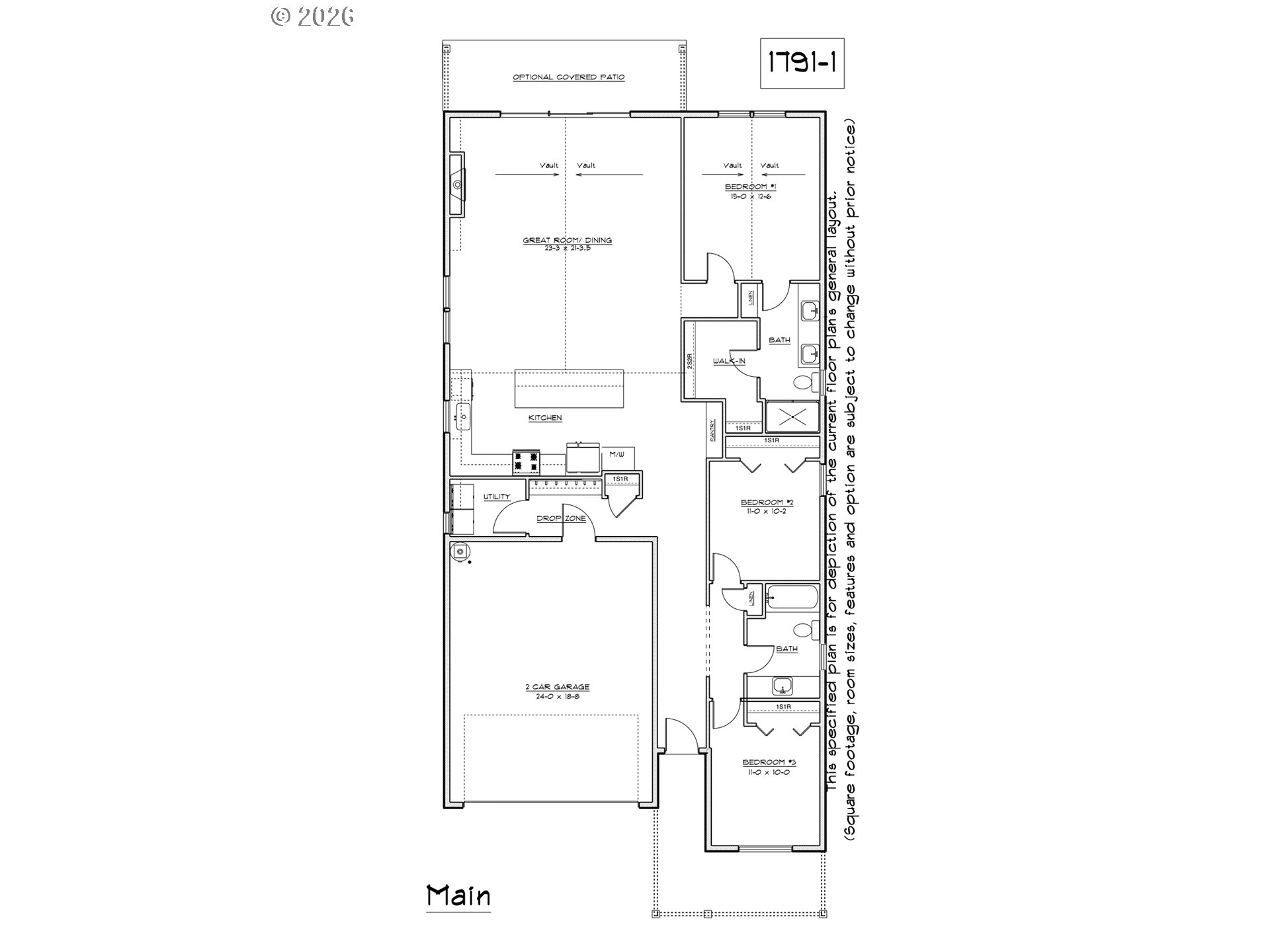
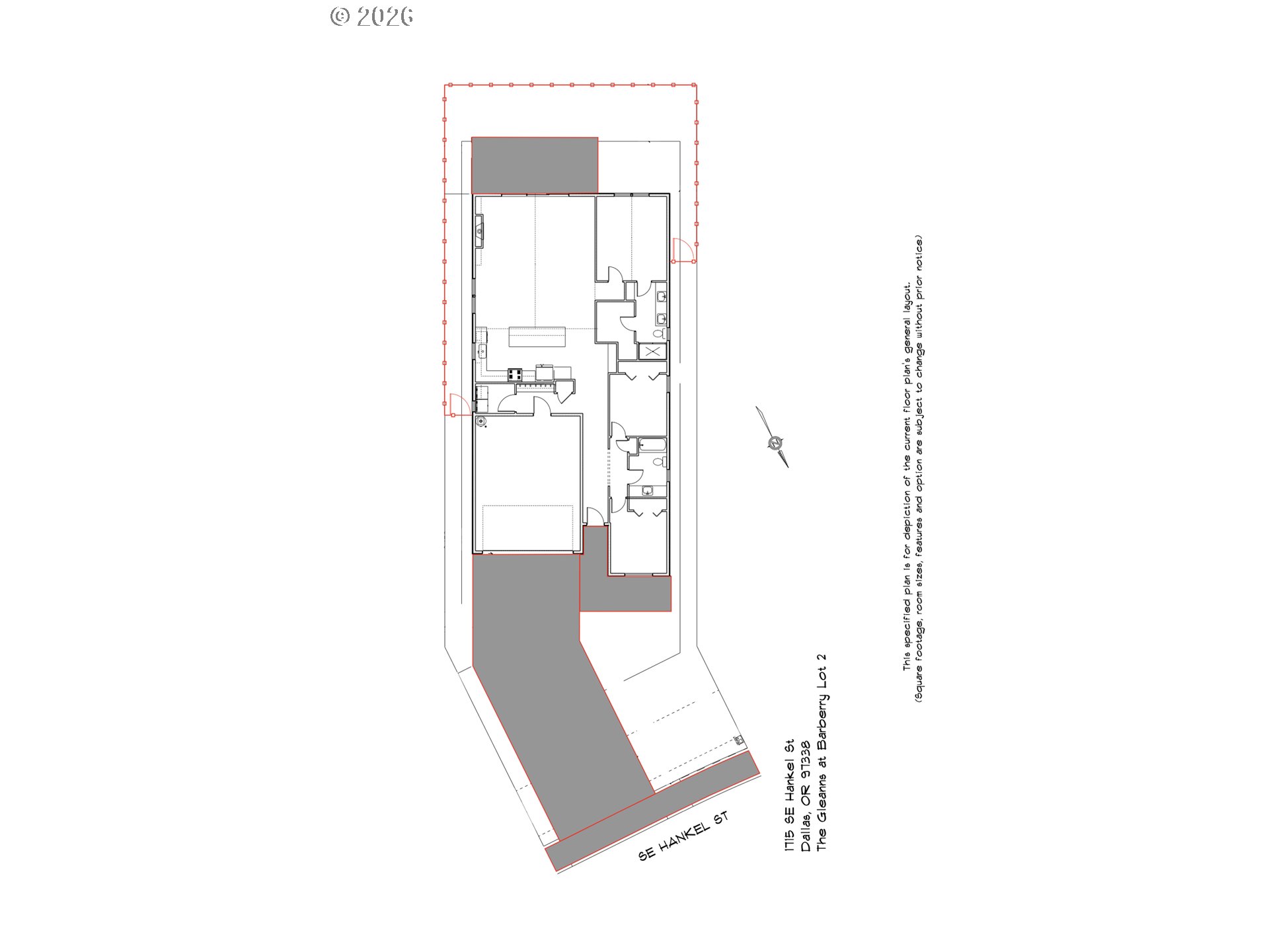
Brand new 3 bed, 2 bath single-level home with an open layout and vaulted main living area combining the kitchen, dining, and great room. The kitchen features a center island, two-tone cabinetry, and an upgraded appliance package. A sliding door leads to the covered patio and fully fenced, landscaped backyard.The primary suite offers a vaulted ceiling, walk-in closet, and private bath with double vanities. Just off the entry is a convenient drop zone leading to the laundry room, complete with washer and dryer. Thoughtfully designed new construction with modern finishes throughout. Closes 8/12.
Listing Provided Courtesy of Leslie James, Premiere Property Group, LLC
General Information
568057504
SingleFamilyResidence
1
DOM
3
5662.8 SqFt
2
1791
2026
Polk
New Construction
Lyle 3/10
Lacreole 3/10
Dallas 6/10
Residential
SingleFamilyResidence
Lot 2
Listing Provided Courtesy of Leslie James, Premiere Property Group, LLC
Krishna Realty data last checked: Mar 04, 2026 09:02 | Listing last modified Mar 03, 2026 14:16,
Source:
Brand new 3 bed, 2 bath single-level home with an open layout and vaulted main living area combining the kitchen, dining, and great room. The kitchen features a center island, two-tone cabinetry, and an upgraded appliance package. A sliding door leads to the covered patio and fully fenced, landscaped backyard.The primary suite offers a vaulted ceiling, walk-in closet, and private bath with double vanities. Just off the entry is a convenient drop zone leading to the laundry room, complete with washer and dryer. Thoughtfully designed new construction with modern finishes throughout. Closes 8/12.