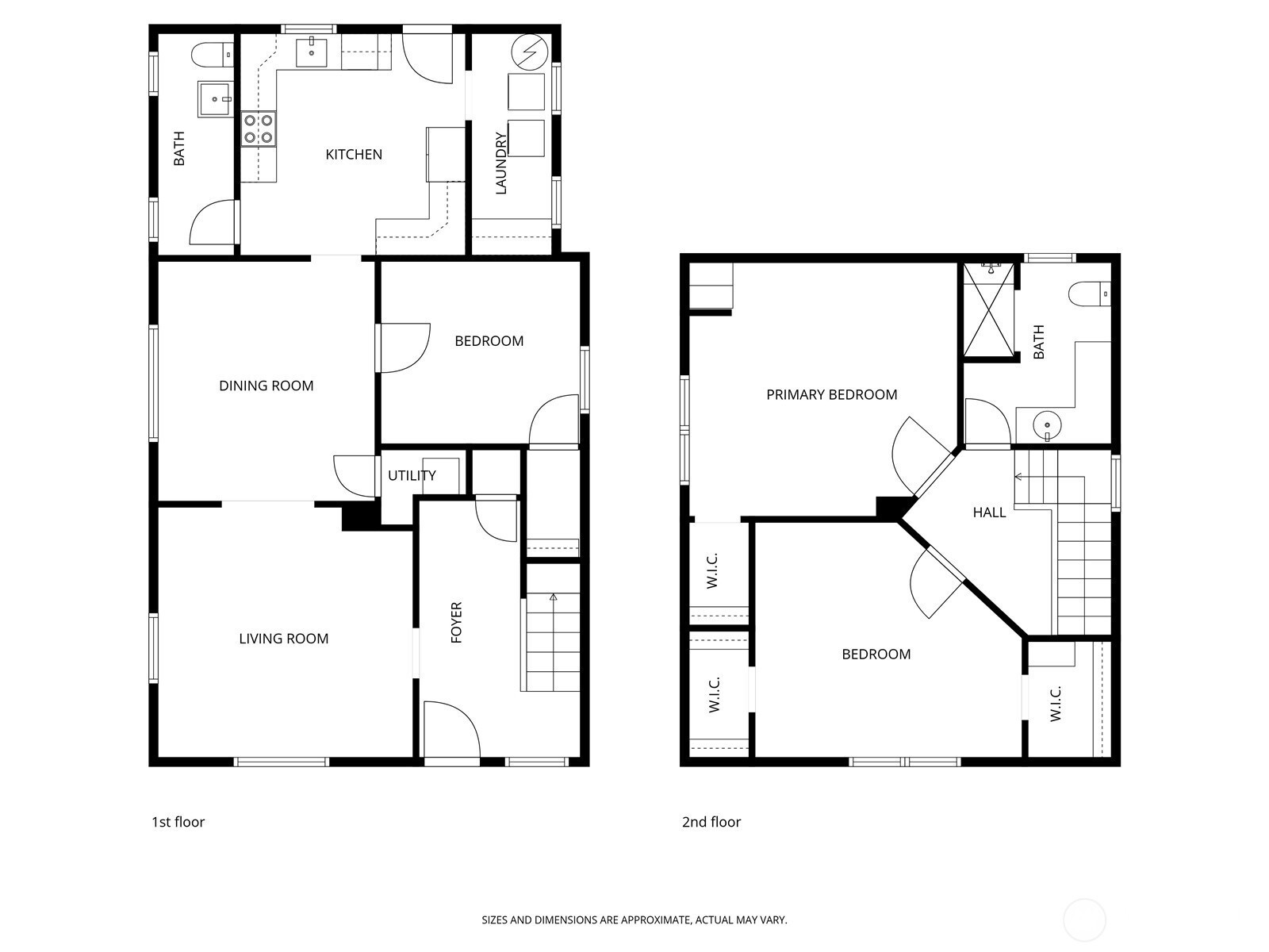
Set in Tacoma’s 6th Ave district, this 3-bedroom home puts you just blocks from restaurants, parks, and neighborhood favorites, with quick access to Highway 16 when you need to get across town. With more than 1,600 square feet, the home has a bright, airy feel thanks to tall ceilings on both floors and large windows throughout. The bedrooms are generously sized, with proportions that feel right from room to room. Original hardwoods run through most of the home, adding warmth and character. A main-level half bath and full laundry room add to the home’s functionality. The kitchen was remodeled in 2026 with 3cm quartz countertops that extend as the backsplash, along with soft-close cabinets and drawers for a clean, finished look. The home also features a new roof and fresh interior and exterior paint, completed in 2026. Plumbing and electrical have also been updated. Outside, the property is nearly fully fenced and offers a covered front porch, rear deck, and dedicated off-street parking via the alley. Pre-inspected, well-maintained, and turn-key, this home has been thoughtfully improved and clearly cared for. With strong curb appeal and a location that puts Tacoma’s best amenities close at hand, it is a compelling option for anyone seeking affordable city living without sacrificing style or condition.
Listing Provided Courtesy of Alison Paoli, PropertiesNW of Gig Harbor Ltd
General Information
NWM2509028
Single Family Residence
1
DOM
3
4386.49 SqFt
0.5
1626
1902
Pierce
Buyer To Verify
Hilltop Heritag
Foss
Residential
Single Family Residence
Listing Provided Courtesy of Alison Paoli, PropertiesNW of Gig Harbor Ltd
Krishna Realty data last checked: Apr 18, 2026 02:38 | Listing last modified Apr 18, 2026 05:40,
Source:
Set in Tacoma’s 6th Ave district, this 3-bedroom home puts you just blocks from restaurants, parks, and neighborhood favorites, with quick access to Highway 16 when you need to get across town. With more than 1,600 square feet, the home has a bright, airy feel thanks to tall ceilings on both floors and large windows throughout. The bedrooms are generously sized, with proportions that feel right from room to room. Original hardwoods run through most of the home, adding warmth and character. A main-level half bath and full laundry room add to the home’s functionality. The kitchen was remodeled in 2026 with 3cm quartz countertops that extend as the backsplash, along with soft-close cabinets and drawers for a clean, finished look. The home also features a new roof and fresh interior and exterior paint, completed in 2026. Plumbing and electrical have also been updated. Outside, the property is nearly fully fenced and offers a covered front porch, rear deck, and dedicated off-street parking via the alley. Pre-inspected, well-maintained, and turn-key, this home has been thoughtfully improved and clearly cared for. With strong curb appeal and a location that puts Tacoma’s best amenities close at hand, it is a compelling option for anyone seeking affordable city living without sacrificing style or condition.