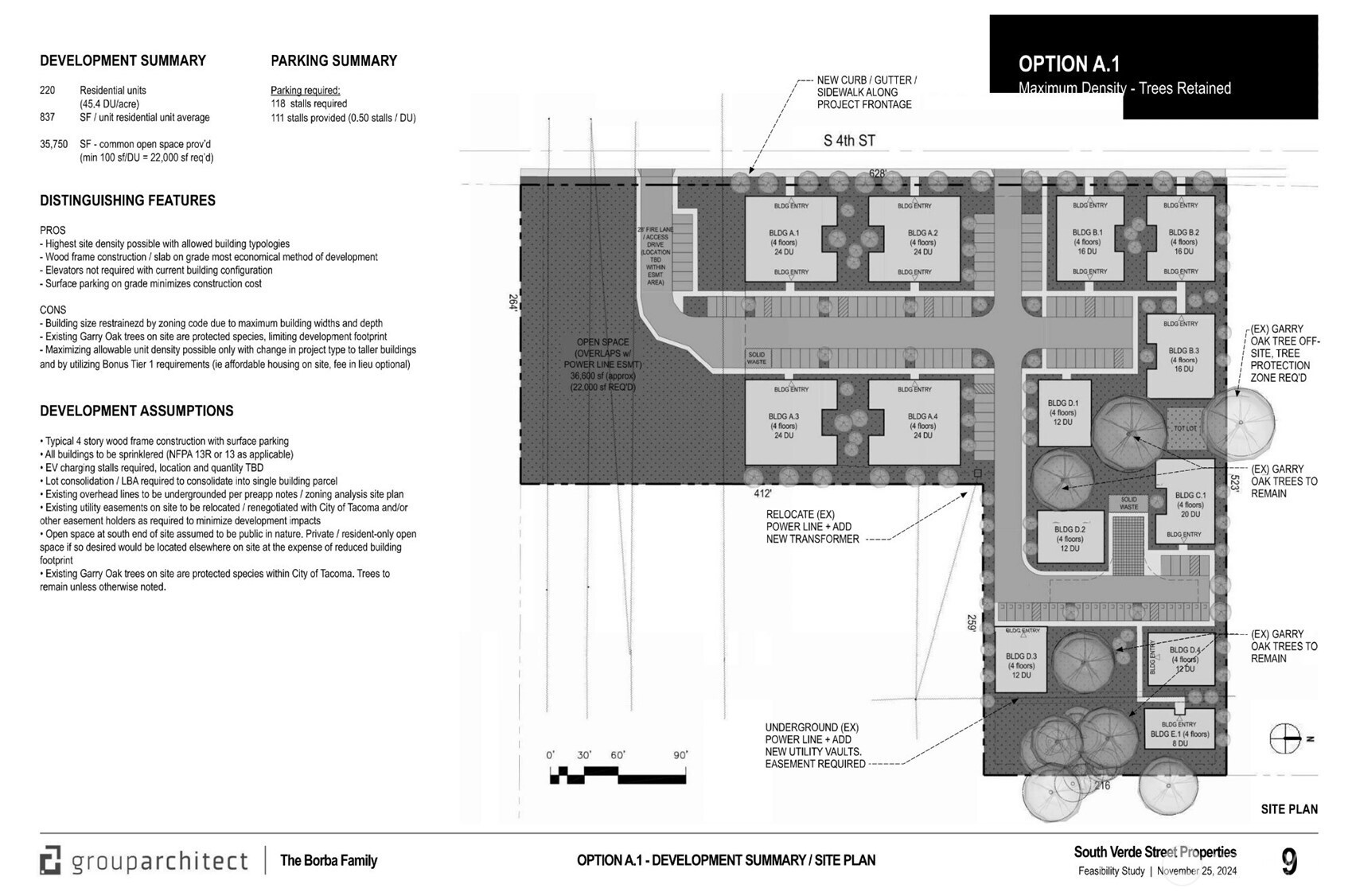
Investors/builders take note of this rare unique offering! 3 contiguous tax parcels totaling 5.07 acres, recently rezoned Urban Residential-3 (UR-3) per the "Home in Tacoma Plan" Feb 2025. Parcels like this don’t come to the market very often. Unusual high density zoning is now available for this large parcel, and 628 feet of frontage on S. Verde offers a rare development opportunity for the buyer who catches the vision of what’s possible here. Quiet residential neighborhood, convenient to elementary and high school w straight shot access to I-5, Lakewood/Tacoma Services +Joint Base Lewis McChord. Addresses of individual parcels are 7811, 7815, 7801 S. Verde. Pre-Feasibility Study/ Site Plan from architect is complete-available on request
Listing Provided Courtesy of George Graham, John L. Scott, Inc
General Information
NWM2336018
Land
117
DOM
5.07 acres
0
Multi-F
Pierce
Manitou Park
Gray
Mt Tahoma
Land
Land
Listing Provided Courtesy of George Graham, John L. Scott, Inc
Krishna Realty data last checked: Apr 27, 2026 03:35 | Listing last modified Mar 30, 2026 19:48,
Source:
Investors/builders take note of this rare unique offering! 3 contiguous tax parcels totaling 5.07 acres, recently rezoned Urban Residential-3 (UR-3) per the "Home in Tacoma Plan" Feb 2025. Parcels like this don’t come to the market very often. Unusual high density zoning is now available for this large parcel, and 628 feet of frontage on S. Verde offers a rare development opportunity for the buyer who catches the vision of what’s possible here. Quiet residential neighborhood, convenient to elementary and high school w straight shot access to I-5, Lakewood/Tacoma Services +Joint Base Lewis McChord. Addresses of individual parcels are 7811, 7815, 7801 S. Verde. Pre-Feasibility Study/ Site Plan from architect is complete-available on request